This calculator provides a guide to the amount of residential stamp duty you may pay and does not guarantee this will be the actual cost. This calculation is based on the Stamp Duty Land Tax Rates for residential properties purchased from 23rd September 2022 and second homes from 31st October 2024. For more information on Stamp Duty Land Tax, click here.
3 bedroom Semi Detached House for sale, Milsted Court, North Walbottle, Tyne and Wear, NE15
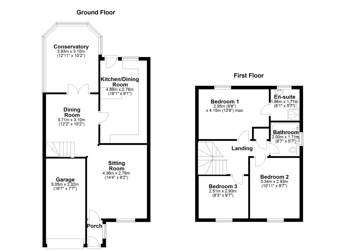
Features and Description
- Three Bedroom Semi Detached House
- Lovely cul-de-sac location
- Extended Property
- Floor Area - 1205 Sq.ft
- Council Tax Band - C
- EPC Rating - D
This impressive family home must be viewed to fully appreciate, being excellently presented throughout and offering an extended kitchen.
This property has been extended and much improved and briefly comprises of entrance porch, attractive lounge with updated flooring which carries through to the dining room, lovely conservatory overlooking the rear garden, fantastic extended kitchen with modern style white gloss units, ample space for dining and access to the rear garden.
To the first floor there is a family bathroom, three well proportioned and decorated bedrooms with the main benefiting from a contemporary shower room.
Externally there is a DOUBLE driveway leading to the attached garage and to the rear is a well manicured garden with lawn and decked areas. The property is also positioned on a cul-de-sac.
Abbey Farm is a very much sought after exclusive development to the west of Newcastle. It is a very well laid out development of substantial detached houses. It also provides each access to the A69 and A1 Trunk roads with link to the central motorway network. Newcastle International Airport is three miles north and provides a range of flights. Newcastle city provides a vast array of schooling, shopping and recreational facilities including the Metro Centre, Sage and Quayside area.
We understand the property is leasehold with 950 years remaining and a ground rent of 50 per annum.
IMPORTANT NOTE TO POTENTIAL PURCHASERS:
We endeavour to make our particulars accurate and reliable, however, they do not constitute or form part of an offer or any contract and none is to be relied upon as statements of representation or fact. The services, systems and appliances listed in this specification have not been tested by us and no guarantee as to their operating ability or efficiency is given. All photographs and measurements have been taken as a guide only and are not precise. Floor plans where included are not to scale and accuracy is not guaranteed. If you require clarification or further information on any points, please contact us, especially if you are travelling some distance to view. Fixtures and fittings other than those mentioned are to be agreed with the seller.
Milsted Court, North Walbottle, Tyne and Wear, NE15
Additional Information
-
Property refQWD260145
-
EPCD
-
TenureLeasehold
-
Ground RentContact the branch
-
Ground Rent ReviewContact the branch
-
Service ChargeContact the branch
Similar properties for sale by Your Move West Denton
The pin shows the exact address of the property
Energy Efficiency Rating
Very energy efficient - lower running costs
Not energy efficient - higher running costs
Current
67Potential
74CO2 Rating
Very energy efficient - lower running costs
Not energy efficient - higher running costs
