This calculator provides a guide to the amount of residential stamp duty you may pay and does not guarantee this will be the actual cost. This calculation is based on the Stamp Duty Land Tax Rates for residential properties purchased from 23rd September 2022 and second homes from 31st October 2024. For more information on Stamp Duty Land Tax, click here.
3 bedroom Semi Detached House for sale, Simonside Road, Sunderland, Tyne and Wear, SR3
Features and Description
- Semi Detached Family home
- Enclosed Rear Garden
- Sought After Location
- EPC Grade Awaited
- Council Tax Band A, Sunderland City Council
- 74 sq m / 796 sq ft Floor Area
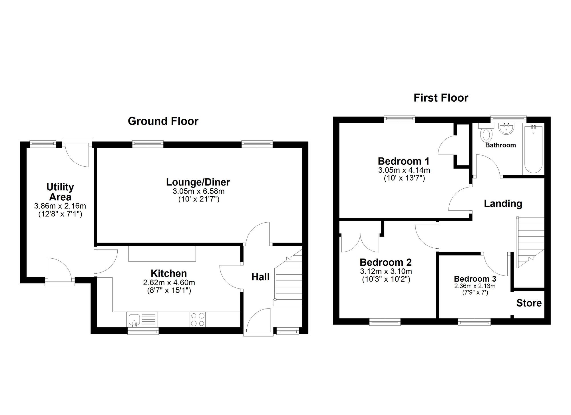
Situated on the ever popular Simonside Road in Springwell, this attractive three bedroom semi detached home is ideal for families, first time buyers, or those seeking comfortable and well proportioned living space.
The property welcomes you with an inviting entrance hallway, leading through to a spacious and comfortable lounge diner perfect for both relaxing and entertaining. A separate kitchen offers practical functionality, complemented by a useful utility area, plumbed for an automatic washing machine and providing direct access to the rear garden.
Upstairs, the first floor hosts three generously sized bedrooms, two of which benefit from fitted wardrobes, offering excellent storage solutions. A modern family bathroom, complete with a classic white suite, serves the accommodation.
Externally, the home features a well maintained front garden laid to lawn, creating an attractive first impression. To the rear, an enclosed garden also laid to lawn provides a safe and versatile outdoor space, ideal for families, children, and entertaining guests.
This delightful home combines comfort, practicality, and a sought after location early viewing is highly recommended.
We believe the property to be freehold.
Lounge
21'7" x 10'0" (6.58m x 3.05m)
Kitchen
15'1" x 8'7" (4.60m x 2.62m)
Utility Area
7'1" x 12'8" (2.16m x 3.86m)
Bedroom 1
13'7" x 10'0" (4.14m x 3.05m)
Bedroom 2
10'2" x 10'3" (3.10m x 3.12m)
Bedroom 3
6'12" x 7'9" (2.13m x 2.36m)
Bathroom
7'7" x 5'6" (2.30m x 1.68m)
IMPORTANT NOTE TO POTENTIAL PURCHASERS:
We endeavour to make our particulars accurate and reliable, however, they do not constitute or form part of an offer or any contract and none is to be relied upon as statements of representation or fact. The services, systems and appliances listed in this specification have not been tested by us and no guarantee as to their operating ability or efficiency is given. All photographs and measurements have been taken as a guide only and are not precise. Floor plans where included are not to scale and accuracy is not guaranteed. If you require clarification or further information on any points, please contact us, especially if you are travelling some distance to view. Fixtures and fittings other than those mentioned are to be agreed with the seller.
Simonside Road, Sunderland, Tyne and Wear, SR3
Additional Information
-
Property refSUN260186
-
TenureFreehold
-
Council TaxA
-
Local authoritySunderland City Council
Similar properties for sale by Your Move Sunderland
The pin shows the exact address of the property
Energy Efficiency Rating
Very energy efficient - lower running costs
Not energy efficient - higher running costs
Current
N/APotential
N/ACO2 Rating
Very energy efficient - lower running costs
Not energy efficient - higher running costs
