This calculator provides a guide to the amount of residential stamp duty you may pay and does not guarantee this will be the actual cost. This calculation is based on the Stamp Duty Land Tax Rates for residential properties purchased from 23rd September 2022 and second homes from 31st October 2024. For more information on Stamp Duty Land Tax, click here.
3 bedroom Semi Detached House for sale, St Oswalds Close, Kettering, North Northamptonshire, NN15
Features and Description
- Quiet cul-de-sac position on the popular Ise Lodge estate
- Well presented throughout with stylish décor
- Spacious open plan lounge diner spanning the full length
- Contemporary kitchen with ample work surfaces and storage
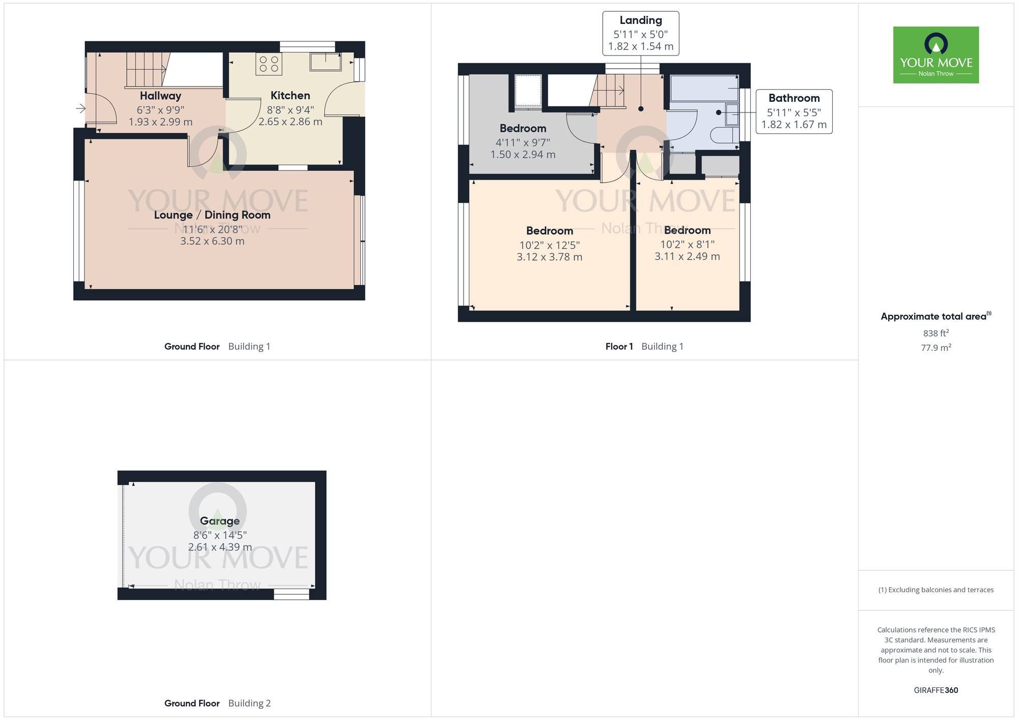
- Three bedrooms including two doubles
- Versatile third bedroom ideal as nursery or home office
- Private rear garden with patio and lawn
- Driveway parking and detached garage
- Double glazing and modern gas central heating
** A Stylish & Well-Presented Home in a Popular Family Location **
Tucked away within a quiet cul-de-sac on the ever-popular Ise Lodge estate in Kettering, this beautifully presented home offers a wonderful balance of comfort, style and practicality, all set within a welcoming community environment that’s perfect for family life.
From the outset, the property makes a great first impression. A neat front garden, mainly laid to lawn, adds to the attractive kerb appeal, while a private driveway to the front and side provides off-road parking and leads through to a detached garage. It’s a setting that feels both peaceful and well-connected, ideal for those looking to settle into a friendly neighbourhood.
Stepping inside, you’re greeted by a bright and inviting hallway, finished with modern décor and quality wooden-style flooring that immediately sets the tone for the rest of the home. There’s a useful built-in storage cupboard, perfect for keeping everyday items neatly out of sight, while stairs rise to the first floor.
The main living space is both generous and versatile, with a full-length open plan lounge diner that adapts effortlessly to modern lifestyles. A large front-facing window allows natural light to pour in, while sliding patio doors at the rear create a seamless connection to the garden, making it a space that works just as well for relaxing evenings as it does for entertaining friends and family. The layout easily accommodates both comfortable seating and a dining area, and the addition of a serving hatch through to the kitchen adds a sociable touch—ideal for hosting and staying connected while preparing meals.
Positioned to the rear, the kitchen is well-appointed with a contemporary range of base and eye-level units, offering plenty of workspace for cooking and day-to-day living. Integrated appliances are complemented by space for additional white goods, and a door provides direct access out to the garden, enhancing the indoor-outdoor flow.
Upstairs, the sense of care and presentation continues. The landing offers access to the loft, providing useful additional storage, while three bedrooms offer flexibility for a range of needs. Two are comfortable doubles, while the third lends itself perfectly as a nursery, home office or dressing room depending on your lifestyle. The family bathroom is fully tiled and fitted with a fresh white suite, including a bath with shower over, creating a clean and functional space to unwind.
Outside, the rear garden enjoys a good level of privacy and has been designed for both relaxation and practicality. A patio area provides the perfect spot for outdoor dining or summer evenings, while the generous lawn offers space for children to play or keen gardeners to make their mark. The garden is enclosed by timber fencing, and the detached garage adds further storage or potential for workshop use.
The location is a real highlight, with the property set within easy walking distance of schools for all ages, local shops, a popular estate pub and a range of leisure facilities, making day-to-day life both convenient and enjoyable. For commuters, there are excellent transport links nearby, with road access via the A14 and A6, and mainline rail services from Kettering providing direct routes into London.
Take a look at our high definition Virtual Tour for an immersive preview of all on offer and then contact our friendly team to arrange a viewing in person today.
<Agents Note: We are currently awaiting the EPC and will update this information as soon as possible.>
IMPORTANT NOTE TO POTENTIAL PURCHASERS:
We endeavour to make our particulars accurate and reliable, however, they do not constitute or form part of an offer or any contract and none is to be relied upon as statements of representation or fact. The services, systems and appliances listed in this specification have not been tested by us and no guarantee as to their operating ability or efficiency is given. All photographs and measurements have been taken as a guide only and are not precise. Floor plans where included are not to scale and accuracy is not guaranteed. If you require clarification or further information on any points, please contact us, especially if you are travelling some distance to view. Fixtures and fittings other than those mentioned are to be agreed with the seller.
St Oswalds Close, Kettering, North Northamptonshire, NN15
Additional Information
-
Property refQKE260175
-
TenureFreehold
-
Council TaxB
Similar properties for sale by Your Move Kettering
The pin shows the exact address of the property
Energy Efficiency Rating
Very energy efficient - lower running costs
Not energy efficient - higher running costs
Current
N/APotential
N/ACO2 Rating
Very energy efficient - lower running costs
Not energy efficient - higher running costs
