This calculator provides a guide to the amount of residential stamp duty you may pay and does not guarantee this will be the actual cost. This calculation is based on the Stamp Duty Land Tax Rates for residential properties purchased from 23rd September 2022 and second homes from 31st October 2024. For more information on Stamp Duty Land Tax, click here.
3 bedroom Semi Detached House for sale, Tailby Avenue, Leicester, Leicestershire, LE5
Features and Description
- 3 Bedroom Semi Detached
- Large Plot with Potential to Extend STPP
- Good Size Rear Garden
- Renovated Kitchen
- Family Bathroom & Downstairs W/C
- UPVC Double Glazing & Gas Central Heating
- Excellent Location
- Early Viewing Highly Recommended!
This three-bedroom semi-detached house is for sale in a sought-after residential area of Leicester, set on a generous plot with a large driveway providing parking for multiple vehicles and clear potential to extend, subject to planning permission.
The property is in good condition and features a renovated kitchen with wall and base units, dining space and plumbing for a dishwasher. There is also a utility area with plumbing for a washing machine. The main reception room offers a lounge space with French doors providing direct access to the rear garden. Upstairs, there are two double bedrooms, one with built-in wardrobes, and a further single bedroom. The family bathroom includes a bath with shower over, w/c and hand basin. The property also benefits from recent home improvements such as replastering, roof replacement, and windows replaced with triple glazing.
The location benefits from a range of local amenities including nearby schools, shops and services, making it suitable for families, first-time buyers and investors. Green spaces and nearby parks offer opportunities for walking and leisure.
Public transport links are readily available, with Leicester city centre accessible by bus or car, offering rail connections to destinations such as London St Pancras, Nottingham and Birmingham, with typical journey times from around one hour to London and under 30 minutes to Nottingham. Road connections provide access to the wider Leicestershire area, retail parks and employment centres.
This semi-detached house combines a functional internal layout with outdoor space and scope for future extension, subject to planning, in a convenient Leicester location. Call us now to arrange your viewing!
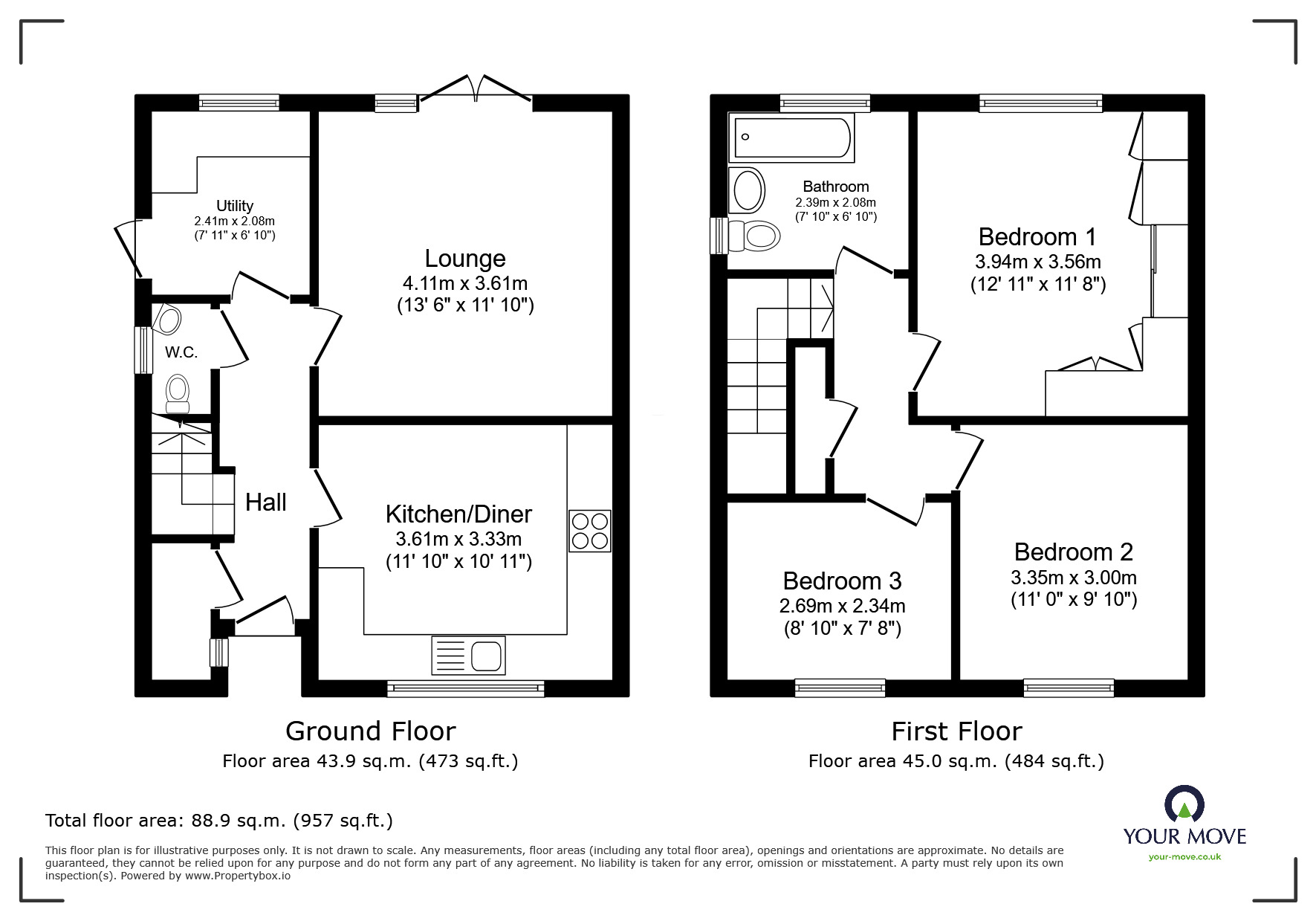
Lounge
13'6" x 11'10" (4.11m x 3.60m)
Kitchen / Diner
11'10" x 10'11" (3.60m x 3.33m)
Utility Room
7'11" x 6'10" (2.41m x 2.08m)
Downstairs WC
4'12" x 2'6" (1.52m x 0.76m)
Bedroom 1
12'11" x 11'8" (3.94m x 3.56m)
Bedroom 2
10'12" x 9'10" (3.35m x 3.00m)
Bedroom 3
8'10" x 7'8" (2.70m x 2.34m)
Bathroom
7'10" x 6'10" (2.40m x 2.08m)
IMPORTANT NOTE TO POTENTIAL PURCHASERS:
We endeavour to make our particulars accurate and reliable, however, they do not constitute or form part of an offer or any contract and none is to be relied upon as statements of representation or fact. The services, systems and appliances listed in this specification have not been tested by us and no guarantee as to their operating ability or efficiency is given. All photographs and measurements have been taken as a guide only and are not precise. Floor plans where included are not to scale and accuracy is not guaranteed. If you require clarification or further information on any points, please contact us, especially if you are travelling some distance to view. Fixtures and fittings other than those mentioned are to be agreed with the seller.
Tailby Avenue, Leicester, Leicestershire, LE5
Additional Information
-
Property refLEC260009
-
EPCC
-
TenureFreehold
-
Council TaxA
-
Local authorityLeicester City Council
Similar properties for sale by Your Move Leicester
The pin shows the exact address of the property
Energy Efficiency Rating
Very energy efficient - lower running costs
Not energy efficient - higher running costs
Current
73Potential
83CO2 Rating
Very energy efficient - lower running costs
Not energy efficient - higher running costs
