This calculator provides a guide to the amount of residential stamp duty you may pay and does not guarantee this will be the actual cost. This calculation is based on the Stamp Duty Land Tax Rates for residential properties purchased from 23rd September 2022 and second homes from 31st October 2024. For more information on Stamp Duty Land Tax, click here.
3 bedroom Semi Detached House for sale, The Warren, Hardingstone, Northamptonshire, NN4
Features and Description
- Three Bedroom Semi Detached Home
- Hardingstone Village Location
- Generous Rear Garden
- Off Road Parking for Multiple Vehicles
- Beautifully Presented Throughout
- Pantry with Side Access to Front and Rear
- EV Charging Point
- EPC Requested
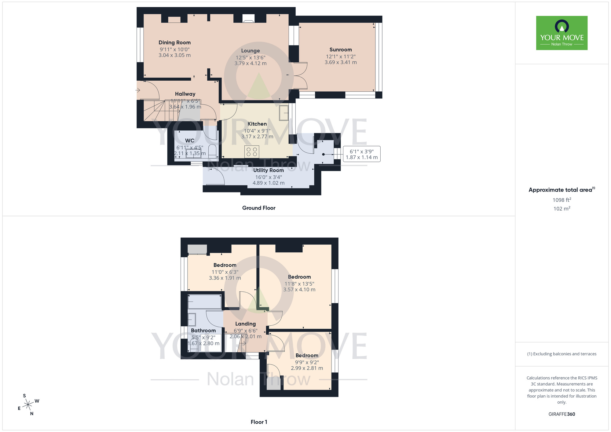
This beautifully presented three-bedroom semi-detached home is situated in the highly sought-after village of Hardingstone and offers generous off-road parking for multiple vehicles, complete with an EV charging point, alongside an exceptionally large rear garden.
The ground floor begins with a welcoming entrance hall leading into a tastefully decorated lounge/dining room, creating a warm and sociable living space. This flows seamlessly into a conservatory, currently arranged as a games room/snug, providing a versatile additional reception area overlooking the garden. The farmhouse-style kitchen is a particular feature of the home, complete with a Rangemaster oven, and is complemented by a useful pantry/utility room with access to both the front and rear of the property. A downstairs WC adds further practicality. To the first floor are two well-proportioned double bedrooms, a comfortable single bedroom, and a family bathroom.
Hardingstone is one of Northampton’s most desirable villages, offering a blend of character, community and convenience. The village is home to the historic St Edmund’s Church and the well-regarded Sun Inn pub which is within a 10 minute walk of the property. There are countryside walks nearby and a strong local community feel. Excellent transport links are available via the Queen Eleanor roundabout, providing easy access to the A45, M1 and Northampton town centre, as well as nearby Wootton Village with its schools and amenities. This location perfectly balances village charm with commuter practicality.
IMPORTANT NOTE TO POTENTIAL PURCHASERS:
We endeavour to make our particulars accurate and reliable, however, they do not constitute or form part of an offer or any contract and none is to be relied upon as statements of representation or fact. The services, systems and appliances listed in this specification have not been tested by us and no guarantee as to their operating ability or efficiency is given. All photographs and measurements have been taken as a guide only and are not precise. Floor plans where included are not to scale and accuracy is not guaranteed. If you require clarification or further information on any points, please contact us, especially if you are travelling some distance to view. Fixtures and fittings other than those mentioned are to be agreed with the seller.
The Warren, Hardingstone, Northamptonshire, NN4
Additional Information
-
Property refOUN260111
-
EPCD
-
TenureFreehold
-
Council TaxB
-
Local authorityWest Northamptonshire
Similar properties for sale by Your Move Northampton
The pin shows the exact address of the property
Energy Efficiency Rating
Very energy efficient - lower running costs
Not energy efficient - higher running costs
Current
67Potential
81CO2 Rating
Very energy efficient - lower running costs
Not energy efficient - higher running costs
