This calculator provides a guide to the amount of residential stamp duty you may pay and does not guarantee this will be the actual cost. This calculation is based on the Stamp Duty Land Tax Rates for residential properties purchased from 23rd September 2022 and second homes from 31st October 2024. For more information on Stamp Duty Land Tax, click here.
3 bedroom Semi Detached House for sale, Thornholme Road, Sunderland, Tyne and Wear, SR2
Features and Description
- Three Bedrooms
- Corner Plot
- Detached Garage
- EPC Grade D
- Council Tax Band D, Sunderland city council
- 126 sq m/ 1356 sq ft Floor Area
This well presented three bedroom semi detached home is located on the popular Thornholme Road and offers spacious, well planned accommodation ideal for modern family living.
The property briefly comprises an entrance hallway with useful storage cupboard, leading to a bright open plan lounge and dining area, perfect for both relaxing and entertaining. The modern fitted kitchen is complemented by a separate utility room, providing additional storage and practicality.
To the first floor are three well proportioned bedrooms and a family bathroom, which features both a bath and a separate shower cubicle for added convenience.
Externally, the property benefits from a detached garage and generous gardens to three sides, made possible by its desirable corner plot position. The outdoor space offers excellent potential for families, gardening enthusiasts, or further enhancement.
This lovely home must be viewed to fully appreciate the size, layout, and location on offer.
We believe the property to be Freehold
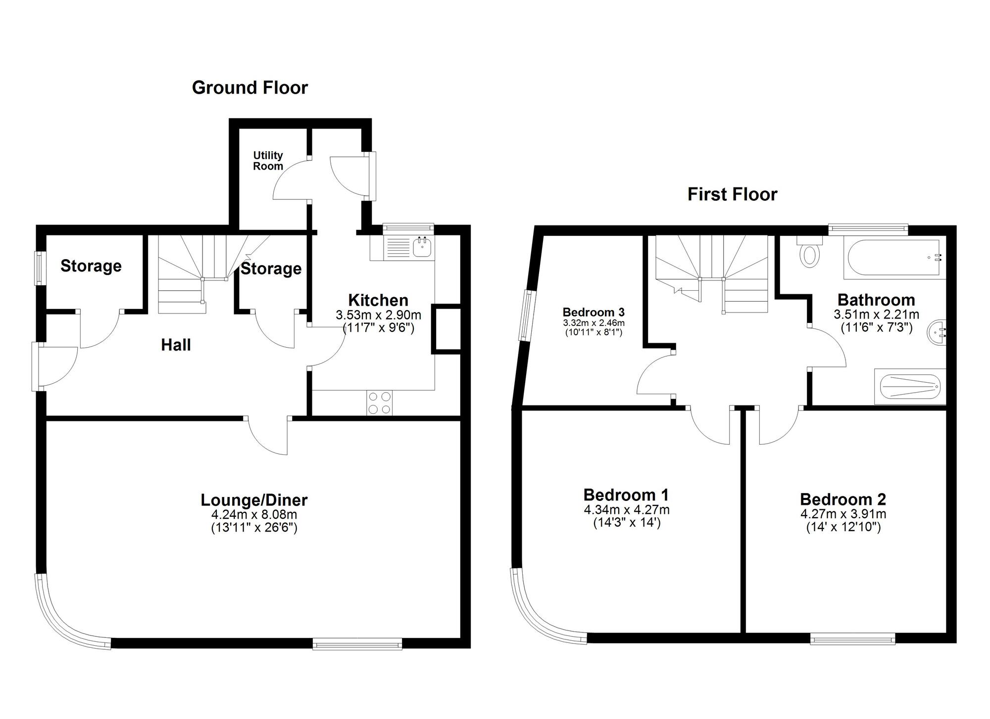
Entrance Hall
10'6" x 5'11" (3.20m x 1.80m)
Lounge Diner
26'6" x 13'11" (8.08m x 4.24m)
Kitchen
9'6" x 11'7" (2.90m x 3.53m)
Hall
3'2" x 6'6" (0.97m x 1.98m)
Utility Room
5'9" x 4'4" (1.75m x 1.32m)
Bedroom 1
14'0" x 14'3" (4.27m x 4.34m)
Bedroom 2
14'0" x 12'10" (4.27m x 3.90m)
Bedroom 3
9'9" x 8'1" (2.97m x 2.46m)
Bathroom
11'6" x 9'4" (3.50m x 2.84m)
IMPORTANT NOTE TO POTENTIAL PURCHASERS:
We endeavour to make our particulars accurate and reliable, however, they do not constitute or form part of an offer or any contract and none is to be relied upon as statements of representation or fact. The services, systems and appliances listed in this specification have not been tested by us and no guarantee as to their operating ability or efficiency is given. All photographs and measurements have been taken as a guide only and are not precise. Floor plans where included are not to scale and accuracy is not guaranteed. If you require clarification or further information on any points, please contact us, especially if you are travelling some distance to view. Fixtures and fittings other than those mentioned are to be agreed with the seller.
Thornholme Road, Sunderland, Tyne and Wear, SR2
Additional Information
-
Property refSUN260078
-
EPCD
-
Council TaxD
-
Local authoritySunderland City Council
Similar properties for sale by Your Move Sunderland
The pin shows the exact address of the property
Energy Efficiency Rating
Very energy efficient - lower running costs
Not energy efficient - higher running costs
Current
68Potential
80CO2 Rating
Very energy efficient - lower running costs
Not energy efficient - higher running costs
