This calculator provides a guide to the amount of residential stamp duty you may pay and does not guarantee this will be the actual cost. This calculation is based on the Stamp Duty Land Tax Rates for residential properties purchased from 23rd September 2022 and second homes from 31st October 2024. For more information on Stamp Duty Land Tax, click here.


















2 bedroom Semi Detached House for sale, Wardley Lane, Wardley, Gateshead, NE10
Features and Description
- No Chain Involved
- Updating Required
- Cul-De-Sac Location
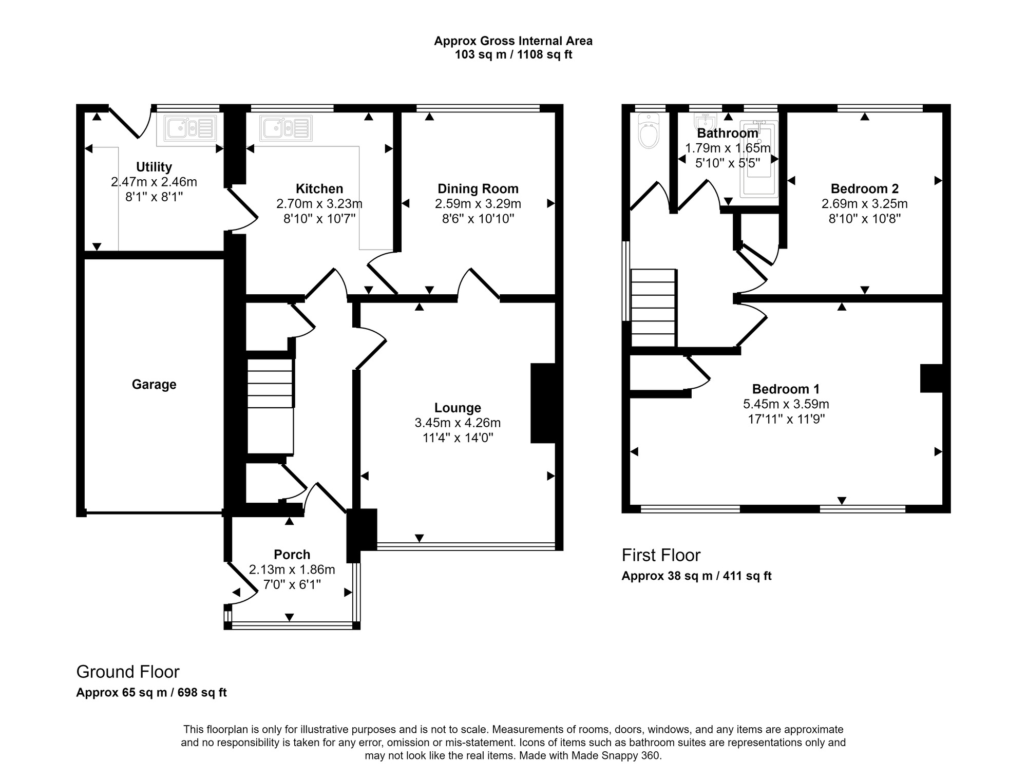
- Approx. Floor Area: 103sqM or 1108SqFT
- Council Tax Band C
- EPC RATING D
No chain! A spacious semi-detached home in a quiet cul-de-sac, offering plenty of potential.
With some updating, you have the chance to transform this house into your ideal home.
Originally a 3-bedroom, the property is now arranged as a generous 2-bedroom, with the option to convert back or extend to the rear(subject to consents).
Inside, you’ll find a welcoming entrance porch, (just recently re-plastered), hallway with storage, a lounge with feature fireplace, separate dining room, kitchen with utility, two double bedrooms (one with the scope to split back into two), plus a bathroom and separate WC.
Outside, there’s a lawned front garden, block-paved driveway, garage, and a large rear garden with patio, lawn and mature shrubs.
Double glazing and gas central heating are already in place, and with some updating, this property could become your ideal family home.
We understand the property is Freehold.
MAKING AN OFFER:
Please note that all offers will require financial verification including mortgage agreement in principle, proof of deposit funds, proof of available cash and full chain details including selling agents and solicitors down the chain. Under New Money Laundering Regulations we require proof of identification from all buyers before acceptance letters are sent and solicitors can be instructed.
IMPORTANT NOTE TO POTENTIAL PURCHASERS:
We endeavour to make our particulars accurate and reliable, however, they do not constitute or form part of an offer or any contract and none is to be relied upon as statements of representation or fact. The services, systems and appliances listed in this specification have not been tested by us and no guarantee as to their operating ability or efficiency is given. All photographs and measurements have been taken as a guide only and are not precise. Floor plans where included are not to scale and accuracy is not guaranteed. If you require clarification or further information on any points, please contact us, especially if you are travelling some distance to view. Fixtures and fittings other than those mentioned are to be agreed with the seller.
Wardley Lane, Wardley, Gateshead, NE10


















The pin shows the exact address of the property
Energy Efficiency Rating
Very energy efficient - lower running costs
Not energy efficient - higher running costs
Current
64Potential
84CO2 Rating
Very energy efficient - lower running costs
Not energy efficient - higher running costs