3 bedroom Semi Detached House to rent, Beaumont Chase, Bolton, BL3
Available Unfurnished, from 31/08/2025
Features and Description
- Semi Detached Property Situated In a Cul De Sac Location
- Living Room, Dining Room & Kitchen
- Three Bedrooms. Two Double & One Single
- Three Piece Bathroom Suite
- Driveway Providing Off Road Parking
- Gardens To The Front, Side & Rear
- EPC C - Leasehold - Tax Band C
Another well proportioned room, with range of units, hob, cooker and stainless steel sink unit. Window to the rear and door to rear yard. Plate rack and dado rail. Power points and cooker point.
Entrance Porch
1.68m to cupboard x 1.14m
Meter cupboard. Alarm system. Double glazed window to the front. Radiator and ceiling light. Door to
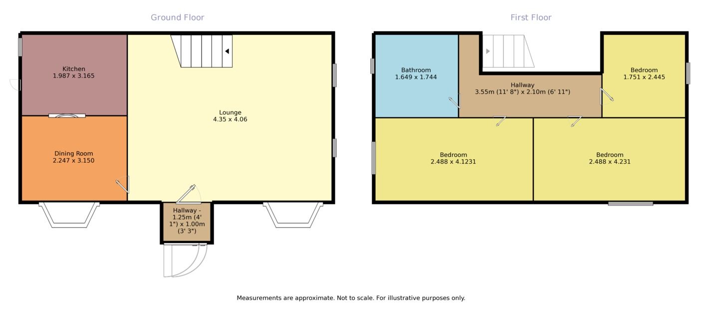
Living Room
14'2" x 13'4" (4.32m x 4.06m)
Double glazed window to the front and rear elevations. Gas fire (capped) with feature fire surround. Staircase access with under stairs storage. Radiator and access to the dining room.
Dining Room
10'4" x 7'4" (3.15m x 2.24m)
Double glazed window to the front elevation. Laminate flooring. Radiator and ceiling light. Access to the kitchen.
Kitchen
10'3" x 6'7" (3.12m x 2.00m)
Fitted with a range of wall and base units with matching worktops and built in sink unit. Space for a free standing gas cooker and extractor hood over. Also space for an automatic washing machine and dishwasher. Wall mounted boiler, laminate flooring and ceiling light. External doorway access to the rear garden.
Landing
Access to all three bedrooms and bathroom. Ceiling light.
Bedroom 1
13'10" x 8'2" (4.22m x 2.50m)
Double glazed window to the front elevation. Radiator and ceiling light.
Bedroom 2
9'11" x 8'2" (3.02m x 2.50m)
Double glazed window to the front elevation. Radiator and ceiling light.
Bedroom 3
2.4m not inc recess x 1.75m
Built in cupboard. Double glazed window to the front. Radiator and ceiling light.
Bathroom
5'9" x 5'5" (1.75m x 1.65m)
three piece bathroom suite comprising of a panelled bath with electric shower over, W/C and wash hand basin. Complimentary tiled splash backs. Frosted double glazed window to the rear. Ceiling light.
Outside
Driveway to the front to provide off road parking. Garden area to the side with mature plants and shrubs.At the rear you have further mature plants and shrubs with a garden and patio area. Along with a timber fence boundary wall and gated access. Aluminium style shed plus outside lighting.
IMPORTANT NOTE TO POTENTIAL RENTERS:
We endeavour to make our particulars accurate and reliable, however, they do not constitute or form part of an offer or any contract and none is to be relied upon as statements of representation or fact. The services, systems and appliances listed in this specification have not been tested by us and no guarantee as to their operating ability or efficiency is given. All photographs and measurements have been taken as a guide only and are not precise. Floor plans where included are not to scale and accuracy is not guaranteed. If you require clarification or further information on any points, please contact us, especially if you are travelling some distance to view.
All properties are available for a minimum length of time, with the exception of short term accommodation. Please contact the branch for details. A security deposit of at least one month’s rent is required. Rent is to be paid one month in advance. It is the tenant’s responsibility to insure any personal possessions. Payment of all utilities including water rates or metered supply and Council Tax is the responsibility of the tenant in every case.
Beaumont Chase, Bolton, BL3
Additional Information
-
Property refBUU120002
-
EPCC
-
Council TaxC
-
Local authorityBolton Metropolitan Borough Council
Your Move Letting Agents Bury
Rental Tools
Double glazed window to the front and rear elevations. Gas fire (capped) with feature fire surround. Staircase access with under stairs storage. Radiator and access to the dining room.
Double glazed window to the front elevation. Laminate flooring. Radiator and ceiling light. Access to the kitchen.
Fitted with a range of wall and base units with matching worktops and built in sink unit. Space for a free standing gas cooker and extractor hood over. Also space for an automatic washing machine and dishwasher. Wall mounted boiler, laminate flooring and ceiling light. External doorway access to the rear garden.
Double glazed window to the front elevation. Radiator and ceiling light.
Double glazed window to the front elevation. Radiator and ceiling light.
Built in cupboard. Double glazed window to the front. Radiator and ceiling light.
three piece bathroom suite comprising of a panelled bath with electric shower over, W/C and wash hand basin. Complimentary tiled splash backs. Frosted double glazed window to the rear. Ceiling light.
Driveway to the front to provide off road parking. Garden area to the side with mature plants and shrubs.At the rear you have further mature plants and shrubs with a garden and patio area. Along with a timber fence boundary wall and gated access. Aluminium style shed plus outside lighting.
The pin shows the exact address of the property
Energy Efficiency Rating
Very energy efficient - lower running costs
Not energy efficient - higher running costs
Current
69Potential
84CO2 Rating
Very energy efficient - lower running costs
Not energy efficient - higher running costs
