This calculator provides a guide to the amount of residential stamp duty you may pay and does not guarantee this will be the actual cost. This calculation is based on the Stamp Duty Land Tax Rates for residential properties purchased from 23rd September 2022 and second homes from 31st October 2024. For more information on Stamp Duty Land Tax, click here.
2 bedroom Detached Property for sale, Tremarle Home Park, North Roskear, Cornwall, TR14
Features and Description
- Detached Park Home
- Two Bedrooms
- Driveway Parking For Two Cars
- EPC Rating - Awaited
- Lovely Private & Enclosed Garden
- Double Glazing & Mains Gas Central Heating
- Situated On The Edge Of Camborne Town Centre
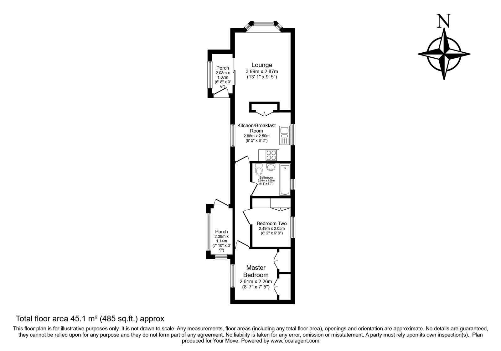
Your Move are delighted to present to the open market for Buyers aged 55 and over, this very nicely presented, two bedroom, detached Park Home, situated on the ever popular Tremarle Home Park residential site, located on the edge of Camborne Town Centre. Internally, the home offers light and airy accommodation comprising; entrance porch, lounge with feature fireplace and electric fire, opening through to the kitchen/breakfast room which is fitted with a good range of floor standing and wall mounted units, built-in cooker with gas hob and extractor hood over, space for freestanding appliances including fridge-freezer and washing machine, space for breakfast table and chairs and with a door leading to the inner hallway. From the hall, there is access to the master bedroom with built-in wardrobes and further fitted cupboards, to the second bedroom with built-in wardrobe and to the bathroom fitted with bath and over-head shower, W/C. wash hand basin and wall mounted storage cupboard. A further door also leads to a second side porch. Outside, the home boasts a lovely sized, private and enclosed garden which is laid mainly to lawn with a gravelled seating area, flowerbed borders stocked with a colourful range of flowers and shrubs, fenced boundaries and with gated access to either side of the home. At the front, there is driveway parking to either side of the home with space for two cars in total. The property also benefits from double glazing and mains gas central heating. Council Tax Band - A. EPC Rating - EXEMPT.
Location
Situated on the edge of Camborne Town Centre. The town has an excellent mix of living options with superb transportation links via bus, railway and the A30, which gives easy access to the very best of Cornwall's countryside. Camborne has many reputable schools and the local college is well known for its academic achievements. Retail options are in abundance with many national retailers being located in the town centre and there are many local shops being represented.
Entrance Porch
6'6" x 2'7" (1.98m x 0.80m)
Lounge
13'1" x 9'5" (3.99m x 2.87m)
Kitchen / Breakfast Room
9'5" x 8'2" (2.88m x 2.50m)
Master Bedroom
2.61m x 2.26m up-to built-in wardrobes
Bedroom 2
8'2" x 6'9" (2.49m x 2.05m)
Bathroom
6'8" x 5'7" (2.04m x 1.69m)
Side Porch
7'5" x 2'9" (2.25m x 0.85m)
Leasehold Information
We are informed by the current Vendor that the combined Ground Rent and Service Charge (otherwise known as Pitch Fee) for this property is £212.80 Per Month. This was renewed on 1st April 2024.
IMPORTANT NOTE TO POTENTIAL PURCHASERS:
We endeavour to make our particulars accurate and reliable, however, they do not constitute or form part of an offer or any contract and none is to be relied upon as statements of representation or fact. The services, systems and appliances listed in this specification have not been tested by us and no guarantee as to their operating ability or efficiency is given. All photographs and measurements have been taken as a guide only and are not precise. Floor plans where included are not to scale and accuracy is not guaranteed. If you require clarification or further information on any points, please contact us, especially if you are travelling some distance to view. Fixtures and fittings other than those mentioned are to be agreed with the seller.
Tremarle Home Park, North Roskear, Cornwall, TR14
Additional Information
-
Property refCAM230224
-
TenureLeasehold
-
Council TaxA
-
Local authorityCornwall Council
-
Ground RentContact the branch
-
Ground Rent ReviewContact the branch
-
Service Charge£2,554
The pin shows the exact address of the property
Energy Efficiency Rating
Very energy efficient - lower running costs
Not energy efficient - higher running costs
Current
N/APotential
N/ACO2 Rating
Very energy efficient - lower running costs
Not energy efficient - higher running costs
