





Flat to rent, Regent Street, Hinckley, Leicestershire, LE10
Available Unfurnished, from 17/10/2025
Features and Description
- TOWN CENTRE LOCATION
- AVAILABLE WITH ZERO DEPOSIT
- AVAILABLE MID OCTOBER
- STUDIO APARTMENT
- ALL KITCHEN APPLIANCES INCLUDED
- WALKING DISTANCE TO TRAIN STATION
- COUNCIL TAX BAND A
- EPC RATING C
- MINIMUM TERM 12 MONTHS
OPEN TO OFFERS - Stunning Top Floor Studio Apartment boasting Town Centre Location and Exceptional Presentation Throughout.
Available to view now to move in from mid October. Don't delay in enquiring today and securing this prime location early!
AVAILABLE WITH ZERO DEPOSIT
Open to reasonable offers so call today for your viewing.
Exceptional presentation throughout and benefitting from large windows letting in lots of natural light.
This studio apartment comprises a spacious open plan kitchen and living area integrated with the bedroom space and separate modern three piece shower room.
The apartment is supplied with all appliances - integrated Oven and Hob, washer/dryer and fridge/freezer.
Located on the central Regent Street, the apartment allows easy access to restaurants, pubs, local amenities and is within close proximity to the train station and transport links that take you to M69, A5, A444 and more. Available immediately and AVAILABLE WITH ZERO DEPOSIT, don't delay in arranging your viewing- call us today!
Location
TOWN CENTRE LOCATION - superbly presented first floor studio apartment ideally located in the town centre close to local amenities, train station ad transport links.
Property
Stunning Top Floor Studio Apartment boasting Town Centre Location and Exceptional Presentation Throughout.AVAILABLE WITH ZERO DEPOSITAvailable to view now to move in from mid October. Don't delay in enquiring today and securing this prime location early!Exceptional presentation throughout and benefitting from large windows letting in lots of natural light.This new development has recently been completed as of Summer 2023.This studio apartment comprises a spacious open plan kitchen and living area integrated with the bedroom space and separate modern three piece shower room. The apartment is supplied with all appliances - integrated Oven and Hob, washer/dryer and fridge/freezer.Located on the central Regent Street, the apartment allows easy access to restaurants, pubs, local amenities and is within close proximity to the train station and transport links that take you to M69, A5, A444 and more.Available immediately and AVAILABLE WITH ZERO DEPOSIT, don't delay in arranging your viewing- call us today!
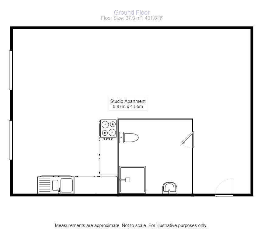
Studio Apartment on the Top Floor
Accommodation Comprising of:
Studio Living
19'7" x 15'5" (5.97m x 4.70m)
Open Plan Studio Living with modern kitchen complete with integrated oven and hob, washer/dryer and fridge/freezer
Shower Room
5'1" x 5'2" (1.55m x 1.57m)
With large corner shower unit, wc and hand basin
IMPORTANT NOTE TO POTENTIAL RENTERS:
We endeavour to make our particulars accurate and reliable, however, they do not constitute or form part of an offer or any contract and none is to be relied upon as statements of representation or fact. The services, systems and appliances listed in this specification have not been tested by us and no guarantee as to their operating ability or efficiency is given. All photographs and measurements have been taken as a guide only and are not precise. Floor plans where included are not to scale and accuracy is not guaranteed. If you require clarification or further information on any points, please contact us, especially if you are travelling some distance to view.
All properties are available for a minimum length of time, with the exception of short term accommodation. Please contact the branch for details. A security deposit of at least one month’s rent is required. Rent is to be paid one month in advance. It is the tenant’s responsibility to insure any personal possessions. Payment of all utilities including water rates or metered supply and Council Tax is the responsibility of the tenant in every case.
Regent Street, Hinckley, Leicestershire, LE10

Accommodation Comprising of:


Open Plan Studio Living with modern kitchen complete with integrated oven and hob, washer/dryer and fridge/freezer

With large corner shower unit, wc and hand basin


The pin shows the exact address of the property
Energy Efficiency Rating
Very energy efficient - lower running costs
Not energy efficient - higher running costs
Current
69Potential
69CO2 Rating
Very energy efficient - lower running costs
Not energy efficient - higher running costs