This calculator provides a guide to the amount of residential stamp duty you may pay and does not guarantee this will be the actual cost. This calculation is based on the Stamp Duty Land Tax Rates for residential properties purchased from 23rd September 2022 and second homes from 31st October 2024. For more information on Stamp Duty Land Tax, click here.
5 bedroom Detached Bungalow for sale, Holly Lane, Mutford, Suffolk, NR34
Features and Description
- Individually Built Chalet Style Bungalow
- Five Double Bedrooms & Three Bath / Shower Rooms
- Large Plot of Approx 3.5 Acres (STMS)
- Equestrian Facilities Including Four Stables, Dutch Barn & Two Paddocks
- Country Cottage Kitchen / Dining Room
- Brick Fireplace & Wood Burner to Sitting Room
- Large, Southerly Facing Conservatory
- Approx 173 SQ M (1862 SQ FT) Open-Sided Steel Shelter
- Very Generous Frontage for Ample Parking
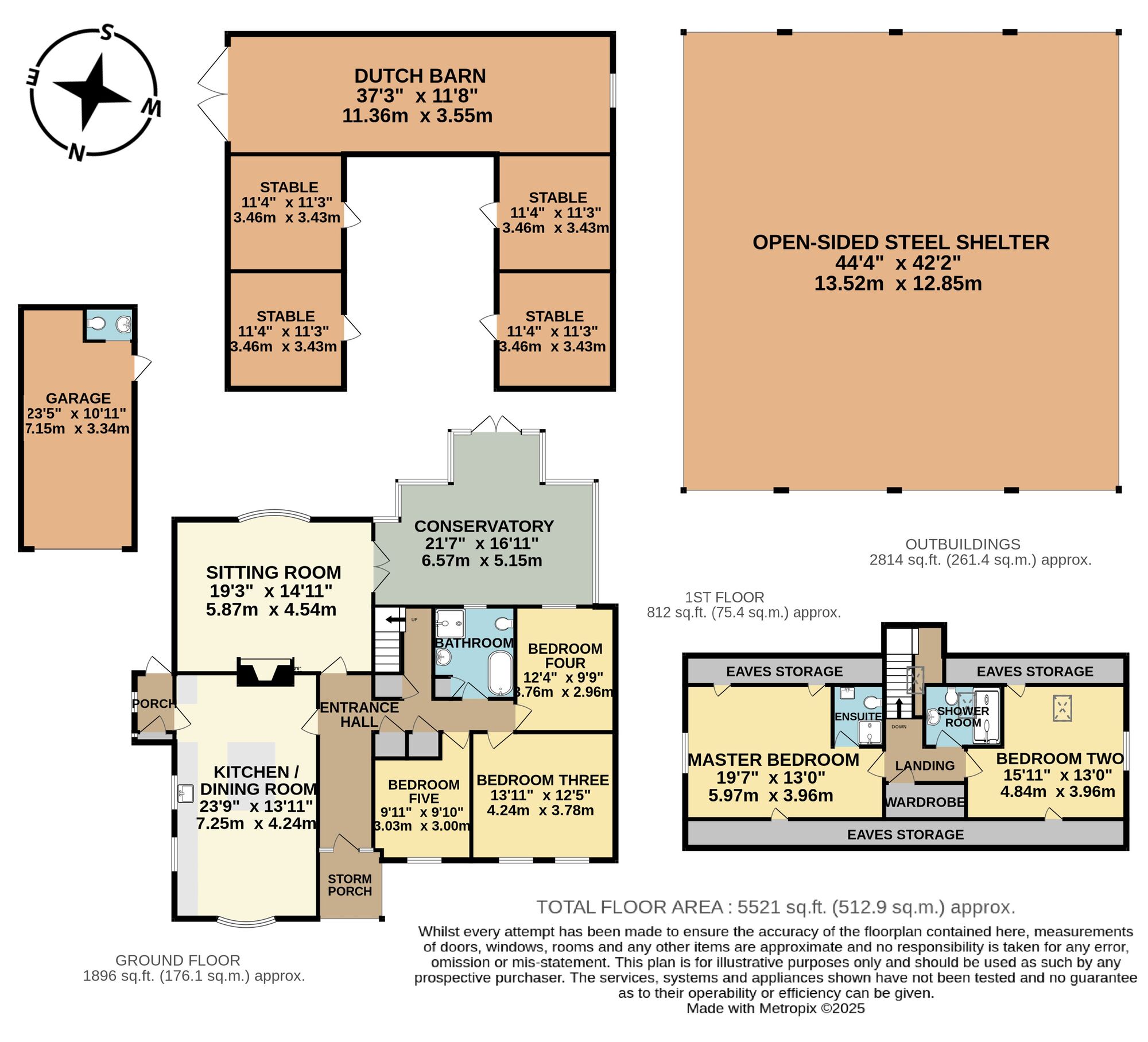
Down a quiet country road and enjoying a spectacular plot of approximately 3.5 acres (STMS), this five bedroom chalet style bungalow comes complete with a range of equestrian facilities and outbuldings including two paddocks, four stables, a Dutch barn and large steel shelter for vehicles. Complete with approx 2449 SQ FT (227 SQ M) of accommodation to the main home with an abundance of parking and a versatile layout, this really is a one of a kind home that you simply must view to appreciate.
Accommodation Summary
Entered under a storm porch you are welcomed into a vast entrance hall with ample storage cupboards and the large kitchen / dining room to your left. Enjoying light from two aspects and a freshly plastered ceiling, the kitchen offers a country-cottage feel. currently both an island and space for a large family dining table – a great hub of the home and area a new buyer can enjoy putting their stamp on. There are two large reception areas, including a cozy lounge with a bay window and inset wood burner, as well as a substantial, southerly facing conservatory: complete with underfloor heating and power for year-round use. Along with a four-piece family bathroom, there are three double bedrooms to the ground floor, with the first floor offering the final and two largest bedrooms; with the master bedroom enjoying fitted wardrobes and an ensuite shower. Bedroom two can enjoy use of a further shower room and generous wardrobe accessed off the landing – there is also ample eaves storage on the first floor.
Outside, Garden & Outbuildings
With great kerb appeal, the home offers an abundance of parking to the front, not only leading towards the oversized garage (with power, lighting, electric door and WC), but also leading down the side of the home towards the equestrian facilities; perfect for a horse-box / trailer or small farm vehicles. The main family garden faces a southerly aspect to enjoy ample sunshine throughout the day, offering ample lawn, a patio area (currently utilising space for an arctic spa hot tub) as well as a dog shelter and run, greenhouse and sheds. Beyond the garden and sectioned off with five bar gates, is where this home really shines. Understood to sit within an area of outstanding natural beauty, you can enjoy fenced paddocks, four stables with power and lighting, as well as a double doored, Dutch barn with steel frame which is complete with three phase electric and water. A large, open-sided steel shelter has been erected behind (measuring approx. 173 SQ M / 1862 SQ FT) which also offers water and power. Complete with it’s own area of woodland, you can also find a large, natural spring pond to the centre of the plot, providing a wonderful sense of the outdoors. A private footpath allows you to survey your exquisite land and enjoy the seasons.
IMPORTANT NOTE TO POTENTIAL PURCHASERS:
We endeavour to make our particulars accurate and reliable, however, they do not constitute or form part of an offer or any contract and none is to be relied upon as statements of representation or fact. The services, systems and appliances listed in this specification have not been tested by us and no guarantee as to their operating ability or efficiency is given. All photographs and measurements have been taken as a guide only and are not precise. Floor plans where included are not to scale and accuracy is not guaranteed. If you require clarification or further information on any points, please contact us, especially if you are travelling some distance to view. Fixtures and fittings other than those mentioned are to be agreed with the seller.
Holly Lane, Mutford, Suffolk, NR34
Additional Information
-
Property refQBC250013
-
TenureFreehold
-
Council TaxE
-
Local authorityEast Suffolk
The pin shows the exact address of the property
Energy Efficiency Rating
Very energy efficient - lower running costs
Not energy efficient - higher running costs
Current
N/APotential
N/ACO2 Rating
Very energy efficient - lower running costs
Not energy efficient - higher running costs
