3 bedroom Mid Terrace House to rent, Truleigh Close, Brighton, East Sussex, BN2
Available Furnished, from 30/09/2025
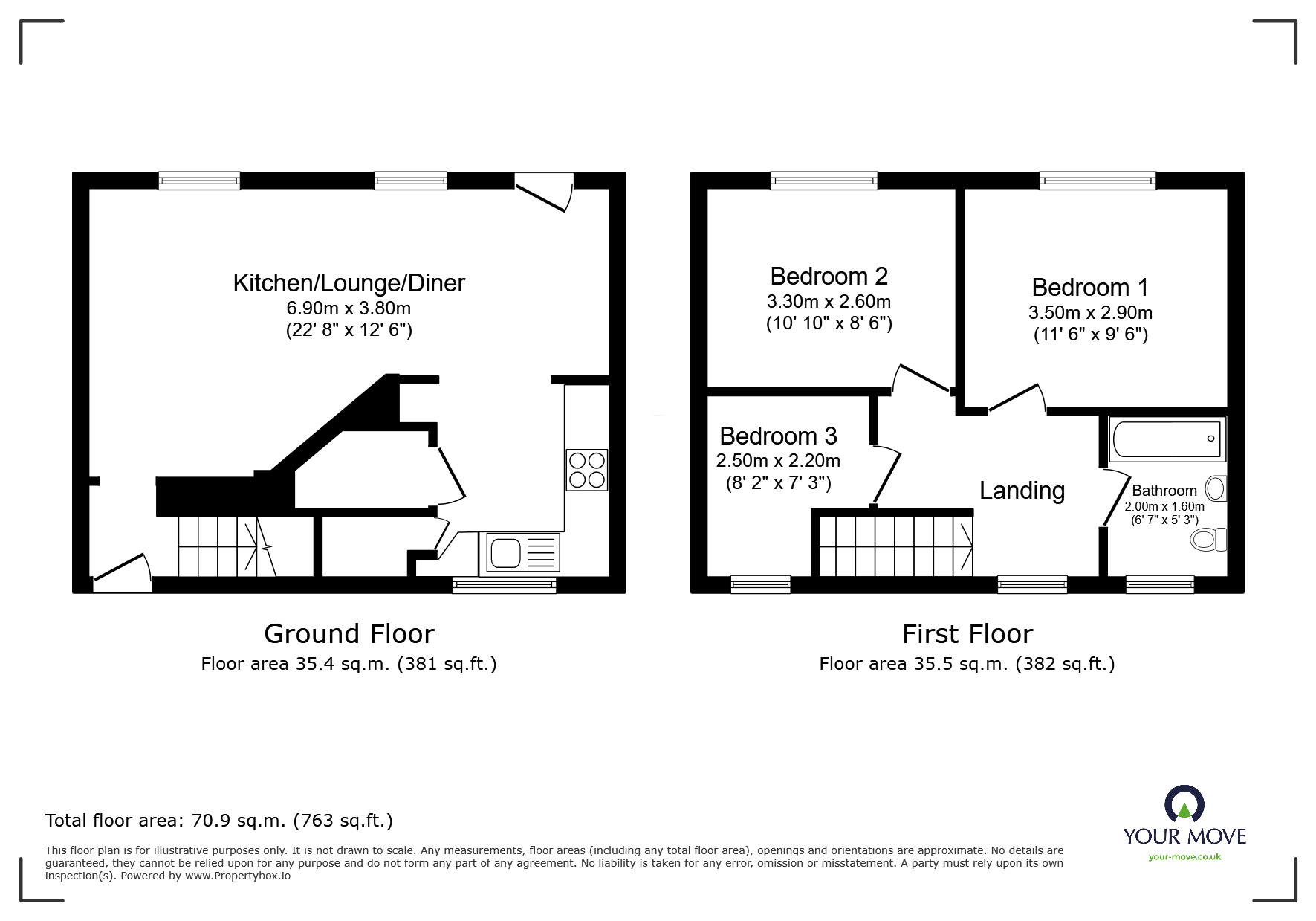
Features and Description
Your Move are delighted to offer to the market a spacious three bedroom family home with drive way and large rear garden. Located in a quite close in Woodingdean this property is a ideal location with public transport links nearby, as well as schools, parks, and a strong local community. This property is Ideal for families and couples looking for a comfortable and spacious home.
The property offers three bedrooms, including a double master bedroom with views over the close, there is plenty of space for everyone. The second bedroom is also a double, with natural light and views over the rear garden. The third bedroom, although a smaller room can be used as an office space or as a child's bedroom.
The modern bathroom offer a white three-piece suite and built-in storage under the sink.
The open-plan lounge offers plenty of space is perfect for entertaining, with large windows offering garden views and access to the garden. The lounge is open plan to the kitchen and to a additional space ideal for a dinning area. The kitchen offers modern appliances such as a dishwasher.
Outside, towards the back of the property features a large garden and towards the front of the property is a drive way, providing a parking space.
Overall, this property offers comfortable and spacious living in a convenient location.
EPC Rating D
IMPORTANT NOTE TO POTENTIAL RENTERS:
We endeavour to make our particulars accurate and reliable, however, they do not constitute or form part of an offer or any contract and none is to be relied upon as statements of representation or fact. The services, systems and appliances listed in this specification have not been tested by us and no guarantee as to their operating ability or efficiency is given. All photographs and measurements have been taken as a guide only and are not precise. Floor plans where included are not to scale and accuracy is not guaranteed. If you require clarification or further information on any points, please contact us, especially if you are travelling some distance to view.
All properties are available for a minimum length of time, with the exception of short term accommodation. Please contact the branch for details. A security deposit of at least one month’s rent is required. Rent is to be paid one month in advance. It is the tenant’s responsibility to insure any personal possessions. Payment of all utilities including water rates or metered supply and Council Tax is the responsibility of the tenant in every case.
Truleigh Close, Brighton, East Sussex, BN2
Additional Information
-
Property refQBG240101
-
EPCD
-
Council TaxB
-
Local authorityBrighton & Hove City Council
Your Move Letting Agents Brighton and Hove
Rental Tools
Similar properties to rent by Your Move Brighton and Hove
The pin shows the exact address of the property
Energy Efficiency Rating
Very energy efficient - lower running costs
Not energy efficient - higher running costs
Current
65Potential
88CO2 Rating
Very energy efficient - lower running costs
Not energy efficient - higher running costs
