This calculator provides a guide to the amount of residential stamp duty you may pay and does not guarantee this will be the actual cost. This calculation is based on the Stamp Duty Land Tax Rates for residential properties purchased from 23rd September 2022 and second homes from 31st October 2024. For more information on Stamp Duty Land Tax, click here.
2 bedroom Mid Terrace House for sale, Richardson Street, Wallsend, Tyne and Wear, NE28
Features and Description
- Two Bedroom Mid Terrace House
- No Onward Chain
- Good Location
- Approx. SQ M
- North Tyneside Council Tax Band A
- EPC Grade D
Welcome to this charming mid-terraced house located in a popular area. This delightful property boasts two bedrooms, offering a perfect blend of comfort and convenience. The spacious living areas are bright and airy, creating a warm and welcoming atmosphere throughout. With the added benefit of being chain-free, this home presents a fantastic opportunity for first-time buyers, investors, or those looking to downsize. Conveniently situated close to local amenities, schools, and transport links, this property offers a desirable location for modern living. Don't miss out on the chance to make this wonderful house your new home. Contact us today to arrange a viewing and discover all that this property has to offer.
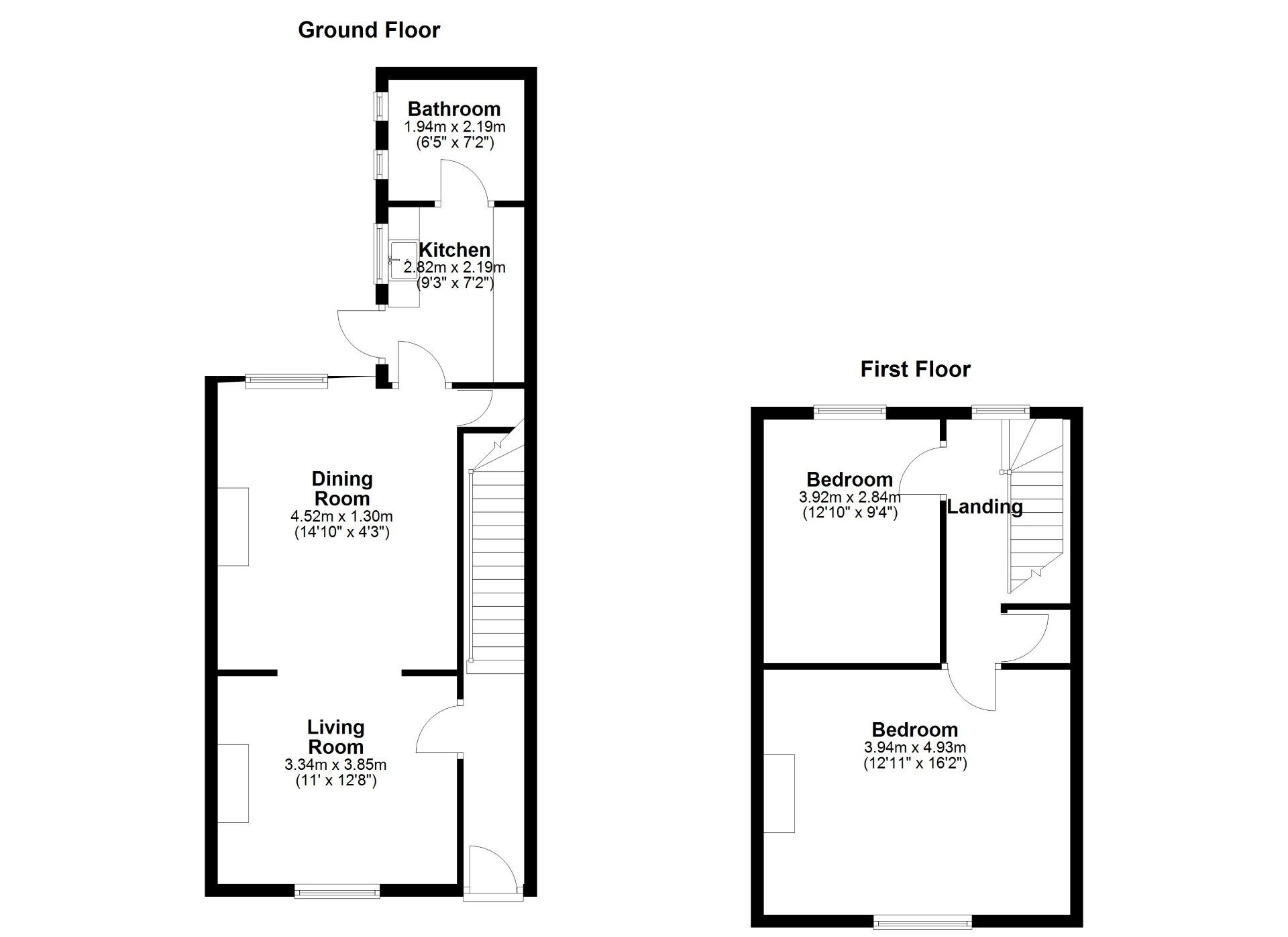
To the ground floor this property briefly comprises entrance hallway with stairs to first floor landing, open plan dual aspect lounge/diner with built in storage, kitchen with fitted floor and wall units as well as access to the rear yard and a family bathroom with bath, WC and hand wash basin.
To the first floor there are two spacious double bedrooms and additional storage on the landing.
Externally there is a small gravelled garden to the front and an enclosed private yard to the rear.
Freehold
North Tyneside Council Tax Band A
EPC Awaited.
Lounge
12'8" x 10'11" (3.85m x 3.34m)
Dining Room
14'10" x 12'8" (4.51m x 3.87m)
Kitchen
9'3" x 7'2" (2.83m x 2.18m)
Bathroom
6'8" x 6'4" (2.03m x 1.94m)
Master Bedroom
13'5" x 14'10" (4.08m x 4.52m)
Bedroom 2
9'3" x 12'10" (2.83m x 3.92m)
IMPORTANT NOTE TO POTENTIAL PURCHASERS:
We endeavour to make our particulars accurate and reliable, however, they do not constitute or form part of an offer or any contract and none is to be relied upon as statements of representation or fact. The services, systems and appliances listed in this specification have not been tested by us and no guarantee as to their operating ability or efficiency is given. All photographs and measurements have been taken as a guide only and are not precise. Floor plans where included are not to scale and accuracy is not guaranteed. If you require clarification or further information on any points, please contact us, especially if you are travelling some distance to view. Fixtures and fittings other than those mentioned are to be agreed with the seller.
Richardson Street, Wallsend, Tyne and Wear, NE28
Additional Information
-
Property refWSD250542
-
EPCD
-
TenureFreehold
-
Council TaxA
-
Local authorityNorth Tyneside Council - Council tax
The pin shows the exact address of the property
Energy Efficiency Rating
Very energy efficient - lower running costs
Not energy efficient - higher running costs
Current
63Potential
80CO2 Rating
Very energy efficient - lower running costs
Not energy efficient - higher running costs
