This calculator provides a guide to the amount of residential stamp duty you may pay and does not guarantee this will be the actual cost. This calculation is based on the Stamp Duty Land Tax Rates for residential properties purchased from 23rd September 2022 and second homes from 31st October 2024. For more information on Stamp Duty Land Tax, click here.
4 bedroom Detached Bungalow for sale, Castle View, Chester Le Street, Durham, DH3
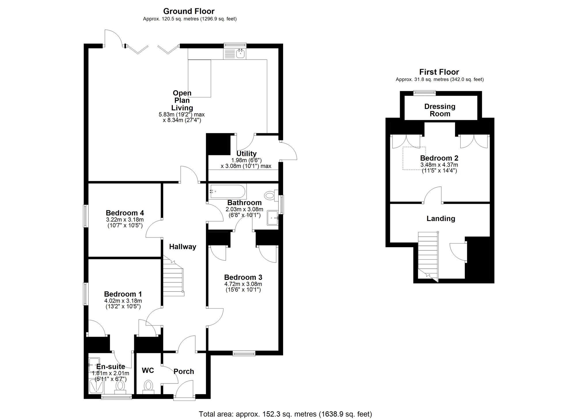
Features and Description
- Four Bedroom Detached Bungalow
- Open Plan Living/Dining/Kitchen Area
- Ample Fitted Storage Throughout
- Council Tax Band D
- EPC Rating D
- Approx. 113sqm/1216sqft Accommodation
Nestled in a highly sought-after area of Chester-le-Street, this beautiful four-bedroom Detached bungalow offers stylish, modern living with generous space throughout, perfect for growing families. Tucked away at the end of a private cul-de-sac, the property enjoys a peaceful setting while remaining conveniently close to local schools, shops, and amenities, along with excellent transport links to Chester-le-Street town centre, Durham, and Newcastle.
Upon entering, you are greeted by a bright and spacious hallway that leads into an impressive open-plan kitchen, dining, and living area. Designed with both comfort and entertaining in mind, this space features contemporary fitted units, integrated appliances, and ample work surfaces. Bi-fold doors flood the room with natural light and seamlessly connect indoor and outdoor living, while a stylish media wall adds a modern focal point.
The ground floor also hosts three well-proportioned double bedrooms. One benefits from a private en-suite. Fitted wardrobes and storage solutions enhance practicality throughout.
A beautifully appointed family bathroom completes the ground floor, featuring an L-shaped bath with overhead shower, wash basin, and WC.
Additional conveniences include a separate utility room and ground floor WC.
Upstairs, the first floor is dedicated to a spacious principal bedroom suite, complete with fitted storage and a dressing room, offering a private and tranquil retreat.
Externally, the property boasts a private driveway providing off-road parking, along with a low-maintenance rear garden, perfect for relaxing or entertaining during the warmer months.
IMPORTANT NOTE TO POTENTIAL PURCHASERS:
We endeavour to make our particulars accurate and reliable, however, they do not constitute or form part of an offer or any contract and none is to be relied upon as statements of representation or fact. The services, systems and appliances listed in this specification have not been tested by us and no guarantee as to their operating ability or efficiency is given. All photographs and measurements have been taken as a guide only and are not precise. Floor plans where included are not to scale and accuracy is not guaranteed. If you require clarification or further information on any points, please contact us, especially if you are travelling some distance to view. Fixtures and fittings other than those mentioned are to be agreed with the seller.
Castle View, Chester Le Street, Durham, DH3
Additional Information
-
Property refQCT240198
-
EPCD
-
TenureFreehold
-
Council TaxD
-
Local authorityDurham County Council
Similar properties for sale by Your Move Chester-le-Street
The pin shows the exact address of the property
Energy Efficiency Rating
Very energy efficient - lower running costs
Not energy efficient - higher running costs
Current
68Potential
100CO2 Rating
Very energy efficient - lower running costs
Not energy efficient - higher running costs
