This calculator provides a guide to the amount of residential stamp duty you may pay and does not guarantee this will be the actual cost. This calculation is based on the Stamp Duty Land Tax Rates for residential properties purchased from 23rd September 2022 and second homes from 31st October 2024. For more information on Stamp Duty Land Tax, click here.
4 bedroom Detached House for sale, Dargets Road, Chatham, Kent, ME5
Features and Description
- Detached family home
- 1,722 sq ft
- Swimming pool
- 23 ft lounge
- Snug
- Conservatory
- Generous plot size
- Garage and ample parking
This detached family home boasts many great features and is set on a generous plot.
Benefits to note include a 23 ft lounge, 21ft kitchen, a snug, conservatory, ground floor bedroom/study, large master bedroom, swimming pool, integral garage and a driveway for several cars.
With woodlands to the rear and side of the property this home is sure to impress all viewers so an early viewing is highly recommended.
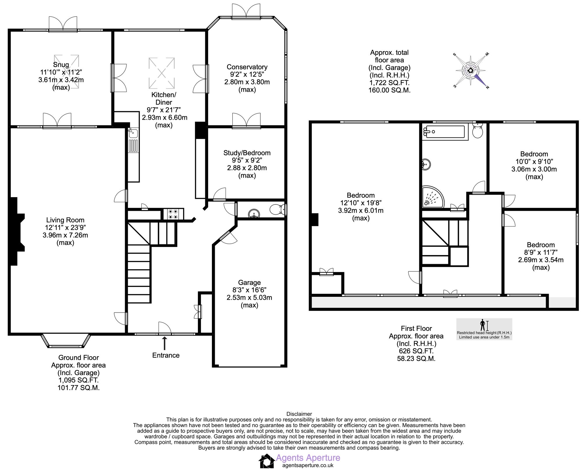
Living Room
23,9 x 12,11
Double glazed window to the front, fireplace, door to the hallway, door to the kitchen, double doors leading to the sung
Snug
11,2 x 11,10
French doors leading to the garden, sky light, double doors leading to the kitchen diner
Kitchen Diner
21,7 x 9,7
Range and wall base units, selection of integral appliances, sky light, double doors leading to the conservatory
Conservatory
12,5 x 9,2
French doors leading to the garden, double doors leading to the study/bedroom 4
Study / Bedroom 4
9,4 x 9,18
Double doors leading to conservatory, door to hall way
WC
W/C, wash hand basin,
Bedroom 1
19,8 x 12,10
Double glazed windows to the front and rear, storage cupboard
Bedroom 2
10 x 9,10
Double glazed window
Bedroom 3
11,7 x 8,9
Double glazed window
Bathroom
Shower cubicle, w/c, wash hand basin, stand alone bath
Rear garden
Large garden with some laid to lawn, a patio area, swimming pool, storage sheds and gates leading to woodlands.
Garage
16,6 x 8,3
Integral garage with light and power
Parking
Driveway for several cars
IMPORTANT NOTE TO POTENTIAL PURCHASERS:
We endeavour to make our particulars accurate and reliable, however, they do not constitute or form part of an offer or any contract and none is to be relied upon as statements of representation or fact. The services, systems and appliances listed in this specification have not been tested by us and no guarantee as to their operating ability or efficiency is given. All photographs and measurements have been taken as a guide only and are not precise. Floor plans where included are not to scale and accuracy is not guaranteed. If you require clarification or further information on any points, please contact us, especially if you are travelling some distance to view. Fixtures and fittings other than those mentioned are to be agreed with the seller.
Dargets Road, Chatham, Kent, ME5
Additional Information
-
Property refWAL260009
-
TenureFreehold
-
Council TaxF
-
Local authorityMedway Council
Similar properties for sale by Your Move Walderslade
The pin shows the exact address of the property
Energy Efficiency Rating
Very energy efficient - lower running costs
Not energy efficient - higher running costs
Current
N/APotential
N/ACO2 Rating
Very energy efficient - lower running costs
Not energy efficient - higher running costs
