This calculator provides a guide to the amount of residential stamp duty you may pay and does not guarantee this will be the actual cost. This calculation is based on the Stamp Duty Land Tax Rates for residential properties purchased from 23rd September 2022 and second homes from 31st October 2024. For more information on Stamp Duty Land Tax, click here.
4 bedroom Detached House for sale, Grasslees, Washington, Tyne and Wear, NE38
Features and Description
Situated on the highly regarded Grasslees development in Rickleton, this impressive four bedroom detached family home offers generous living space throughout, beautifully presented interiors, and a stunning garden room style conservatory overlooking a landscaped rear garden.
This is a true executive-style home, perfect for families looking for space, versatility and a ready-to-move-into property in one of Washington’s most sought-after residential areas.
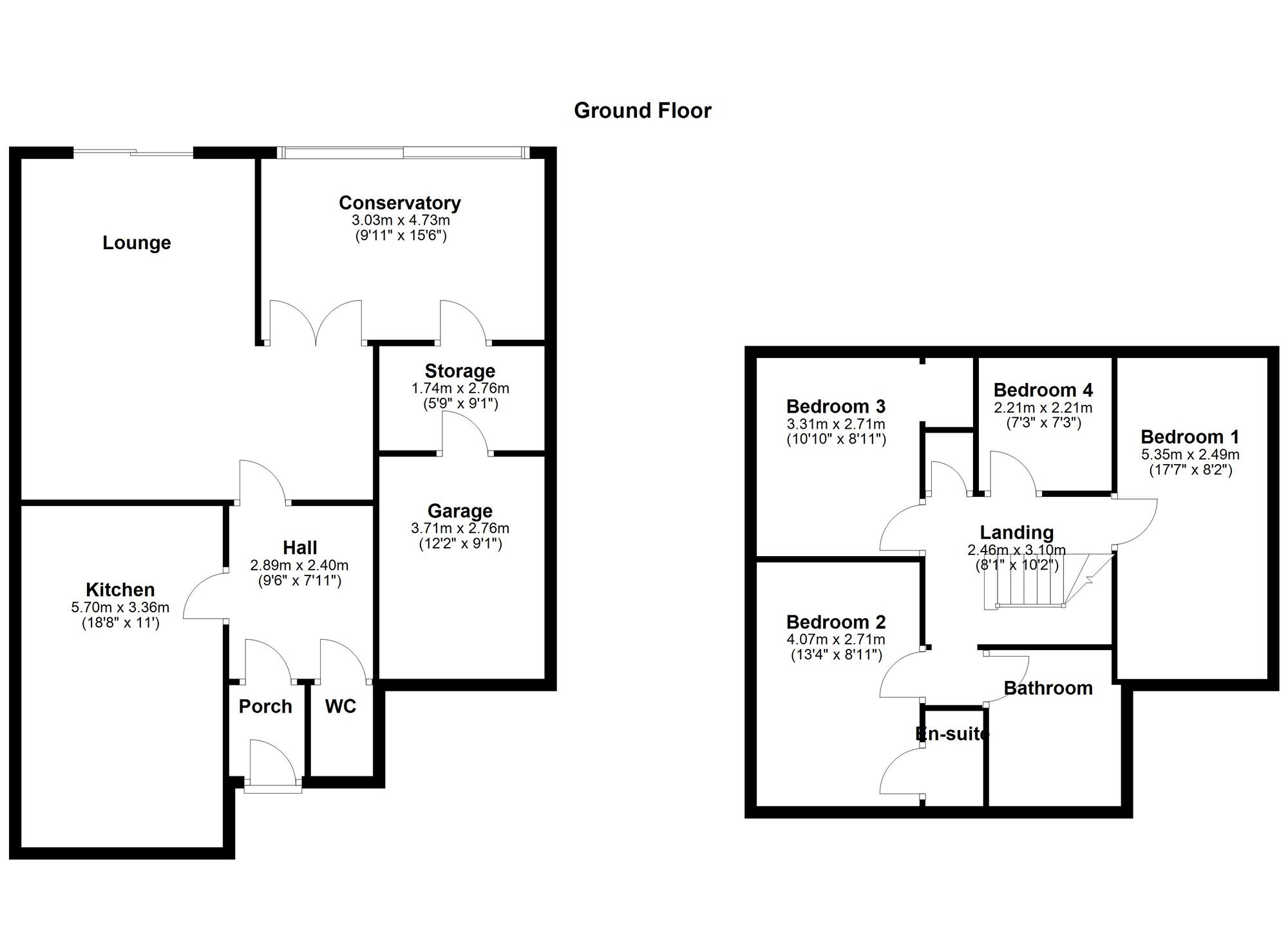
To the ground floor, the property briefly comprises a welcoming entrance hallway with WC, a spacious lounge, and a superb open-plan kitchen/dining space ideal for modern family living. To the rear, the standout feature is the large conservatory/garden room, flooded with natural light and creating a fantastic additional reception area with direct access to the garden. There is also a useful storage area leading through to the garage, offering excellent practicality.
To the first floor, a generous landing provides access to four well-proportioned bedrooms, including a spacious principal bedroom with en-suite shower room, alongside a modern family bathroom.
Externally, the property boasts a beautifully landscaped rear garden, designed for both relaxation and entertaining, with patio seating areas, raised lawn and low-maintenance finishes. To the front, there is ample parking via driveway and access to the integral garage.
Accommodation
Ground Floor
Entrance Porch
Access to the property, leading into hallway.
Hallway
Spacious and welcoming, with access to principal rooms and stairs to first floor.
WC
Convenient ground floor cloakroom fitted with low level WC and wash hand basin.
Lounge 5.7m x 3.9m
A generous main reception room, well-presented and ideal for relaxing.
Kitchen 5.7m x 3.36m
A modern fitted kitchen with a range of wall and base units, integrated appliances and ample space for dining, creating a sociable family hub.
Conservatory / Garden Room – 3.03m x 4.73m (9'11" x 15'6")
A fantastic additional reception space overlooking the rear garden, perfect for entertaining or relaxing.
Storage
Useful internal storage space connecting to the garage.
Garage – 3.71m x 2.76m (12'2" x 9'1")
Integral garage with power and lighting.
First Floor
Landing
Spacious landing with access to all rooms.
Bedroom One – 5.35m x 2.49m (17'7" x 8'2")
A large principal bedroom with space for wardrobes and access to:
En-Suite
Modern shower room with walk-in shower, WC and wash hand basin.
Bedroom Two – 4.07m x 2.71m (13'4" x 8'11")
A well-proportioned double bedroom.
Bedroom Three – 3.31m x 2.71m (10'10" x 8'11")
Another good-sized bedroom.
Bedroom Four – 2.21m x 2.21m (7'3" x 7'3")
Ideal as a single bedroom, nursery or home office.
Family Bathroom
Fitted with a bath, wash hand basin and WC.
Externally
The rear garden is a real feature of the property, offering a private, landscaped space with patio seating areas, raised lawn and decorative stone borders – perfect for both entertaining and low-maintenance living.
To the front, there is a driveway providing off-street parking along with access to the garage.
IMPORTANT NOTE TO POTENTIAL PURCHASERS:
We endeavour to make our particulars accurate and reliable, however, they do not constitute or form part of an offer or any contract and none is to be relied upon as statements of representation or fact. The services, systems and appliances listed in this specification have not been tested by us and no guarantee as to their operating ability or efficiency is given. All photographs and measurements have been taken as a guide only and are not precise. Floor plans where included are not to scale and accuracy is not guaranteed. If you require clarification or further information on any points, please contact us, especially if you are travelling some distance to view. Fixtures and fittings other than those mentioned are to be agreed with the seller.
Grasslees, Washington, Tyne and Wear, NE38
Additional Information
-
Property refQWS260095
-
EPCC
-
TenureFreehold
-
Council TaxE
-
Local authoritySunderland City Council
Similar properties for sale by Your Move Washington
The pin shows the exact address of the property
Energy Efficiency Rating
Very energy efficient - lower running costs
Not energy efficient - higher running costs
Current
69Potential
75CO2 Rating
Very energy efficient - lower running costs
Not energy efficient - higher running costs
