This calculator provides a guide to the amount of residential stamp duty you may pay and does not guarantee this will be the actual cost. This calculation is based on the Stamp Duty Land Tax Rates for residential properties purchased from 23rd September 2022 and second homes from 31st October 2024. For more information on Stamp Duty Land Tax, click here.
4 bedroom Detached House for sale, Lambley Bank, Scotby, Cumbria, CA4
Features and Description
- Stunning location in Scotby
- Beautifully presented four bedroom detached
- Primary bedroom with dressing room and bathroom
- Three further bedrooms all with en-suite shower rooms
- Kitchen Dining Room
- Spacious Utility Room
- Living and Sitting Rooms
- Garden Room overlooking Cricket Ground
- Double Detached Garage
- Close to M6 junction 42
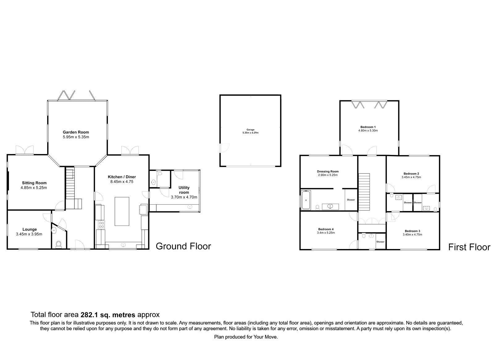
Beautifully presented four bedroom detached property on Lambley Bank, at the edge of Scotby. The accommodation comprises an entrance hallway, living and sitting rooms, garden room, kitchen/diner, utility and two cloakrooms. The first floor offers four double bedrooms with primary bedroom having a dressing room and en-suite bathroom, the other bedrooms all having en-suite shower rooms. Externally is a gated private gravel driveway, generous garden and double detached garage.
Entrance Hall
Inviting entrance hallway incorporating neutral decor and modern oak/glass style staircase. Leads to garden room and kitchen/diner.
Cloakroom 1
Accessed from the hallway with sink, WC, partial wall and floor tiling.
Kitchen Dining Room
27'9" x 15'7" (8.45m x 4.75m)
Incorporating a generous range of quality wall and base units, sink unit, integrated dishwasher contrasting granite style worktops, central island with seating area. Spaces for and not included, American style fridge/freezer, AGA cooker. Dining area and floor tiling. Leads to utility room.
Utility Room
12'2" x 15'5" (3.70m x 4.70m)
Offering a range of wall and base units, contrasting worktops, sink with mixer tap, spaces for washing machine and tumble dryer, integrated wine cooler, two windows. Leads to patio/garden.
Cloakroom 2
Accessed from the utility room, with vanity unit incorporating sink and WC, wall mounted mirror and floor tiling.
Sitting Room
15'11" x 17'3" (4.85m x 5.25m)
With neutral décor, open fire and surround, two windows and French doors providing access to rear garden
Garden Room
19'6" x 17'7" (5.95m x 5.35m)
With three picture windows, open views of the garden and overlooking Scotby Cricket Ground.
Lounge
11'4" x 12'12" (3.45m x 3.95m)
Positioned at the front of the property, with two windows.
Landing
Comprises oak style/glass balustrade and double mirrored storage units with shelving and housing the boiler.
Primary Bedroom
15'9" x 17'5" (4.80m x 5.30m)
Positioned at the rear of the property, overlooking the garden, with two sets of French doors opening onto Juliet balcony.
Dressing Room
9'6" x 17'3" (2.90m x 5.25m)
Spacious dressing room, accessed from primary bedroom, with shelving and storage. Leads to bathroom.
Bathroom
8'2" x 17'3" (2.50m x 5.25m)
Four piece white suite with freestanding bath, separate double shower, glass style screen, wall mounted LED mirror, downlighters, double floating vanity unit with sinks, heated towel rail, WC, wall and floor tiling.
Bedroom 2
11'4" x 15'7" (3.45m x 4.75m)
Double bedroom, positioned at the rear of the property, with neutral décor.
En-Suite for Bedroom 2
With double shower, glass style screen, wall mounted mirror, floating vanity unit with sink, WC, wall and floor tiles.
Bedroom 3
11'2" x 15'7" (3.40m x 4.75m)
Double bedroom, positioned at the front of the property, with neutral décor.
En-Suite for Bedroom 3
With double shower, glass style screen, wall mounted mirror, floating vanity unit with sink, WC, wall and floor tiles.
Bedroom 4
11'2" x 17'3" (3.40m x 5.25m)
Double bedroom, positioned at the front of the property, with neutral décor.
En-Suite for Bedroom 4
With double shower, glass style screen, wall mounted mirror, floating vanity unit with sink, WC, wall and floor tiles.
Double Detached garage
17'7" x 20'8" (5.35m x 6.29m)
Double garage with electric up and over door, side door, electric sockets, lighting and bar.
External
The property is accessed via a gated entrance onto a gravel driveway. The rear garden incorporates a seating area with steps leading to a lower patio area, lawn and mature planting.
Additional
Double glazing and gas heating. The ground floor benefits from under floor heating. There is a CCTV system fitted which can be accessed via an app.
Agent's Note
Property is within a conservation area. Map available from Branch for interested buyers. For further information on conservation details use the following link - https://historicengland.org.uk/advice/your-home/owning-historic-property/conservation-area/
IMPORTANT NOTE TO POTENTIAL PURCHASERS:
We endeavour to make our particulars accurate and reliable, however, they do not constitute or form part of an offer or any contract and none is to be relied upon as statements of representation or fact. The services, systems and appliances listed in this specification have not been tested by us and no guarantee as to their operating ability or efficiency is given. All photographs and measurements have been taken as a guide only and are not precise. Floor plans where included are not to scale and accuracy is not guaranteed. If you require clarification or further information on any points, please contact us, especially if you are travelling some distance to view. Fixtures and fittings other than those mentioned are to be agreed with the seller.
Agents are required by law to conduct Anti-Money Laundering checks on all buyers. Your Move Carlisle, Whitehaven and Wigton charge £30 including VAT per buyer. The charge covers the cost of obtaining and retaining relevant data from a third party. This fee is payable in advance prior to issuing a memorandum of sale and before the property can be sale agreed.
Lambley Bank, Scotby, Cumbria, CA4
Additional Information
-
Property refCAR250896
-
EPCB
-
TenureFreehold
-
Council TaxG
-
Local authorityCumberland Council
Inviting entrance hallway incorporating neutral decor and modern oak/glass style staircase. Leads to garden room and kitchen/diner.
Incorporating a generous range of quality wall and base units, sink unit, integrated dishwasher contrasting granite style worktops, central island with seating area. Spaces for and not included, American style fridge/freezer, AGA cooker. Dining area and floor tiling. Leads to utility room.
Offering a range of wall and base units, contrasting worktops, sink with mixer tap, spaces for washing machine and tumble dryer, integrated wine cooler, two windows. Leads to patio/garden.
Accessed from the utility room, with vanity unit incorporating sink and WC, wall mounted mirror and floor tiling.
With neutral décor, open fire and surround, two windows and French doors providing access to rear garden
With three picture windows, open views of the garden and overlooking Scotby Cricket Ground.
Positioned at the rear of the property, overlooking the garden, with two sets of French doors opening onto Juliet balcony.
Double bedroom, positioned at the front of the property, with neutral décor.
The property is accessed via a gated entrance onto a gravel driveway. The rear garden incorporates a seating area with steps leading to a lower patio area, lawn and mature planting.
The pin shows the exact address of the property
Energy Efficiency Rating
Very energy efficient - lower running costs
Not energy efficient - higher running costs
Current
86Potential
90CO2 Rating
Very energy efficient - lower running costs
Not energy efficient - higher running costs
