This calculator provides a guide to the amount of residential stamp duty you may pay and does not guarantee this will be the actual cost. This calculation is based on the Stamp Duty Land Tax Rates for residential properties purchased from 23rd September 2022 and second homes from 31st October 2024. For more information on Stamp Duty Land Tax, click here.
3 bedroom Detached House for sale, Little Burn Way, Pelton Fell, Durham, DH2
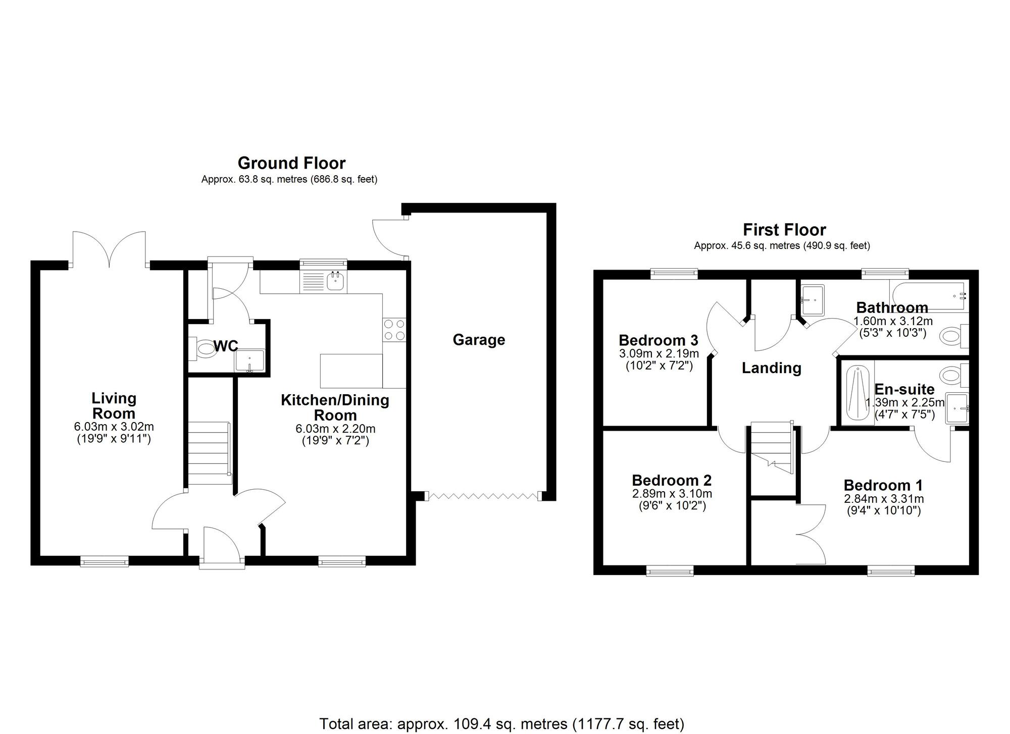
Features and Description
- Three Bedroom Detached
- Stunning Kitchen/Dining Area
- Driveway & Garage
- EPC Rating Awaited
- Council Tax Band C
- Approx. 90sqm/969sqft Accommodation
Coming to the market is this beautiful three-bedroom detached property, situated in the peaceful setting of Pelton Fell. Ideally located close to local shops and convenient bus routes, and just a short drive from Chester-le-Street town centre, this home will appeal to a wide range of buyers.
Upon entering through the front door, you are welcomed into a bright and spacious living room, beautifully presented and perfect for relaxing or entertaining guests.
To the rear of the property is the heart of the home, a stunning kitchen/dining room, tastefully decorated and offering ample worktop space along with integrated appliances. This fantastic space is ideal for both everyday family life and hosting. A convenient downstairs WC completes the ground floor.
Upstairs, the property offers three well-proportioned bedrooms. Two comfortably accommodate double beds, while the third makes an ideal single bedroom, nursery, or home office. The generous master bedroom benefits from a handy en-suite and built-in storage cupboard. A modern family bathroom completes the first floor.
Externally, the property features a driveway to the front, providing off-road parking and access to an attached garage. To the rear, there is a lovely patio area, perfect for outdoor dining, along with a generous lawned garden offering plenty of space to enjoy.
IMPORTANT NOTE TO POTENTIAL PURCHASERS:
We endeavour to make our particulars accurate and reliable, however, they do not constitute or form part of an offer or any contract and none is to be relied upon as statements of representation or fact. The services, systems and appliances listed in this specification have not been tested by us and no guarantee as to their operating ability or efficiency is given. All photographs and measurements have been taken as a guide only and are not precise. Floor plans where included are not to scale and accuracy is not guaranteed. If you require clarification or further information on any points, please contact us, especially if you are travelling some distance to view. Fixtures and fittings other than those mentioned are to be agreed with the seller.
Little Burn Way, Pelton Fell, Durham, DH2
Additional Information
-
Property refQCT260066
-
TenureFreehold
-
Council TaxC
-
Local authorityDurham County Council
Similar properties for sale by Your Move Chester-le-Street
The pin shows the exact address of the property
Energy Efficiency Rating
Very energy efficient - lower running costs
Not energy efficient - higher running costs
Current
N/APotential
N/ACO2 Rating
Very energy efficient - lower running costs
Not energy efficient - higher running costs
