This calculator provides a guide to the amount of residential stamp duty you may pay and does not guarantee this will be the actual cost. This calculation is based on the Stamp Duty Land Tax Rates for residential properties purchased from 23rd September 2022 and second homes from 31st October 2024. For more information on Stamp Duty Land Tax, click here.
4 bedroom Detached House for sale, Meadow Hill, Newcastle upon Tyne, Tyne and Wear, NE15
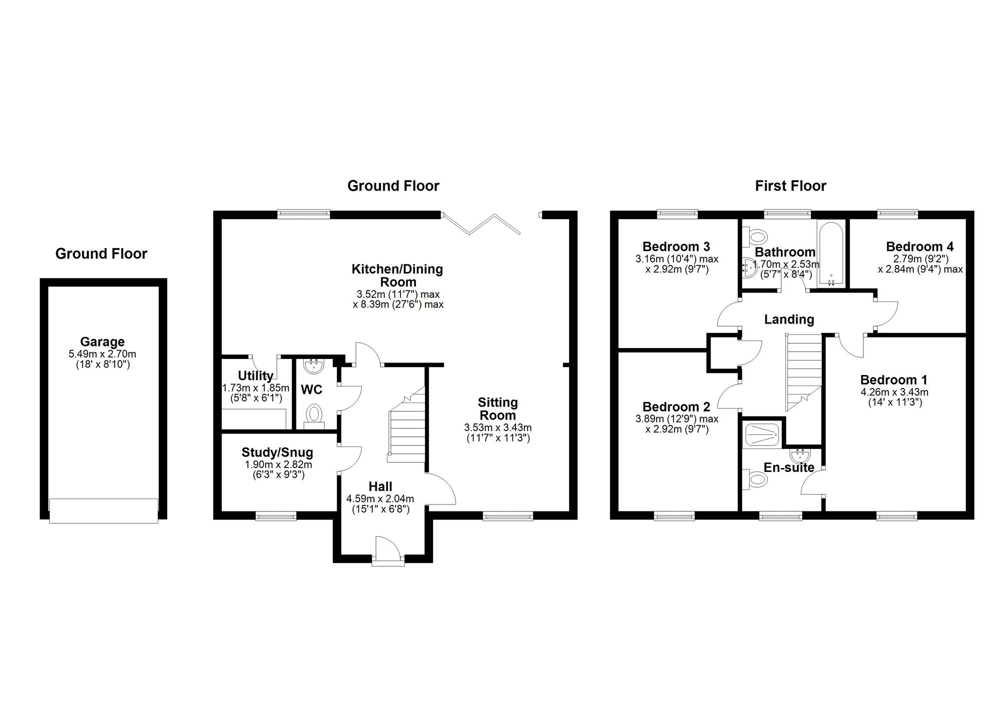
Features and Description
- Four Bedroom Detached House
- Cul-de-sac Location
- Beautifully presented inside and out
- Floor Area - Approximate 1205 Sq.ft / 112 Sq.m
- Council Tax Band - E
- EPC Rating - B
A beautifully presented four-bedroom detached family home, situated within this sought-after modern development in Throckley and constructed by Cussins in 2021.
The property offers immaculate, contemporary décor throughout, complemented by a south-facing rear garden and generous off-street parking to the front and side. Given the high standard of presentation and the level of accommodation on offer, early viewing is strongly recommended.
The property is entered via a welcoming hallway, finished in warm, modern tones that set the standard for the rest of the home. From here, access is provided to the front-facing lounge, a versatile snug, a ground floor WC, the open-plan kitchen/dining/living space, a useful under-stairs storage cupboard, and the staircase to the first floor. The main living accommodation is arranged in an L-shaped open-plan layout, ideal for contemporary family living and entertaining. The space is flooded with natural light courtesy of multiple windows to both the front and rear, in addition to bi-folding doors opening from the dining area to the garden. The shaker-style kitchen is both stylish and practical, featuring laminate worktops, a breakfast bar, and a range of integrated appliances including a fridge/freezer, dishwasher, electric oven, gas hob and extractor hood. A separate utility room offers further storage and provides space for a washing machine and tumble dryer. The additional snug room is currently utilised as a reading room but offers excellent flexibility and could easily be adapted to suit a variety of lifestyle needs.
The first-floor landing provides access to all four bedrooms, the family bathroom, and a useful storage cupboard. Three of the bedrooms are well-proportioned doubles, with the fourth being a generous single room, currently used as a dressing room. The principal bedroom benefits from a modern ensuite comprising a walk-in shower cubicle, wash hand basin and low-level WC. The family bathroom is finished to a high standard and features a fitted bathtub with a handheld shower attachment.
Occupying a substantial plot, the property benefits from an extensive paved driveway to the front and side, providing ample off-street parking. This is complemented by low-level mature borders and decorative gravel detailing. Access to the detached garage and rear garden is available via a wooden side gate. The south-facing rear garden is predominantly laid to lawn, with a large patio area perfectly positioned to enjoy the sunny aspect. Enclosed by tall fencing, the garden offers a high degree of privacy. Bi-folding doors from the living space open directly onto the patio, creating a seamless connection between indoor and outdoor areas and making it ideal for entertaining.
The property is situated on the new Meadow Hill estate on Hexham Road in Throckley village. Throckley is located on the edge of the Tyne Valley, but Newcastle is close at hand along the nearby A69. The village provides an excellent array of local services, including primary school, shops and pubs, including a Sainsburys store. The renowned hotels of Close House and Matfen Hall are also nearby.
We understand the property is freehold.
IMPORTANT NOTE TO POTENTIAL PURCHASERS:
We endeavour to make our particulars accurate and reliable, however, they do not constitute or form part of an offer or any contract and none is to be relied upon as statements of representation or fact. The services, systems and appliances listed in this specification have not been tested by us and no guarantee as to their operating ability or efficiency is given. All photographs and measurements have been taken as a guide only and are not precise. Floor plans where included are not to scale and accuracy is not guaranteed. If you require clarification or further information on any points, please contact us, especially if you are travelling some distance to view. Fixtures and fittings other than those mentioned are to be agreed with the seller.
Meadow Hill, Newcastle upon Tyne, Tyne and Wear, NE15
Additional Information
-
Property refQWD260050
-
EPCB
-
TenureFreehold
-
Council TaxE
-
Local authorityNewcastle Upon Tyne City Council
Similar properties for sale by Your Move West Denton
The pin shows the exact address of the property
Energy Efficiency Rating
Very energy efficient - lower running costs
Not energy efficient - higher running costs
Current
84Potential
94CO2 Rating
Very energy efficient - lower running costs
Not energy efficient - higher running costs
