This calculator provides a guide to the amount of residential stamp duty you may pay and does not guarantee this will be the actual cost. This calculation is based on the Stamp Duty Land Tax Rates for residential properties purchased from 23rd September 2022 and second homes from 31st October 2024. For more information on Stamp Duty Land Tax, click here.
3 bedroom Detached House for sale, Medlar Close, Biddick Woods, Houghton Le Spring, Tyne and Wear, DH4
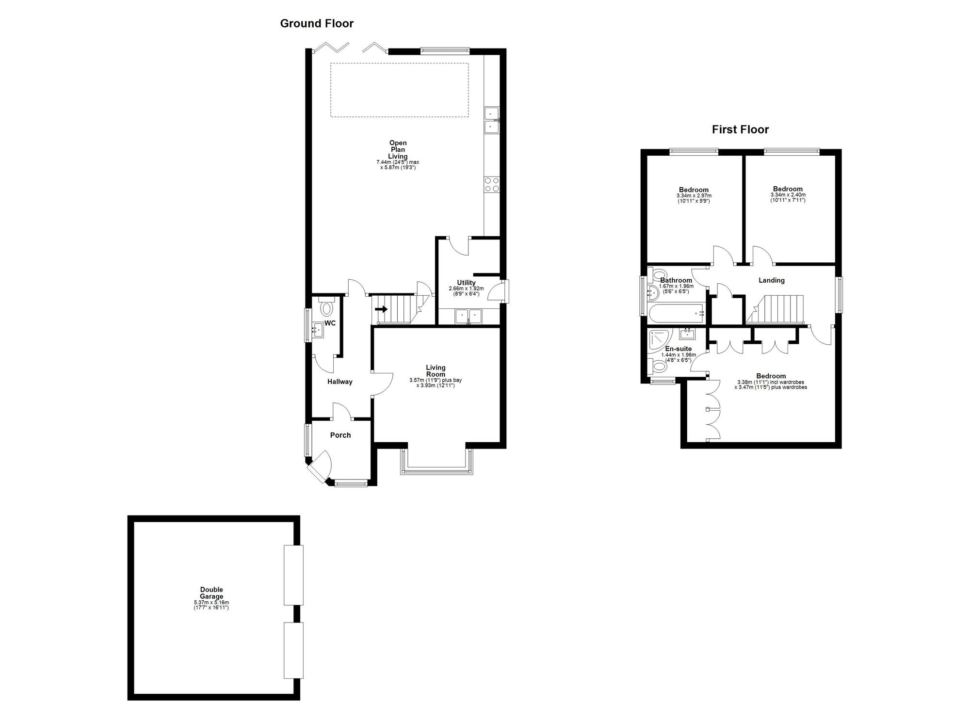
Features and Description
- Extended Detached Family House
- 24ft Open Plan Living
- Double Garage and Parking
- Beautifully Presented throughout
- Council Tax Band D
- Freehold
- EPC Rating C
This is a fine example of a contemporary Detached House and Double Garage that has been significantly Extended and Improved to ensure it meets the needs of the modern family
A spacious Porch and Hallway with useful Cloakroom/WC guides you into the original Lounge which has a walk-in bay. This is now complemented by an impressive 24ft Open Living Area which features an Orangery style roof and bi-folding doors out to the gardens. In addition the Kitchen area includes built in appliances and extensive range of cupboards and working surfaces. This is further supported by the adjoining Utility room which also has side access.
All the bedrooms are double in size and served by a Family Bathroom, with the Master Bedroom having a range of fitted wardrobes and it's own En-Suite Shower facilities.
The front gardens are dedicated to off-street parking which in turn leads to an impressive Double Garage with the rear gardens being enclosed and designed for ease of maintenance.
Set in the heart of Biddick Woods, a popular and well served residential area with a wide choice of local shopping, schooling of all grades, health and leisure facilities all being close at hand
IMPORTANT NOTE TO POTENTIAL PURCHASERS:
We endeavour to make our particulars accurate and reliable, however, they do not constitute or form part of an offer or any contract and none is to be relied upon as statements of representation or fact. The services, systems and appliances listed in this specification have not been tested by us and no guarantee as to their operating ability or efficiency is given. All photographs and measurements have been taken as a guide only and are not precise. Floor plans where included are not to scale and accuracy is not guaranteed. If you require clarification or further information on any points, please contact us, especially if you are travelling some distance to view. Fixtures and fittings other than those mentioned are to be agreed with the seller.
Medlar Close, Biddick Woods, Houghton Le Spring, Tyne and Wear, DH4
Additional Information
-
Property refQHO250439
-
EPCC
-
TenureFreehold
-
Council TaxD
-
Local authoritySunderland City Council
Similar properties for sale by Your Move Houghton-le-Spring
The pin shows the exact address of the property
Energy Efficiency Rating
Very energy efficient - lower running costs
Not energy efficient - higher running costs
Current
70Potential
83CO2 Rating
Very energy efficient - lower running costs
Not energy efficient - higher running costs
