This calculator provides a guide to the amount of residential stamp duty you may pay and does not guarantee this will be the actual cost. This calculation is based on the Stamp Duty Land Tax Rates for residential properties purchased from 23rd September 2022 and second homes from 31st October 2024. For more information on Stamp Duty Land Tax, click here.
4 bedroom Detached House for sale, St. Michaels Avenue, Leverstock Green, Hertfordshire, HP3
Features and Description
- EPC GRADE D
- HIGHLY SOUGHT AFTER AREA
- APPROX 1900 SQ FT OF SPACE
- FOUR TO FIVE BEDROOMS
- LARGE DRIVEWAY & GARAGE
- VERY BRIGHT AND AIRY
- BEAUTIFUL SOUTH WEST GARDEN
- ENORMOUS POTENTIAL TO EXTEND STPP
- CLOSE TO GOOD SCHOOLS
- SHORT WALK TO VILLAGE CENTRE
This four-bedroom detached house is offered for sale in the ever-popular Leverstock Green area of Hemel Hempstead, presenting good condition throughout and significant potential to extend, subject to any required consents.
As you enter the home you are greeted by a large entrance hallway that is bright and spacious allowing a relaxing transition into the interior of the home that provides three reception spaces, including a main reception room with large windows, wood floors, a fireplace and an attractive garden view that acts as the main heart of the home. A further reception space that currently acts as the main dining room also featuring a lovely wood floor, garden outlook and direct access to the rear garden, creating a versatile layout for living and dining. The kitchen benefits from good natural lighting and incorporates dining space, making it well suited for family use and entertaining alike. You also have the added luxury of a downstairs study that could double as a guest bedroom and also a downstairs WC.
Upstairs, there are four double bedrooms. Three bedrooms include built-in wardrobes, providing useful storage. The property offers two bathrooms: one with a free-standing bath and heated towel rail, and a second with a Power shower and heated towel rail, whether you want to have a soak and relax or a quick shower in the morning rush, this property provides the options for both. The property has an expansive loft space just begging to be extended into providing the potential for an additional 2 bedrooms with En Suites.
Externally, the house enjoys a lovely expansive south-facing garden, driveway parking for upwards of NINE cars and a single garage. If you're looking for a beautiful family home that ticks the following boxes this is the one for you. Location, check. Parking,check. Size & further potential, double check!
Leverstock Green is known for its village-style feel with local shops, pubs and amenities nearby, as well as access to schools serving the area. Hemel Hempstead town centre offers a wider range of retail and leisure facilities, including The Marlowes and Riverside shopping areas.
Hemel Hempstead railway station provides services to London Euston in around 30–35 minutes, while Apsley station offers additional connections towards London and the Midlands. Road links are strong, with convenient access to the M1 and M25, making this property suitable for families and commuters seeking a well-located home with scope for future improvement.
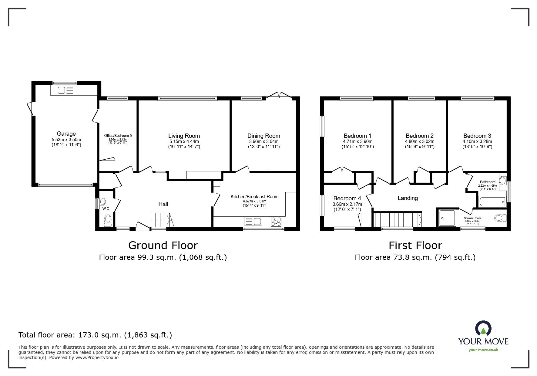
Garage
18.2 x 11.6
Study
12.10 x 7.0
Entrance Hall
9.11 x 17.3
Living Room
14.7 x 16.11
Dining Room
13.0 x 11.11
Kitchen
9.11 x 15.4
Bedroom 1
12.10 x 15.6
Bedroom 2
15.9 x 9.11
Bedroom 3
13.5 x 10.9
Bedroom 4
7.2 x 12.0
IMPORTANT NOTE TO POTENTIAL PURCHASERS:
We endeavour to make our particulars accurate and reliable, however, they do not constitute or form part of an offer or any contract and none is to be relied upon as statements of representation or fact. The services, systems and appliances listed in this specification have not been tested by us and no guarantee as to their operating ability or efficiency is given. All photographs and measurements have been taken as a guide only and are not precise. Floor plans where included are not to scale and accuracy is not guaranteed. If you require clarification or further information on any points, please contact us, especially if you are travelling some distance to view. Fixtures and fittings other than those mentioned are to be agreed with the seller.
St. Michaels Avenue, Leverstock Green, Hertfordshire, HP3
Additional Information
-
Property refHEM260012
-
EPCD
-
TenureFreehold
-
Council TaxG
Similar properties for sale by Your Move Hemel Hempstead
The pin shows the exact address of the property
Energy Efficiency Rating
Very energy efficient - lower running costs
Not energy efficient - higher running costs
Current
68Potential
82CO2 Rating
Very energy efficient - lower running costs
Not energy efficient - higher running costs
