This calculator provides a guide to the amount of residential stamp duty you may pay and does not guarantee this will be the actual cost. This calculation is based on the Stamp Duty Land Tax Rates for residential properties purchased from 23rd September 2022 and second homes from 31st October 2024. For more information on Stamp Duty Land Tax, click here.
4 bedroom Detached House for sale, Stapleford Close, Newcastle upon Tyne, Tyne and Wear, NE5
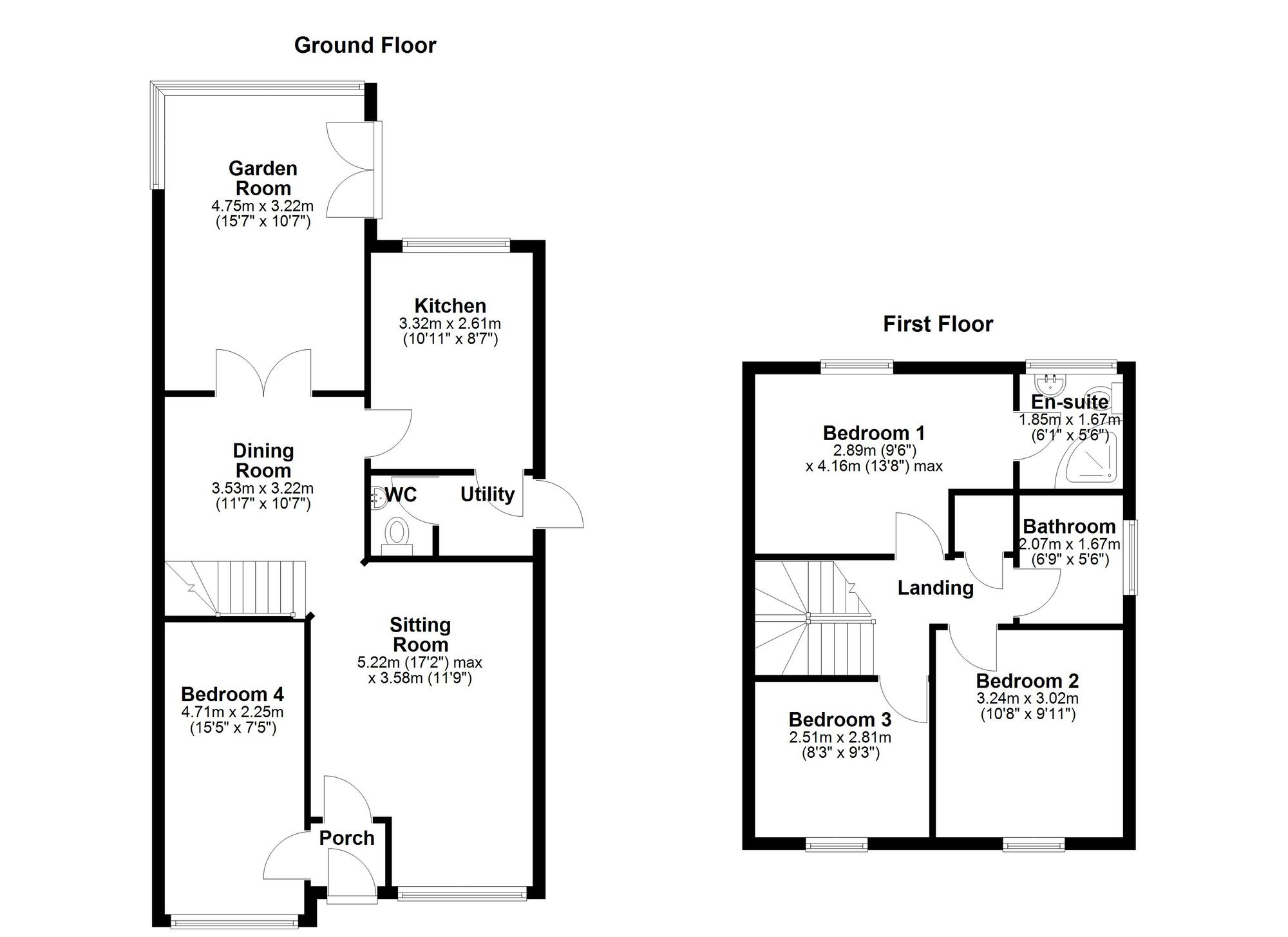
Features and Description
- 3/4 Bedroom Detached House
- Deceptively spacious accommodation
- Fantastic family home
- Floor Area - Approximate 1065 Sq.ft / 99 S.m
- Council Tax Band - C
- EPC Rating - C
Deceptively spacious 3/4 bedroom with versatile accommodation suitable for a variety of needs.
With a pleasant location on this popular estate with open aspect to the front.
The accommodation briefly comprises of; Entrance hall, lounge, dining room, garden room with access to the rear garden, kitchen, utiity room and downstairs WC. The garage has also been converted into the fourth bedroom.
To the first floor there are three bedrooms (master with en-suite shower room) and family bathroom/WC.
The property enjoys a lovely position with a good size plot with fantastic rear garden, predominately patio and seamlessly linked to the garden room. To the front there is a large driveway with space for numerous cars.
The property is located in the popular area of Slatyford. There are numerous bus routes and transport links in the area giving access to the city centre. The A1 and A69 are both close at hand linking to the central motorway network. The property is well presented throughout and enjoys a number of features which should appeal to buyers. These include the fantastic conservatory to the rear and the spacious plot ideal for families. Viewing is an absolute must.
We understand the property is freehold.
IMPORTANT NOTE TO POTENTIAL PURCHASERS:
We endeavour to make our particulars accurate and reliable, however, they do not constitute or form part of an offer or any contract and none is to be relied upon as statements of representation or fact. The services, systems and appliances listed in this specification have not been tested by us and no guarantee as to their operating ability or efficiency is given. All photographs and measurements have been taken as a guide only and are not precise. Floor plans where included are not to scale and accuracy is not guaranteed. If you require clarification or further information on any points, please contact us, especially if you are travelling some distance to view. Fixtures and fittings other than those mentioned are to be agreed with the seller.
Stapleford Close, Newcastle upon Tyne, Tyne and Wear, NE5
Additional Information
-
Property refQWD260101
-
EPCC
-
TenureFreehold
-
Council TaxC
-
Local authorityNewcastle Upon Tyne City Council
Similar properties for sale by Your Move West Denton
The pin shows the exact address of the property
Energy Efficiency Rating
Very energy efficient - lower running costs
Not energy efficient - higher running costs
Current
71Potential
75CO2 Rating
Very energy efficient - lower running costs
Not energy efficient - higher running costs
