This calculator provides a guide to the amount of residential stamp duty you may pay and does not guarantee this will be the actual cost. This calculation is based on the Stamp Duty Land Tax Rates for residential properties purchased from 23rd September 2022 and second homes from 31st October 2024. For more information on Stamp Duty Land Tax, click here.
5 bedroom Detached House for sale, Watson Road, Callerton, Tyne and Wear, NE5
Features and Description
- Five Bedroom Detached House
- Stunningly presented throughout
- Fantastic position within the estate
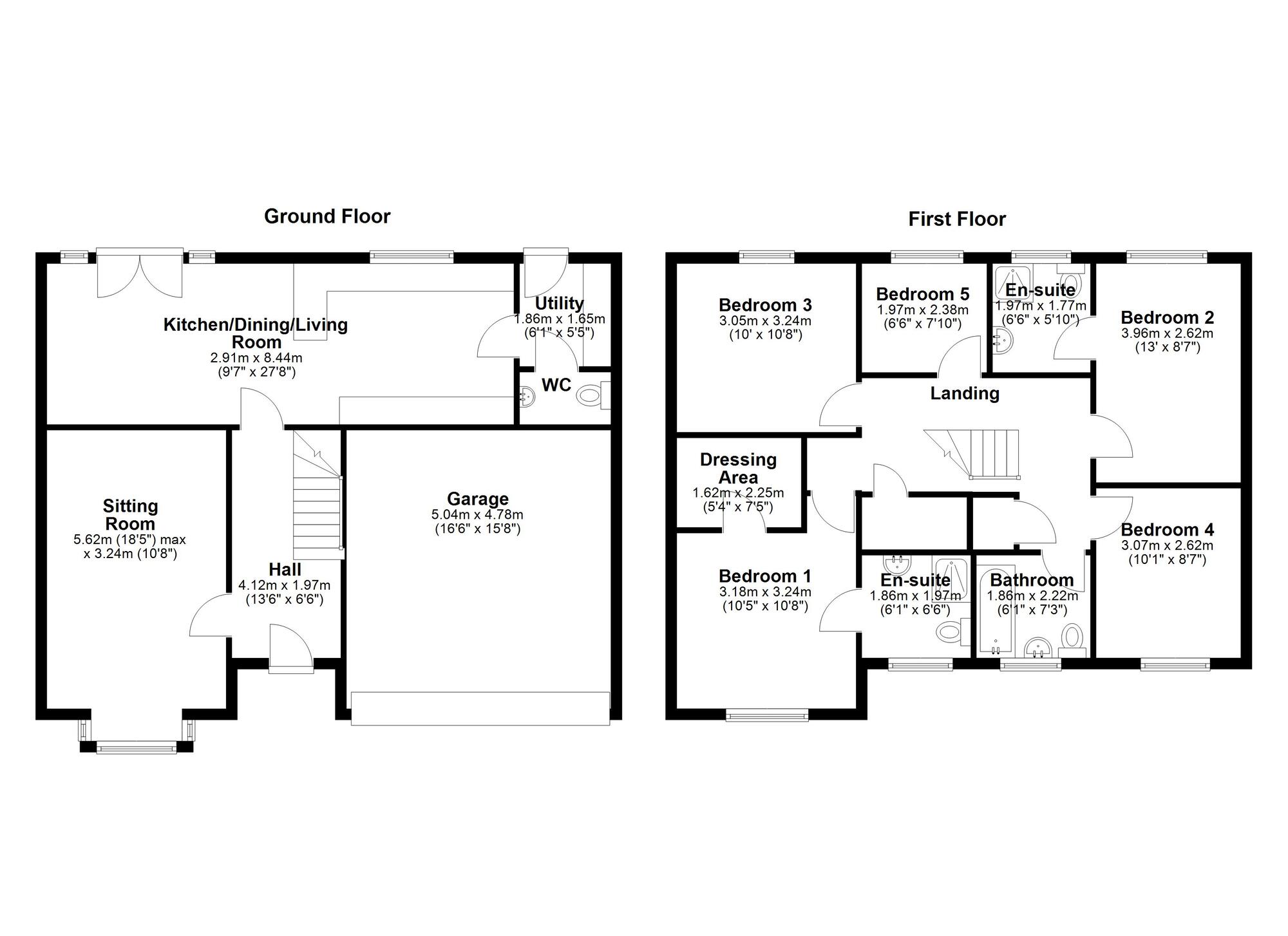
- Floor Area - Approximate Sq.ft / Sq.m
- Council Tax Band - E
- EPC Rating - A
A Stunning Five Bedroom New Build – Finished to an Exceptional Standard Throughout
This beautifully presented, newly built family home offers spacious and versatile accommodation arranged over two floors, thoughtfully designed for modern living. Finished to an impeccable standard throughout, the property combines contemporary style with a practical layout – perfect for growing families and those who love to entertain.
With its generous proportions, stylish finish, and thoughtfully designed layout, this exceptional new build property offers the perfect balance of luxury and practicality. Early viewing is highly recommended to fully appreciate the quality and space on offer.
The welcoming entrance hall provides access to the principal ground floor rooms and staircase to the first floor. To the front of the property, a generous sitting room offers a cosy yet spacious retreat – ideal for relaxing evenings or quieter family time. The true heart of the home is the impressive open-plan kitchen/dining/living room stretching across the rear of the property. Designed with modern lifestyles in mind, this fantastic space is perfect for both day-to-day living and entertaining guests. With ample room for dining and soft seating, it creates a seamless social hub flooded with natural light. The separate utility room provides additional storage and laundry space, keeping the main living area clutter-free, along with a convenient ground floor WC.
The first floor boasts five well-proportioned bedrooms arranged around a central landing. The principal bedroom benefits from a dedicated dressing area and a stylish en-suite shower room, creating a private and luxurious retreat. Bedroom two also enjoys its own en-suite, making it ideal for guests or older children. Three further bedrooms offer flexibility for family living, home working, or hobby space. A contemporary family bathroom completes the first floor, finished with high-quality fittings in keeping with the rest of the home.
Externally there is extensive parking to the front with attached garage and an enclosed garden to the rear comprising lawn and with the added benefit of a patio area, perfect for outdoor dining, entertaining, and family enjoyment.
Stephenson Meadows is a very much sought after new estate to the west of Newcastle. It is a very well laid out development of houses with good size plots. It also provides easy access to the A69 and A1 Trunk roads with links to the central motorway network. Newcastle International Airport is three miles north and provides a range of national and international flights. Newcastle city provides a vast array of schooling, shopping and recreational facilities including the Metro Centre, Sage and Quayside area.
The property is freehold. The property has the benefits of solar panels which form a contribution to reducing energy bills.
IMPORTANT NOTE TO POTENTIAL PURCHASERS:
We endeavour to make our particulars accurate and reliable, however, they do not constitute or form part of an offer or any contract and none is to be relied upon as statements of representation or fact. The services, systems and appliances listed in this specification have not been tested by us and no guarantee as to their operating ability or efficiency is given. All photographs and measurements have been taken as a guide only and are not precise. Floor plans where included are not to scale and accuracy is not guaranteed. If you require clarification or further information on any points, please contact us, especially if you are travelling some distance to view. Fixtures and fittings other than those mentioned are to be agreed with the seller.
Watson Road, Callerton, Tyne and Wear, NE5
Additional Information
-
Property refQWD260140
-
EPCA
-
TenureFreehold
-
Council TaxE
-
Local authorityNewcastle City Council
Similar properties for sale by Your Move West Denton
The pin shows the exact address of the property
Energy Efficiency Rating
Very energy efficient - lower running costs
Not energy efficient - higher running costs
Current
93Potential
95CO2 Rating
Very energy efficient - lower running costs
Not energy efficient - higher running costs
