3 bedroom Detached House to rent, Coach Road, Whitehaven, Cumbria, CA28
Available Unfurnished, from 03/11/2025
Features and Description
- EPC Rating D
- Council Tax Band C
- Security Deposit £1080
- Rent Includes the Gardening
- Furnished
- Detached House
- Three Bedrooms
- Close to Town Centre
- Garden
Please note that the rent includes gardening.
A spacious detached house located within walking distance of Whitehaven town centre. The property is offered on a long term, furnished basis.
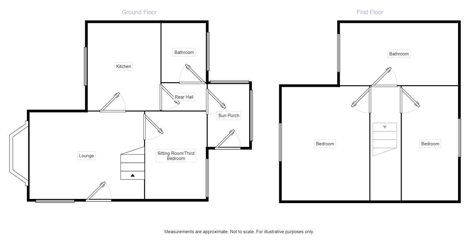
Inside there is a lounge, and a second room that can be used as a separate reception room, or a third bedroom. There is a modern kitchen and downstairs bathroom. To the first floor are two bedrooms and another bathroom. There is a large garden outside. It is heated buy gas central heating, and parking is on street.
EPC Rating to Follow. Council Tax Band D. Security Deposit £1080.
Location
The property is located on the edge of Whitehaven town centre, short walk from a range of shops and amenities.
Lounge
With radiator and double glazed window.
Reception / Bedroom
Having radiator and double glazed window, this could be used as a separate reception room, or a third bedroom.
Kitchen
Fitted with modern white wall and base units, incorporating a sink unit and built in oven and hob.
Sun Porch
With double glazed door.
Bathroom
Having a matching white suite comprising wc, wash basin and bath with shower over.
Bedroom
With radiator and double glazed window.
Bedroom
With radiator and double glazed window.
Bathroom
Fitted with a matching suite comprising, wc and wash basin set within a vanity unit, and bath with shower over.
Garden
To the side and rear of the property is a lawned garden.
IMPORTANT NOTE TO POTENTIAL RENTERS:
We endeavour to make our particulars accurate and reliable, however, they do not constitute or form part of an offer or any contract and none is to be relied upon as statements of representation or fact. The services, systems and appliances listed in this specification have not been tested by us and no guarantee as to their operating ability or efficiency is given. All photographs and measurements have been taken as a guide only and are not precise. Floor plans where included are not to scale and accuracy is not guaranteed. If you require clarification or further information on any points, please contact us, especially if you are travelling some distance to view.
All properties are available for a minimum length of time, with the exception of short term accommodation. Please contact the branch for details. A security deposit of at least one month’s rent is required. Rent is to be paid one month in advance. It is the tenant’s responsibility to insure any personal possessions. Payment of all utilities including water rates or metered supply and Council Tax is the responsibility of the tenant in every case.
Coach Road, Whitehaven, Cumbria, CA28
Additional Information
-
Property refWHV230376
-
EPCD
-
Council TaxC
-
Local authorityCumberland Council
Your Move Letting Agents Whitehaven
Rental Tools
With radiator and double glazed window.
Fitted with modern white wall and base units, incorporating a sink unit and built in oven and hob.
Having a matching white suite comprising wc, wash basin and bath with shower over.
The pin shows the exact address of the property
Energy Efficiency Rating
Very energy efficient - lower running costs
Not energy efficient - higher running costs
Current
56Potential
78CO2 Rating
Very energy efficient - lower running costs
Not energy efficient - higher running costs
