This calculator provides a guide to the amount of residential stamp duty you may pay and does not guarantee this will be the actual cost. This calculation is based on the Stamp Duty Land Tax Rates for residential properties purchased from 23rd September 2022 and second homes from 31st October 2024. For more information on Stamp Duty Land Tax, click here.
4 bedroom End Terrace House for sale, Carston Close, London, SE12
Features and Description
- New Build House
- Four bedrooms
- Two bathrooms
- Separate W/C
- Private rear garden
- FREEHOLD
- CHAIN FREE
- NHBC building warranty
Your Move are delighted to present to the market this stunning and modern new-build four-bedroom, three-storey townhouse, ideally situated in a quiet and highly desirable location.
Finished to an exceptional standard throughout, the property has been thoughtfully designed to maximise natural light, which flows beautifully through every room. The ground floor offers a modern fully fitted kitchen with top of the range appliances, ample storage and a spacious open-plan reception and dining area that leads directly onto a beautifully landscaped rear garden, perfect for entertaining friends and family or enjoying relaxed evenings at home.
The first floor comprises two generous bedrooms and a stylish family bathroom. The second floor offers a further two well-proportioned bedrooms along with an additional contemporary family bathroom, providing excellent flexibility for a growing family, guests, or home office space.
The property also benefits from a 10-year NHBC warranty and is ready to move into immediately. Ideally located within close proximity to excellent transport links, local amenities, and schools, this home offers the perfect blend of comfort, style, and convenience.
Please contact one of our experienced sales representatives today to arrange a viewing or for further information.
*Some images have been virtually staged. Furniture shown is for illustrative purposes only.
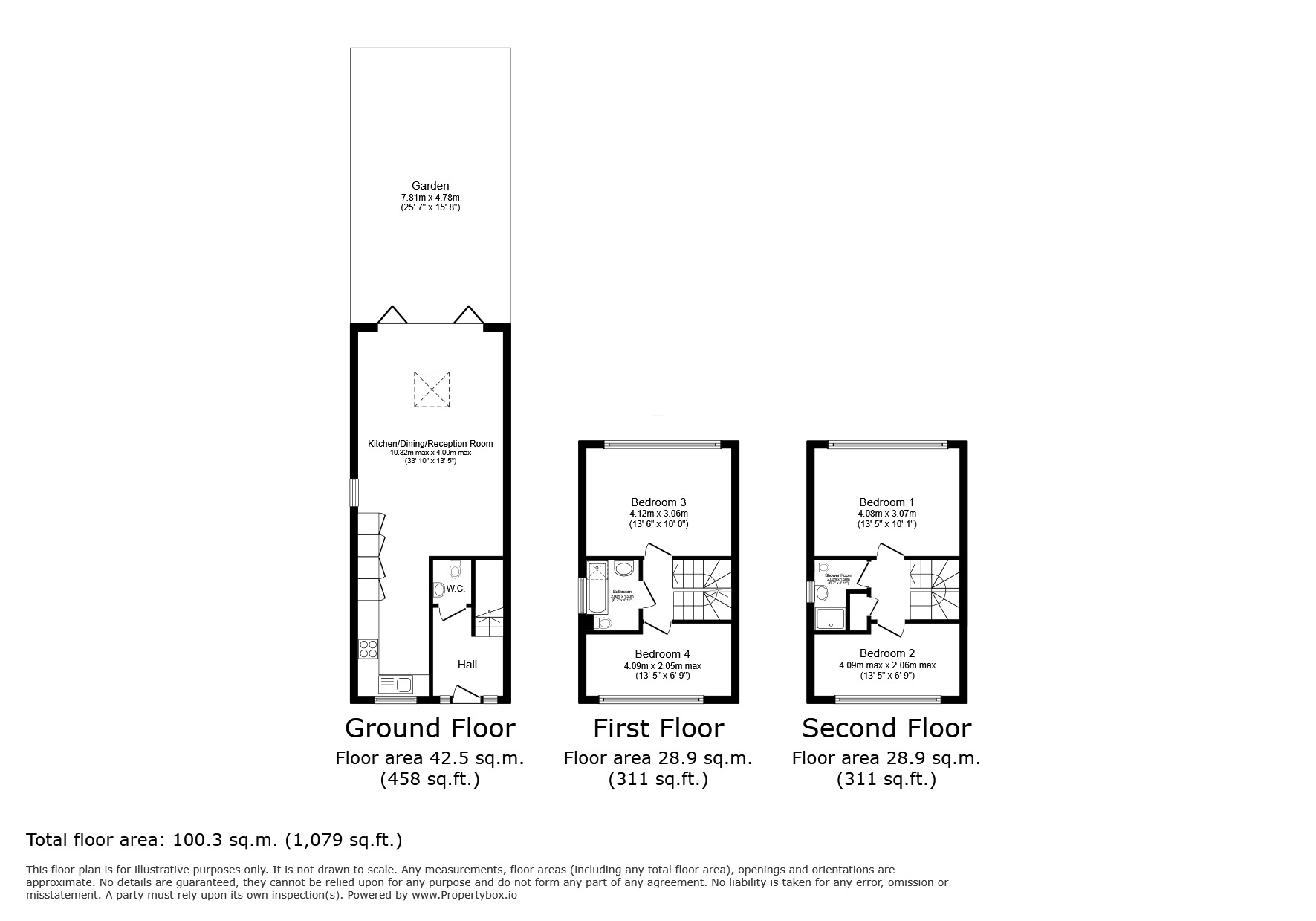
Kitchen / Dining / Reception Room
33'10" x 13'5" (10.30m x 4.10m)
Garden
25'7" x 15'8" (7.80m x 4.78m)
Bedroom 1
13'5" x 6'9" (4.10m x 2.06m)
Bedroom 2
13'6" x 10'1" (4.11m x 3.07m)
Bedroom 3
13'5" x 10'1" (4.10m x 3.07m)
Bedroom 4
13'5" x 6'9" (4.10m x 2.06m)
IMPORTANT NOTE TO POTENTIAL PURCHASERS:
We endeavour to make our particulars accurate and reliable, however, they do not constitute or form part of an offer or any contract and none is to be relied upon as statements of representation or fact. The services, systems and appliances listed in this specification have not been tested by us and no guarantee as to their operating ability or efficiency is given. All photographs and measurements have been taken as a guide only and are not precise. Floor plans where included are not to scale and accuracy is not guaranteed. If you require clarification or further information on any points, please contact us, especially if you are travelling some distance to view. Fixtures and fittings other than those mentioned are to be agreed with the seller.
Carston Close, London, SE12
Additional Information
-
Property refBLA260014
-
EPCA
-
TenureFreehold
-
Council TaxD
-
Local authorityLewisham Council
Similar properties for sale by Your Move Blackheath
The pin shows the exact address of the property
Energy Efficiency Rating
Very energy efficient - lower running costs
Not energy efficient - higher running costs
Current
100Potential
100CO2 Rating
Very energy efficient - lower running costs
Not energy efficient - higher running costs
