4 bedroom End Terrace House to rent, Friends Close, Deal, Kent, CT14
Features and Description
NO CHAIN !! Your Move are proud to offer to the market this deceptively spacious four bedroom family home. Located along the popular location of Friends Close this is one not to be missed. Once inside you will find that the property offers a lounge, kitchen / dining room, utility area, four bedrooms and a family bathroom. To the rear you will find a private enclosed garden. Further benefits include double glazing, gas central heating off street parking for two cars and an integral garage. This property has to be viewed to appreciate what is on offer, call Your Move today to arrange your viewing !!
About Deal
Deal is a town in Kent, England, which lies on the border of the North Sea and the English Channel, eight miles north-east of Dover and eight miles south of Ramsgate. It is a former fishing, mining and garrison town.
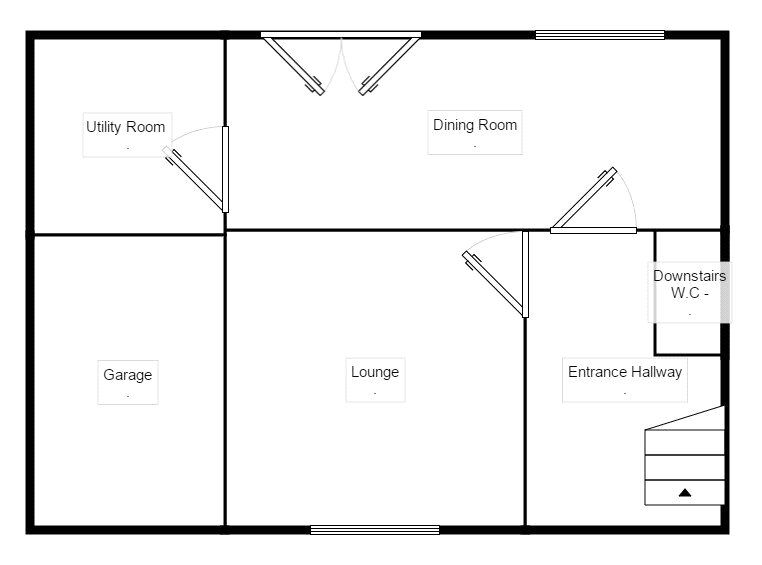
Living Room
11'7" x 10'5" (3.53m x 3.18m)
Kitchen Dining Room
5.7m x 3.12m
Utility Room
8'7" x 4'8" (2.62m x 1.42m)
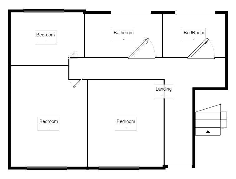
Master Bedroom
11'5" x 10'5" (3.48m x 3.18m)
Bedroom 2
11'8" x 9'5" (3.56m x 2.87m)
Bedroom 3
9'6" x 9'1" (2.90m x 2.77m)
Bedroom 4
8'7" x 8'0" (2.62m x 2.44m)
Bathroom
8'7" x 7'8" (2.62m x 2.34m)
IMPORTANT NOTE TO POTENTIAL RENTERS:
We endeavour to make our particulars accurate and reliable, however, they do not constitute or form part of an offer or any contract and none is to be relied upon as statements of representation or fact. The services, systems and appliances listed in this specification have not been tested by us and no guarantee as to their operating ability or efficiency is given. All photographs and measurements have been taken as a guide only and are not precise. Floor plans where included are not to scale and accuracy is not guaranteed. If you require clarification or further information on any points, please contact us, especially if you are travelling some distance to view.
All properties are available for a minimum length of time, with the exception of short term accommodation. Please contact the branch for details. A security deposit of at least one month’s rent is required. Rent is to be paid one month in advance. It is the tenant’s responsibility to insure any personal possessions. Payment of all utilities including water rates or metered supply and Council Tax is the responsibility of the tenant in every case.
Friends Close, Deal, Kent, CT14
The pin shows the exact address of the property
Energy Efficiency Rating
Very energy efficient - lower running costs
Not energy efficient - higher running costs
Current
83Potential
84CO2 Rating
Very energy efficient - lower running costs
Not energy efficient - higher running costs
