This calculator provides a guide to the amount of residential stamp duty you may pay and does not guarantee this will be the actual cost. This calculation is based on the Stamp Duty Land Tax Rates for residential properties purchased from 23rd September 2022 and second homes from 31st October 2024. For more information on Stamp Duty Land Tax, click here.
2 bedroom Flat for sale, Canterbury Road, Doncaster, South Yorkshire, DN2
Features and Description
- 1st Floor Flat. NO CHAIN
- Wheatley Doncaster
- Leasehold
- Kitchen / Bathroom / Lounge
- EPC Rating TBC
- Communal Gardens
- Off Road Parking
- Viewing Advised
Offered for sale with NO Chain, This 2 bedroom first floor flat, situated within Wheatley Doncaster. Briefly comprising of an entrance hallway, landing, lounge, kitchen and a bathroom, with two rear facing bedrooms. Benefits include a GCHS, DG, Parking Space and communal rear garden. A Viewing is highly recommended. EPC TBC
Location
Popular residential area, close proximity to DRI. Local shops, schools, pubs and recreation parks. Good public transport links.
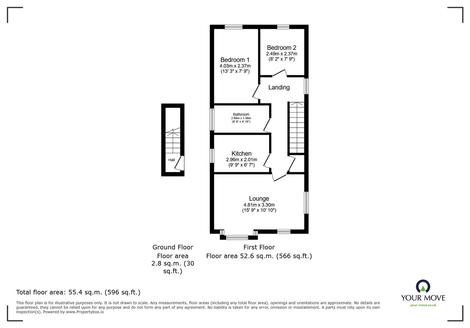
Entrance Hall
A uPVC door leading into the hallway with stairs rising to the first floor landing.
Landing
5.14m x 1.66m max
A double glazed window with fitted blind to the side elevation, a central heating radiator and storage cupboard over stairs housing the wall mounted central heating boiler.
Lounge
3.30m into bay x 4.81m
Light and airy lounge having surrounding double glazed windows with bay to the front with fitted blinds and a central heating radiator.
Kitchen
9'9" x 6'7" (2.96m x 2.01m)
Good range of wall and base level units, providing cupboard and drawer space, roll top work surfaces incorporating an electric hob with an extractor over and oven beneath, a built in sink drainer with mixer tap and tiled splashbacks. Plumbing and space for a washing machine and a fridge freezer. A double glazed window to the side, an extractor fan and a central heating radiator.
Bathroom
9'9" x 4'10" (2.96m x 1.48m)
White three piece suite comprising of a panelled bath with a shower style mixer tap, a low flush w/c and a pedestal wash hand basin with mixer tap. Part tiled walls, a central heating radiator and an extractor fan.
Bedroom 1
13'3" x 7'9" (4.03m x 2.37m)
Double main bedroom with a central heating radiator and a double glazed window with fitted blind.
Bedroom 2
8'2" x 7'9" (2.49m x 2.37m)
Having a double glazed window with fitted blind and a central heating radiator.
Off Road Parking
Off road parking space to the front.
Communal Gardens
Communal rear garden, being fence enclosed and mainly laid to lawn.
Tenure
Leasehold
EPC Rating
EPC Rating TBC
IMPORTANT NOTE TO POTENTIAL PURCHASERS:
We endeavour to make our particulars accurate and reliable, however, they do not constitute or form part of an offer or any contract and none is to be relied upon as statements of representation or fact. The services, systems and appliances listed in this specification have not been tested by us and no guarantee as to their operating ability or efficiency is given. All photographs and measurements have been taken as a guide only and are not precise. Floor plans where included are not to scale and accuracy is not guaranteed. If you require clarification or further information on any points, please contact us, especially if you are travelling some distance to view. Fixtures and fittings other than those mentioned are to be agreed with the seller.
Canterbury Road, Doncaster, South Yorkshire, DN2
Additional Information
-
Property refDON251474
-
TenureLeasehold
-
Council TaxA
-
Local authorityDoncaster Council
-
Ground RentContact the branch
-
Ground Rent ReviewContact the branch
-
Service ChargeContact the branch
Similar properties for sale by Your Move Doncaster
Light and airy lounge having surrounding double glazed windows with bay to the front with fitted blinds and a central heating radiator.
Good range of wall and base level units, providing cupboard and drawer space, roll top work surfaces incorporating an electric hob with an extractor over and oven beneath, a built in sink drainer with mixer tap and tiled splashbacks. Plumbing and space for a washing machine and a fridge freezer. A double glazed window to the side, an extractor fan and a central heating radiator.
White three piece suite comprising of a panelled bath with a shower style mixer tap, a low flush w/c and a pedestal wash hand basin with mixer tap. Part tiled walls, a central heating radiator and an extractor fan.
Double main bedroom with a central heating radiator and a double glazed window with fitted blind.
Having a double glazed window with fitted blind and a central heating radiator.
Communal rear garden, being fence enclosed and mainly laid to lawn.
The pin shows the exact address of the property
Energy Efficiency Rating
Very energy efficient - lower running costs
Not energy efficient - higher running costs
Current
N/APotential
N/ACO2 Rating
Very energy efficient - lower running costs
Not energy efficient - higher running costs
