This calculator provides a guide to the amount of residential stamp duty you may pay and does not guarantee this will be the actual cost. This calculation is based on the Stamp Duty Land Tax Rates for residential properties purchased from 23rd September 2022 and second homes from 31st October 2024. For more information on Stamp Duty Land Tax, click here.
2 bedroom Flat for sale, Dent View, Egremont, Cumbria, CA22
Features and Description
- FIRST FLOOR FLAT
- 2 BEDROOMS
- GAS CENTGRAL HEATING
- DOUBLE GLAZING
- CHAIN FREE
- CLOSE TO TOWN CENTRE
- EPC RATING C
A 2 bedroom first floor flat situated on a housing estate on the outskirts of the town. The property would suit a variety of buyers and is been offered for sale with no onward chain.
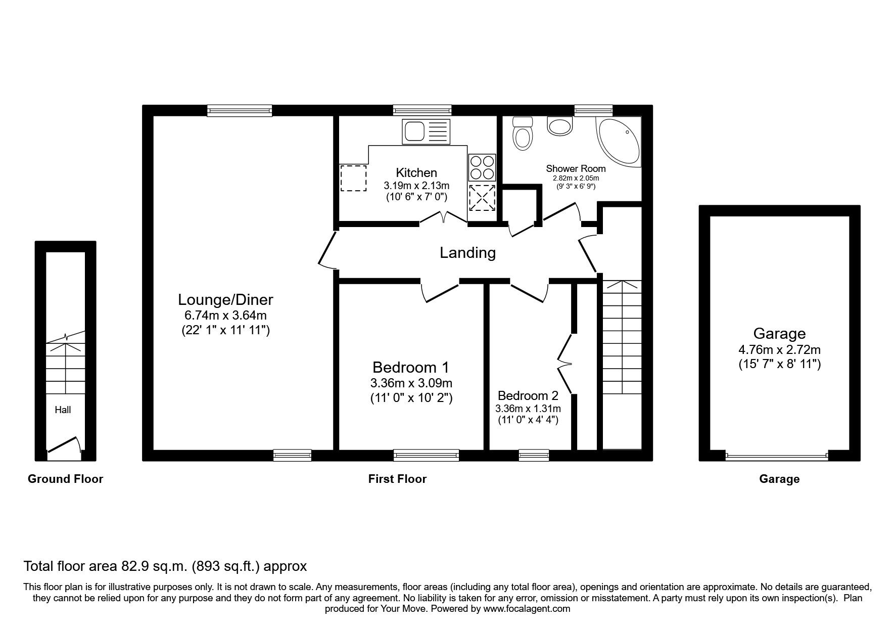
Entrance
Accessed via double glazed front door.
Landing
With radiator, recessed storage cupboard, access to loft space via a pull down ladder the central heating boiler is housed in the loft space.
Lounge / Dining Room
22'1" x 11'11" (6.74m x 3.64m)
With brick effect feature to chimney breast with wall mounted electric fire, three double glazed windows and two radiators.
Kitchen
10'6" x 6'12" (3.19m x 2.13m)
Fitted with wall and base units incorporating sink unit, plumbing connection for automatic washing machine,, small breakfast bar, double glazed window, serving hatch to lounge/dining room and radiator.
Bedroom 1
11'0" x 10'2" (3.36m x 3.09m)
With radiator and double glazed window.
Bedroom 2
11'0" x 4'4" (3.36m x 1.31m)
With radiator and double glazed window. Please note space is restricted to this bedroom due to fitted wardrobes.
Shower Room
9'3" x 6'9" (2.82m x 2.05m)
Fitted with shower enclosure , wash hand basin and w.c housed in vanity unit, ladder towel radiator and pvc panelling to walls and ceiling.
Communal Bin Store
To the side of the property shared with ground floor flat.
Garage
15'7" x 8'11" (4.76m x 2.72m)
Situated En-Bloc to the side of the property with up and over door.
Tenure
LeaseholdTerm: 999 years from 12 August 1988Ground Rent : £10 per annumPayable to British Nuclear Fuels Plc
Agents Notes
The property has gas central heating and double glazing
IMPORTANT NOTE TO POTENTIAL PURCHASERS:
We endeavour to make our particulars accurate and reliable, however, they do not constitute or form part of an offer or any contract and none is to be relied upon as statements of representation or fact. The services, systems and appliances listed in this specification have not been tested by us and no guarantee as to their operating ability or efficiency is given. All photographs and measurements have been taken as a guide only and are not precise. Floor plans where included are not to scale and accuracy is not guaranteed. If you require clarification or further information on any points, please contact us, especially if you are travelling some distance to view. Fixtures and fittings other than those mentioned are to be agreed with the seller.
Agents are required by law to conduct Anti-Money Laundering checks on all buyers. Your Move Carlisle, Whitehaven and Wigton charge £30 including VAT per buyer. The charge covers the cost of obtaining and retaining relevant data from a third party. This fee is payable in advance prior to issuing a memorandum of sale and before the property can be sale agreed.
Dent View, Egremont, Cumbria, CA22
Additional Information
-
Property refWHV260013
-
EPCC
-
TenureLeasehold
-
Council TaxA
-
Local authorityCumberland Council
-
Ground RentContact the branch
-
Ground Rent ReviewContact the branch
-
Service ChargeContact the branch
Similar properties for sale by Your Move Whitehaven
With brick effect feature to chimney breast with wall mounted electric fire, three double glazed windows and two radiators.
Fitted with wall and base units incorporating sink unit, plumbing connection for automatic washing machine,, small breakfast bar, double glazed window, serving hatch to lounge/dining room and radiator.
With radiator and double glazed window.
With radiator and double glazed window. Please note space is restricted to this bedroom due to fitted wardrobes.
Fitted with shower enclosure , wash hand basin and w.c housed in vanity unit, ladder towel radiator and pvc panelling to walls and ceiling.
The pin shows the exact address of the property
Energy Efficiency Rating
Very energy efficient - lower running costs
Not energy efficient - higher running costs
Current
71Potential
75CO2 Rating
Very energy efficient - lower running costs
Not energy efficient - higher running costs
