This calculator provides a guide to the amount of residential stamp duty you may pay and does not guarantee this will be the actual cost. This calculation is based on the Stamp Duty Land Tax Rates for residential properties purchased from 23rd September 2022 and second homes from 31st October 2024. For more information on Stamp Duty Land Tax, click here.
2 bedroom Flat for sale, Durham Road, Houghton Le Spring, Tyne and Wear, DH4
Features and Description
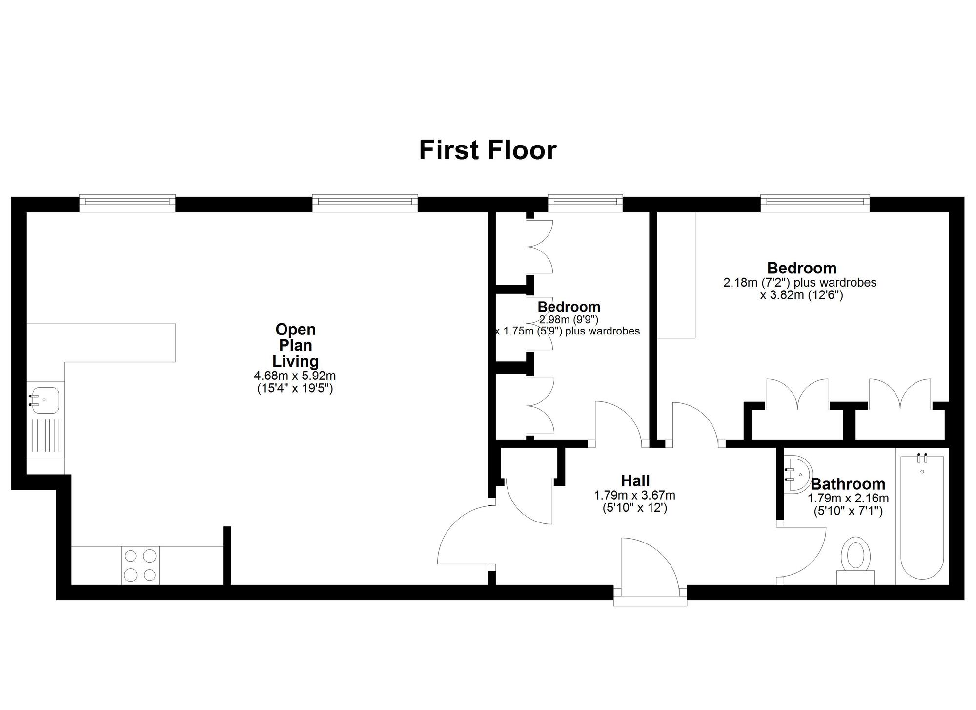
- 2 Bed First Floor Apartment
- No Upward Chain
- Approx. 58SqM- 624SqFt
- Council Tax Band B
- Leasehold- 99 years from 1-1-1998
- Ground Rent- TBC
- Service Charge TBC
- Awaiting EPC
This is a fine example of a modern first floor apartment that is ready to move into.
Security doors and a hallway with stairs or lift take you up to the first floor and a private Entrance Hall. This guides you into an open living space which includes the Kitchen Area with built in appliances.
Both bedrooms enjoy fitted wardrobes and both are served by a family bathroom
The gardens are communal with secure gates leading to an allocated parking space and there is an abundance of visitors spaces.
Set on the edge of the town centre with shopping, schooling of all grades., health and leisure facilities all being close at hand
IMPORTANT NOTE TO POTENTIAL PURCHASERS:
We endeavour to make our particulars accurate and reliable, however, they do not constitute or form part of an offer or any contract and none is to be relied upon as statements of representation or fact. The services, systems and appliances listed in this specification have not been tested by us and no guarantee as to their operating ability or efficiency is given. All photographs and measurements have been taken as a guide only and are not precise. Floor plans where included are not to scale and accuracy is not guaranteed. If you require clarification or further information on any points, please contact us, especially if you are travelling some distance to view. Fixtures and fittings other than those mentioned are to be agreed with the seller.
Durham Road, Houghton Le Spring, Tyne and Wear, DH4
Additional Information
-
Property refQHO260089
-
EPCC
-
TenureLeasehold
-
Council TaxB
-
Local authoritySunderland City Council
-
Ground RentContact the branch
-
Ground Rent ReviewContact the branch
-
Service ChargeContact the branch
Similar properties for sale by Your Move Houghton-le-Spring
The pin shows the exact address of the property
Energy Efficiency Rating
Very energy efficient - lower running costs
Not energy efficient - higher running costs
Current
75Potential
75CO2 Rating
Very energy efficient - lower running costs
Not energy efficient - higher running costs
