This calculator provides a guide to the amount of residential stamp duty you may pay and does not guarantee this will be the actual cost. This calculation is based on the Stamp Duty Land Tax Rates for residential properties purchased from 23rd September 2022 and second homes from 31st October 2024. For more information on Stamp Duty Land Tax, click here.
2 bedroom Flat for sale, Nelson Road, Whitton, Twickenham, TW2
Features and Description
- Ground Floor Purpose Built Flat
- 2 Bedrooms
- Share Of Freehold
- Allocated Parking Space
- Spacious Living/Dining Room
- Modern Kitchen
- Modern Bathroom W/C
- Central Whitton
- Store Shed
- Communal Gardens
Lovely ground floor purpose built apartment in the heart of Whitton with a long lease and share of freehold. In brief offers secure video entry phone system, spacious living/dining room with direct access to communal gardens, 2 bedrooms, modern fitted kitchen and bathroom w/c. Other benefits include an allocated parking space, store shed and communal gardens. Share of freehold with lease of 954 years expires 01/10/2980. Service charge £1920 per year £0 ground rent. Council Tax Band C. EPC Grade E.
Location
The property is situated in Whitton town centre and is close to a wide range of shops for your convenience and Whitton Mainline Station which serves London Waterloo on the fast services in less than 30 minutes. Other benefits are local bus routes including the H22, 281, 110 and 481. Whitton also benefits from several parks and open spaces including Crane Park, Murray Park and Powder Mill Lane recreation park.
Tenure / Charges
Share of freehold with lease of 954 years expires 01/10/2980. Service charge £1920 per year £0 ground rent.
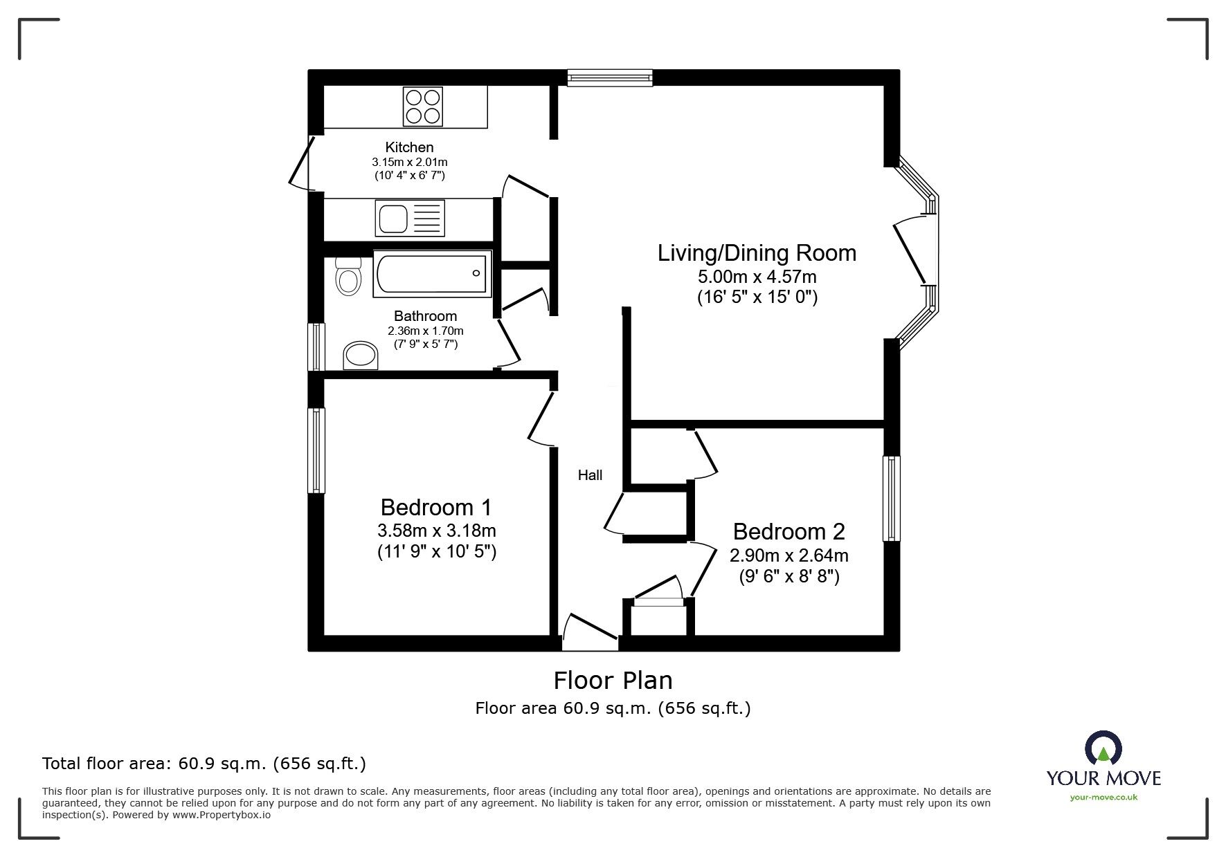
Living / Dining Room
16'5" x 14'12" (5.00m x 4.57m)
Measured Into Bay
Kitchen
10'4" x 6'7" (3.15m x 2.00m)
Bedroom 1
11'9" x 10'5" (3.58m x 3.18m)
Bedroom 2
9'6" x 8'8" (2.90m x 2.64m)
Bathroom WC
7'9" x 5'7" (2.36m x 1.70m)
IMPORTANT NOTE TO POTENTIAL PURCHASERS:
We endeavour to make our particulars accurate and reliable, however, they do not constitute or form part of an offer or any contract and none is to be relied upon as statements of representation or fact. The services, systems and appliances listed in this specification have not been tested by us and no guarantee as to their operating ability or efficiency is given. All photographs and measurements have been taken as a guide only and are not precise. Floor plans where included are not to scale and accuracy is not guaranteed. If you require clarification or further information on any points, please contact us, especially if you are travelling some distance to view. Fixtures and fittings other than those mentioned are to be agreed with the seller.
Nelson Road, Whitton, Twickenham, TW2
Additional Information
-
Property refWTT260031
-
EPCE
-
TenureShare of Freehold
-
Council TaxC
-
Local authorityRichmond Upon Thames
Measured Into Bay
The pin shows the exact address of the property
Energy Efficiency Rating
Very energy efficient - lower running costs
Not energy efficient - higher running costs
Current
42Potential
71CO2 Rating
Very energy efficient - lower running costs
Not energy efficient - higher running costs
