This calculator provides a guide to the amount of residential stamp duty you may pay and does not guarantee this will be the actual cost. This calculation is based on the Stamp Duty Land Tax Rates for residential properties purchased from 23rd September 2022 and second homes from 31st October 2024. For more information on Stamp Duty Land Tax, click here.
1 bedroom Flat for sale, North Street, Plymouth, Devon, PL4
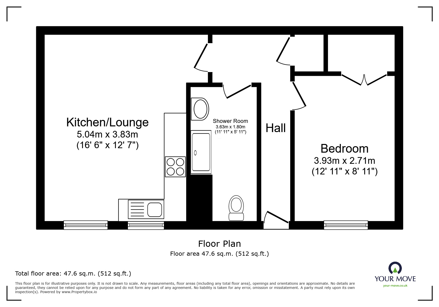
Features and Description
- Offered with no onward chain
- Maisonette with private entrance
- Newly carpeted and professionally decorated
- Large double bedroom with fitted wardrobe
- Modern fitted shower room
- Open plan living room kitchen/diner
- Short walk to Drake Circus & University
- Great first time buy or BTL investment
Tucked away just off Beaumont Road and moments from Drake Circus Shopping Centre, this superb purpose-built maisonette offers spacious, stylish city living with the rare benefit of its own private front door. Newly decorated and carpeted throughout, in addition benefiting from a recently fitted new boiler installation with 5-year warranty, the property is immaculately presented and offered with vacant possession, making it an ideal choice for first-time buyers, downsizers, or savvy investors alike.
Accessed from North Street, you step into an impressively spacious hallway that immediately sets the tone. To the right is a generous double bedroom, complete with built-in wardrobes with double doors, while a handy storage cupboard sits conveniently nearby. Turning the corner, you’ll find a modern, well-appointed bathroom, before reaching the heart of the home: a beautifully laid-out open-plan living room, kitchen and dining area. This inviting space strikes the perfect balance between cosy and spacious—ideal for relaxing or entertaining.
Residents also benefit from access to the main building and a communal roof terrace, adding a real lifestyle bonus to this central location. Stylish, practical, and superbly positioned, this is a property that truly needs to be seen to be appreciated—not one to be missed.
IMPORTANT NOTE TO POTENTIAL PURCHASERS:
We endeavour to make our particulars accurate and reliable, however, they do not constitute or form part of an offer or any contract and none is to be relied upon as statements of representation or fact. The services, systems and appliances listed in this specification have not been tested by us and no guarantee as to their operating ability or efficiency is given. All photographs and measurements have been taken as a guide only and are not precise. Floor plans where included are not to scale and accuracy is not guaranteed. If you require clarification or further information on any points, please contact us, especially if you are travelling some distance to view. Fixtures and fittings other than those mentioned are to be agreed with the seller.
North Street, Plymouth, Devon, PL4
Additional Information
-
Property refMUT250586
-
EPCC
-
TenureLeasehold
-
Lease length129 years
-
Council TaxA
-
Local authorityPlymouth City Council
-
Ground Rent£300
-
Ground Rent ReviewContact the branch
-
Service Charge£2,008
The pin shows the exact address of the property
Energy Efficiency Rating
Very energy efficient - lower running costs
Not energy efficient - higher running costs
Current
76Potential
76CO2 Rating
Very energy efficient - lower running costs
Not energy efficient - higher running costs
