This calculator provides a guide to the amount of residential stamp duty you may pay and does not guarantee this will be the actual cost. This calculation is based on the Stamp Duty Land Tax Rates for residential properties purchased from 23rd September 2022 and second homes from 31st October 2024. For more information on Stamp Duty Land Tax, click here.
1 bedroom Flat for sale, Reaston Street, London, SE14
Features and Description
- ONE BED APARTMENT WITH BALCONY & PARKING
- NEW CROSS
- EPC GRADE C
- 28' OPEN PLAN ONTO BALCONY
- 1st FLOOR
- LONG LEASE
- EXCELLENT LOCATION
- COMMUNAL GARDENS
Set on the cusp of Hatcham Park Conservation Area in New Cross, is the First Floor Apartment with Balcony and Parking.
Spacious accommodation is presented to a high order throughout and briefly comprises: Entrance Hallway with Storage, 28' Open Plan Living onto Balcony, Double Bedroom and Bathroom.
This property is further complimented by Allocated Parking, access to Communal Gardens and a 114-year Lease. There is also a valid EWS1 certificate.
With convenient access afforded to either Queens Road Peckham or New Cross Gate Rail and Overground Stations, this property is very well located.
Ideal for First Time Buyers, viewing is highly recommended.
EPC Grade C. London Borough of Lewisham Council Tax Band B. Service Charge £205.95 pcm.
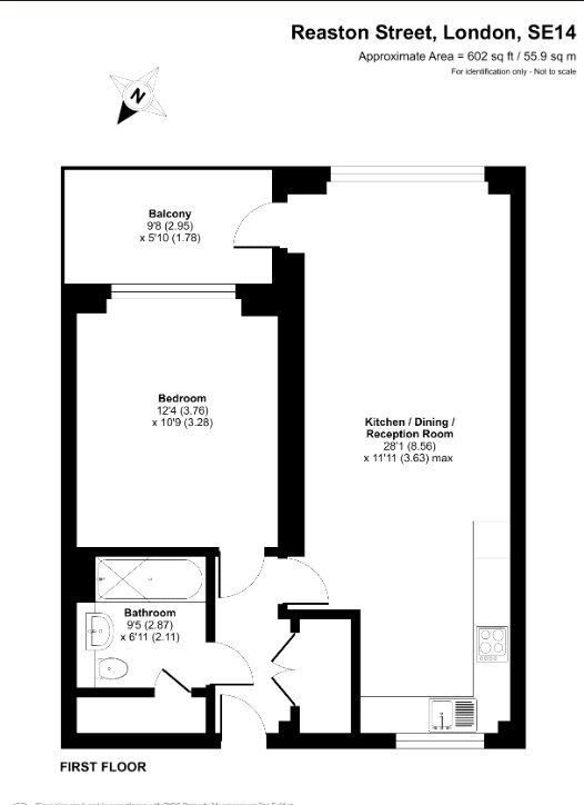
Open Plan Living
28'1" x 11'1" (8.56m x 3.38m)
Balcony
9'8" x 5'10" (2.95m x 1.78m)
Bedroom
12'4" x 10'9" (3.76m x 3.28m)
Bathroom
9'5" x 6'11" (2.87m x 2.10m)
IMPORTANT NOTE TO POTENTIAL PURCHASERS:
We endeavour to make our particulars accurate and reliable, however, they do not constitute or form part of an offer or any contract and none is to be relied upon as statements of representation or fact. The services, systems and appliances listed in this specification have not been tested by us and no guarantee as to their operating ability or efficiency is given. All photographs and measurements have been taken as a guide only and are not precise. Floor plans where included are not to scale and accuracy is not guaranteed. If you require clarification or further information on any points, please contact us, especially if you are travelling some distance to view. Fixtures and fittings other than those mentioned are to be agreed with the seller.
Reaston Street, London, SE14
Additional Information
-
Property refNEC260050
-
EPCC
-
TenureLeasehold
-
Lease length113 years
-
Council TaxB
-
Local authorityLewisham Council
-
Ground RentContact the branch
-
Ground Rent ReviewContact the branch
-
Service ChargeContact the branch
Similar properties for sale by Your Move New Cross
The pin shows the exact address of the property
Energy Efficiency Rating
Very energy efficient - lower running costs
Not energy efficient - higher running costs
Current
78Potential
78CO2 Rating
Very energy efficient - lower running costs
Not energy efficient - higher running costs
