This calculator provides a guide to the amount of residential stamp duty you may pay and does not guarantee this will be the actual cost. This calculation is based on the Stamp Duty Land Tax Rates for residential properties purchased from 23rd September 2022 and second homes from 31st October 2024. For more information on Stamp Duty Land Tax, click here.

















1 bedroom Flat for sale, Stirling Court, 36 Lovelace Gardens, Surrey, KT6
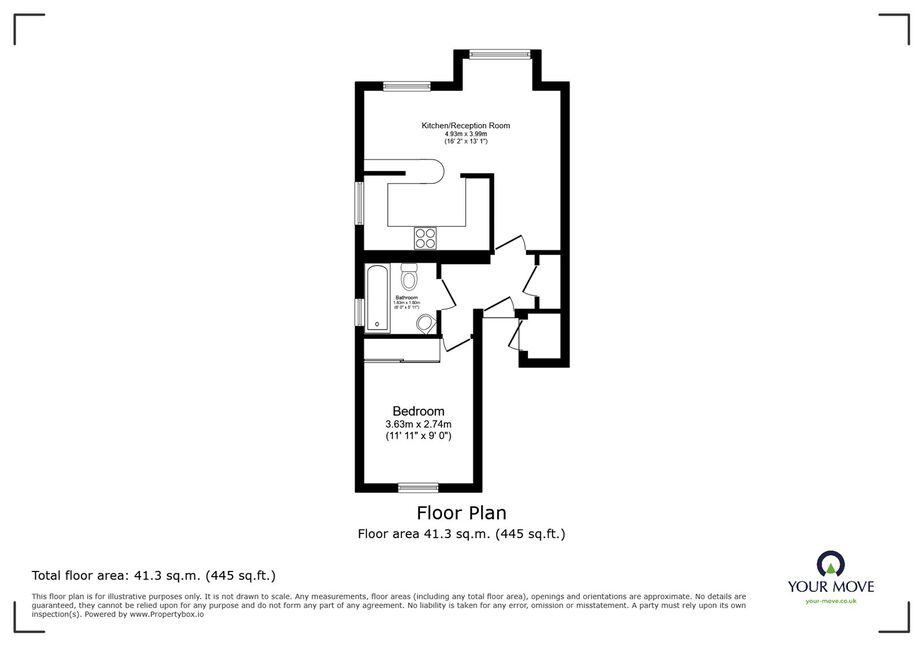
Features and Description
- Purpose Built First Floor Flat
- Sought after Location
- One Double Bedroom
- Open Plan Reception/Kitchen
- Garage In Block
- Attractive Communal Gardens
- No Forward Chain
- Ideal First Time Purchase
- EPC Grade D
Prime Investment Opportunity in the Sought-After ‘Lovelace’ Area
Located in a highly desirable development, this one-bedroom first-floor purpose-built flat presents an exceptional opportunity for investors, first-time buyers, or those looking to downsize. With no forward chain, securing this property is hassle-free, making it an ideal choice for immediate rental potential or a straightforward move-in.
The well-designed 16ft open-plan reception/kitchen offers a modern and practical living space, while the spacious double bedroom benefits from built-in wardrobes for added convenience. A well-maintained bathroom/WC completes the interior, ensuring a functional layout that appeals to a broad range of tenants or buyers.
Beyond the apartment, the development boasts attractive communal gardens and the added bonus of a garage in block, a valuable feature for both residents and potential renters. With a 999-year lease from 1992 and an EPC Grade D, this property ensures long-term value and stability.
Situated in the popular Lovelace area, close to key transport links, local amenities, and green spaces, this flat ticks all the boxes for a high-demand rental or a smart buy for the future.
Don’t miss out on this low-maintenance, high-potential investment—schedule a viewing today!
service charge 2247.38 p/a
ground rent tbc
Reception Room / Kitchen
16'2" x 13'1" (4.94m x 3.98m)
Bedroom
11'9" x 7'12" (3.58m x 2.43m)
Bathroom WC
6'2" x 5'7" (1.89m x 1.69m)
IMPORTANT NOTE TO POTENTIAL PURCHASERS:
We endeavour to make our particulars accurate and reliable, however, they do not constitute or form part of an offer or any contract and none is to be relied upon as statements of representation or fact. The services, systems and appliances listed in this specification have not been tested by us and no guarantee as to their operating ability or efficiency is given. All photographs and measurements have been taken as a guide only and are not precise. Floor plans where included are not to scale and accuracy is not guaranteed. If you require clarification or further information on any points, please contact us, especially if you are travelling some distance to view. Fixtures and fittings other than those mentioned are to be agreed with the seller.
Stirling Court, 36 Lovelace Gardens, Surrey, KT6

Additional Information
-
Property refSUR190177
-
EPCD
-
TenureLeasehold
-
Local authorityRoyal Borough Of Kingston Upon Thames
-
Ground RentContact the branch
-
Ground Rent ReviewContact the branch
-
Service ChargeContact the branch


















The pin shows the exact address of the property
Energy Efficiency Rating
Very energy efficient - lower running costs
Not energy efficient - higher running costs
Current
66Potential
73CO2 Rating
Very energy efficient - lower running costs
Not energy efficient - higher running costs