2 bedroom Flat to rent, Commercial Place, Gravesend, Kent, DA12
Available Unfurnished, from 20/12/2025
Features and Description
- " Zero Deposit Option Available at Your Move"
- Gas Central Heating
- Close to town centre
- River views
- Secure Parking
- Modern Kitchen
- Spacious Reception
- En-suite Shower Room
Stunning Apartment with Direct River Views
Your Move are delighted to present this fantastic apartment, located in an exclusive gated development with secure access and a peaceful riverside setting. This property offers a blend of modern style, comfort, and convenience, making it an ideal home for professionals, couples, or investors.
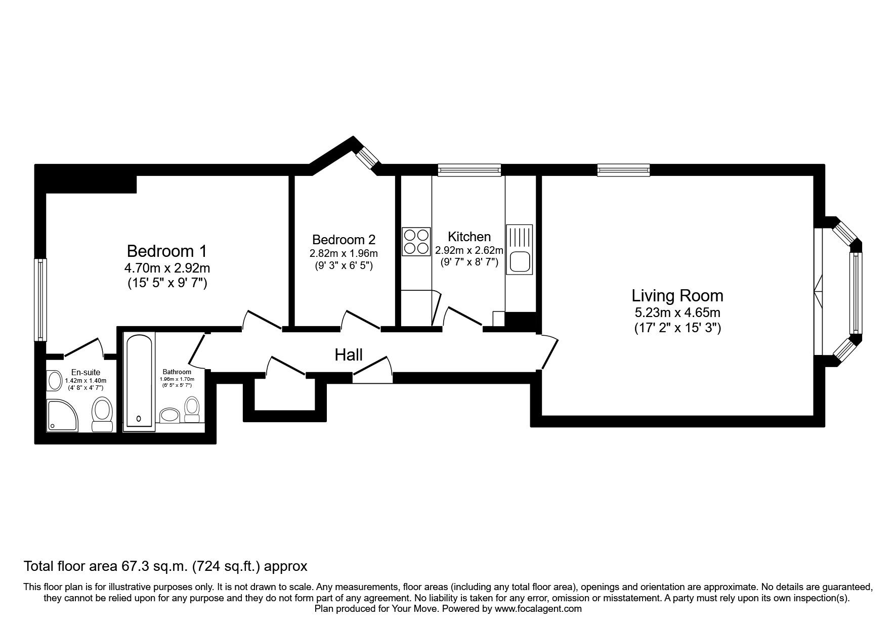
Upon entering, you are greeted by a bright and spacious lounge, which benefits from large windows framing direct river views, creating a relaxing and inviting space. The modern kitchen is well-equipped with contemporary appliances, ample storage.
The apartment comprises two well-proportioned bedrooms, with the master featuring a private en-suite shower room. The second bedroom is versatile and can function as a guest room, home office, or additional living space. A stylish family bathroom completes the internal accommodation.
Additional benefits include an allocated parking space for convenience and the peace of mind offered by the gated development.
The location is another standout feature. Residents enjoy easy access to local amenities, transport links, and scenic riverside walks. With the combination of riverside views, modern interiors, and secure gated access, this property offers a rare opportunity in the current market.
This property is not to be missed – early viewing is highly recommended.
IMPORTANT NOTE TO POTENTIAL RENTERS:
We endeavour to make our particulars accurate and reliable, however, they do not constitute or form part of an offer or any contract and none is to be relied upon as statements of representation or fact. The services, systems and appliances listed in this specification have not been tested by us and no guarantee as to their operating ability or efficiency is given. All photographs and measurements have been taken as a guide only and are not precise. Floor plans where included are not to scale and accuracy is not guaranteed. If you require clarification or further information on any points, please contact us, especially if you are travelling some distance to view.
All properties are available for a minimum length of time, with the exception of short term accommodation. Please contact the branch for details. A security deposit of at least one month’s rent is required. Rent is to be paid one month in advance. It is the tenant’s responsibility to insure any personal possessions. Payment of all utilities including water rates or metered supply and Council Tax is the responsibility of the tenant in every case.
Commercial Place, Gravesend, Kent, DA12
The pin shows the exact address of the property
Energy Efficiency Rating
Very energy efficient - lower running costs
Not energy efficient - higher running costs
Current
76Potential
80CO2 Rating
Very energy efficient - lower running costs
Not energy efficient - higher running costs
