2 bedroom Flat to rent, Netherwich Gardens, Droitwich, Worcestershire, WR9
Features and Description
- Two double bedrooms
- Master with en-suite
- Built-in wardrobes
- Spacious reception room
- Lovely balcony
- Ample natural light
- Two bathrooms
- Provision for parking
- Single garage
- Convenient location
I am pleased to present this neutrally decorated, two-bedroom flat available for let. This property offers comfortable living with its well-proportioned rooms and tasteful decor throughout. The property is set in a convenient location, with easy access to public transport links and local amenities, making it an ideal choice for those who value convenience and accessibility.
The property boasts a warm and welcoming reception room, adorned with a lovely balcony that allows for a relaxing outdoor space and an abundance of natural light. The kitchen, with its ample natural light, is a pleasant and functional space, perfect for those who enjoy cooking.
The two double bedrooms are spacious, with the master bedroom featuring an en-suite and built-in wardrobes, offering a generous amount of storage space. The second bedroom, also a double, continues the property's theme of spacious and comfortable living.
There are two bathrooms in the property, ensuring that there's enough facilities for everyone. The property also benefits from an EPC rating of D and falls under the council tax band C.
A standout feature of this property is its provision for parking. It also comes with a single garage, providing extra space for storage or for keeping a vehicle secure.
In conclusion, this two-bedroom flat presents a wonderful opportunity for anyone seeking a comfortable and convenient place to live. It combines a great location with a beautiful, neutrally decorated interior and unique features, ensuring a quality living experience.
Holding and security deposits required. Ask in branch for more details.
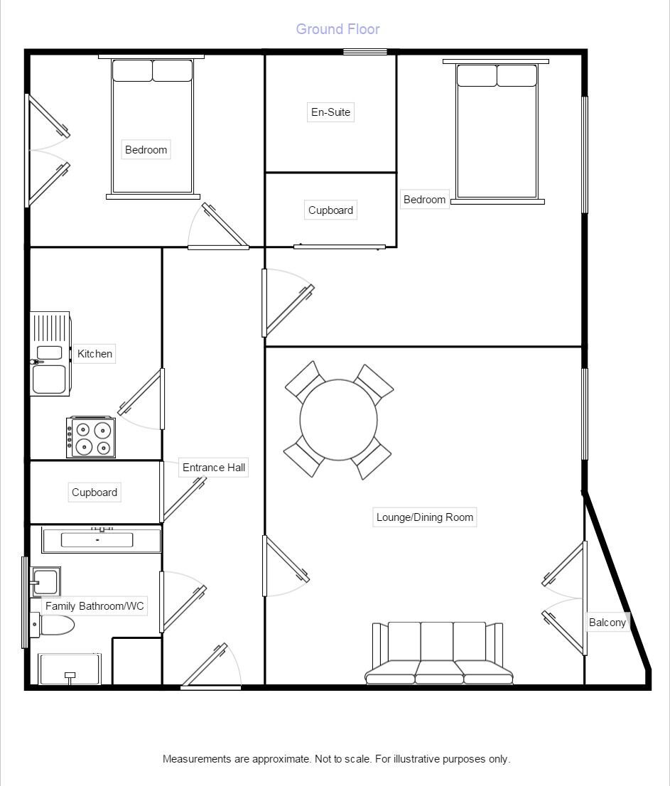
Communal Entrance
0 x 0
Entrance Hall
0 x 0
Lounge / Dining Room
4.72 x 4.47
Balcony
0 x 0
Kitchen
3.02 x 2.21
Family Bathroom / WC
2.34 x 1.88
Bedroom
3.94 x 4.47
En-Suite Shower Room
0 x 0
Bedroom
3.35 x 2.74
Tandem Garage
0 x 0
IMPORTANT NOTE TO POTENTIAL RENTERS:
We endeavour to make our particulars accurate and reliable, however, they do not constitute or form part of an offer or any contract and none is to be relied upon as statements of representation or fact. The services, systems and appliances listed in this specification have not been tested by us and no guarantee as to their operating ability or efficiency is given. All photographs and measurements have been taken as a guide only and are not precise. Floor plans where included are not to scale and accuracy is not guaranteed. If you require clarification or further information on any points, please contact us, especially if you are travelling some distance to view.
All properties are available for a minimum length of time, with the exception of short term accommodation. Please contact the branch for details. A security deposit of at least one month’s rent is required. Rent is to be paid one month in advance. It is the tenant’s responsibility to insure any personal possessions. Payment of all utilities including water rates or metered supply and Council Tax is the responsibility of the tenant in every case.
Additional Information
-
Property refBRR060002
-
Local authorityWychavon District Council
