2 bedroom Flat to rent, Richmond Avenue, Bognor Regis, West Sussex, PO21
Available Unfurnished, from 15/10/2025
Features and Description
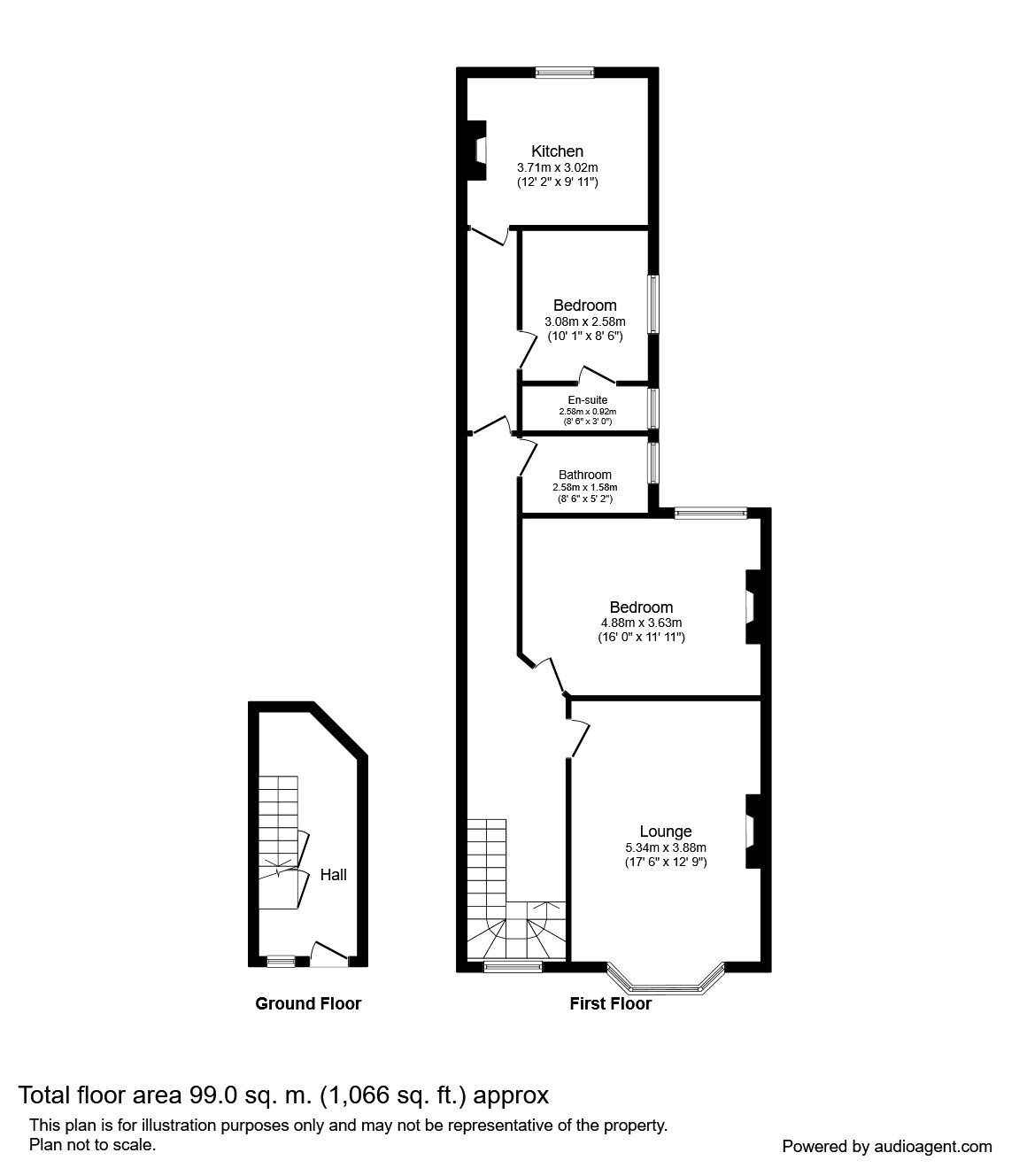
A VERY SPACIOUS RE-FURBISHED TWO BEDROOM FIRST FLOOR FLAT located close to main town centre and seafront. This property benefits from a spacious private entrance with stairs leading to the flat. Property comprises of a very large bay fronted south facing living room, brand new fitted kitchen, two double bedrooms one with a ensuite shower room and family bathroom. Property has been VIEWING ADVISED! AVAILABLE MID OCTOBER! EPC D
IMPORTANT NOTE TO POTENTIAL RENTERS:
We endeavour to make our particulars accurate and reliable, however, they do not constitute or form part of an offer or any contract and none is to be relied upon as statements of representation or fact. The services, systems and appliances listed in this specification have not been tested by us and no guarantee as to their operating ability or efficiency is given. All photographs and measurements have been taken as a guide only and are not precise. Floor plans where included are not to scale and accuracy is not guaranteed. If you require clarification or further information on any points, please contact us, especially if you are travelling some distance to view.
All properties are available for a minimum length of time, with the exception of short term accommodation. Please contact the branch for details. A security deposit of at least one month’s rent is required. Rent is to be paid one month in advance. It is the tenant’s responsibility to insure any personal possessions. Payment of all utilities including water rates or metered supply and Council Tax is the responsibility of the tenant in every case.
Richmond Avenue, Bognor Regis, West Sussex, PO21
Similar properties to rent by Your Move Bognor Regis
The pin shows the exact address of the property
Energy Efficiency Rating
Very energy efficient - lower running costs
Not energy efficient - higher running costs
Current
61Potential
73CO2 Rating
Very energy efficient - lower running costs
Not energy efficient - higher running costs
