2 bedroom Flat to rent, St. James Court St. Andrews Road, Bedford, MK40
Available Unfurnished, from 23/12/2025
Features and Description
- Holding and Security Deposits may apply, ask in branch for details
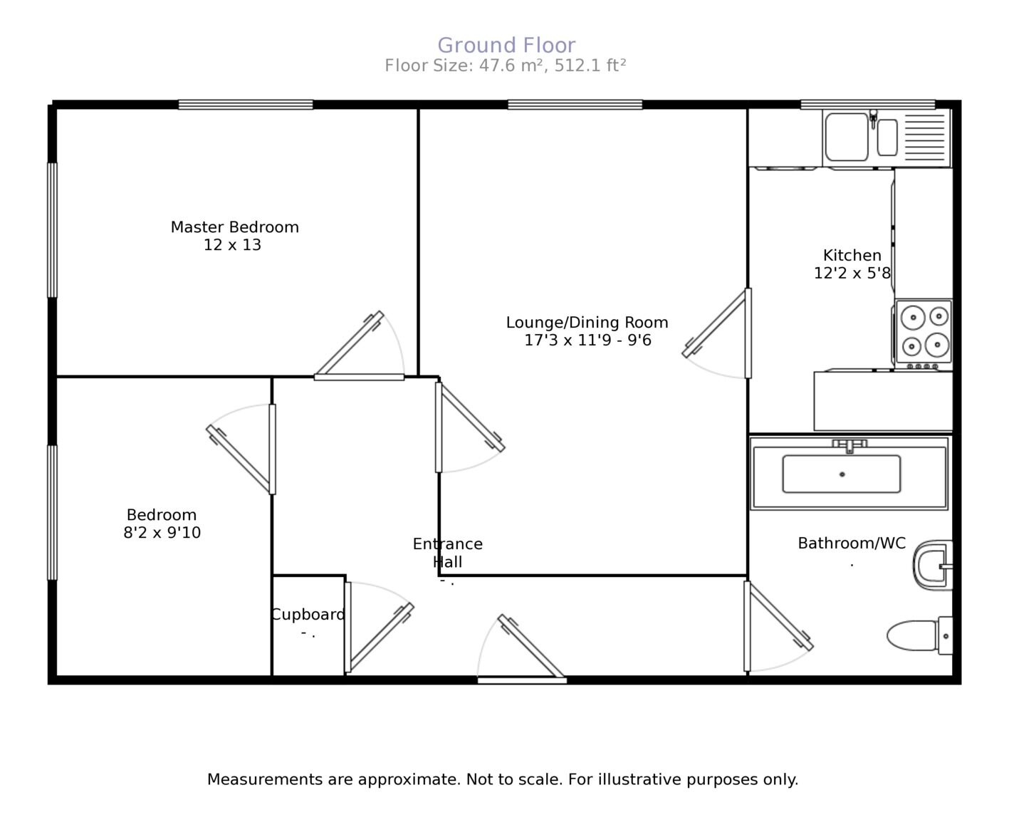
- Two Bedroom Ground Floor Apartment
- Well Presented
- Kitchen and Bathroom
- Garage
- Must be Viewed
- Available End Of December
- EPC Rating C and Council Tax B
This two bedroom ground floor flat is located in the popular Saints area in Bedford. The property is within walking distance into town and to Bedford Park. The property is well presented and comes with two good size bedrooms, lounge / dining room, kitchen and a three piece bathroom suite. The property has double glazed windows, gas central heating and has a garage. EPC Rating C. Call Your Move to arrange you viewing today!!
IMPORTANT NOTE TO POTENTIAL RENTERS:
We endeavour to make our particulars accurate and reliable, however, they do not constitute or form part of an offer or any contract and none is to be relied upon as statements of representation or fact. The services, systems and appliances listed in this specification have not been tested by us and no guarantee as to their operating ability or efficiency is given. All photographs and measurements have been taken as a guide only and are not precise. Floor plans where included are not to scale and accuracy is not guaranteed. If you require clarification or further information on any points, please contact us, especially if you are travelling some distance to view.
All properties are available for a minimum length of time, with the exception of short term accommodation. Please contact the branch for details. A security deposit of at least one month’s rent is required. Rent is to be paid one month in advance. It is the tenant’s responsibility to insure any personal possessions. Payment of all utilities including water rates or metered supply and Council Tax is the responsibility of the tenant in every case.
St. James Court St. Andrews Road, Bedford, MK40
The pin shows the exact address of the property
Energy Efficiency Rating
Very energy efficient - lower running costs
Not energy efficient - higher running costs
Current
74Potential
77CO2 Rating
Very energy efficient - lower running costs
Not energy efficient - higher running costs
