1 bedroom Flat to rent, Westerham Close, Gillingham, Kent, ME8
Available Unfurnished, from 10/03/2026
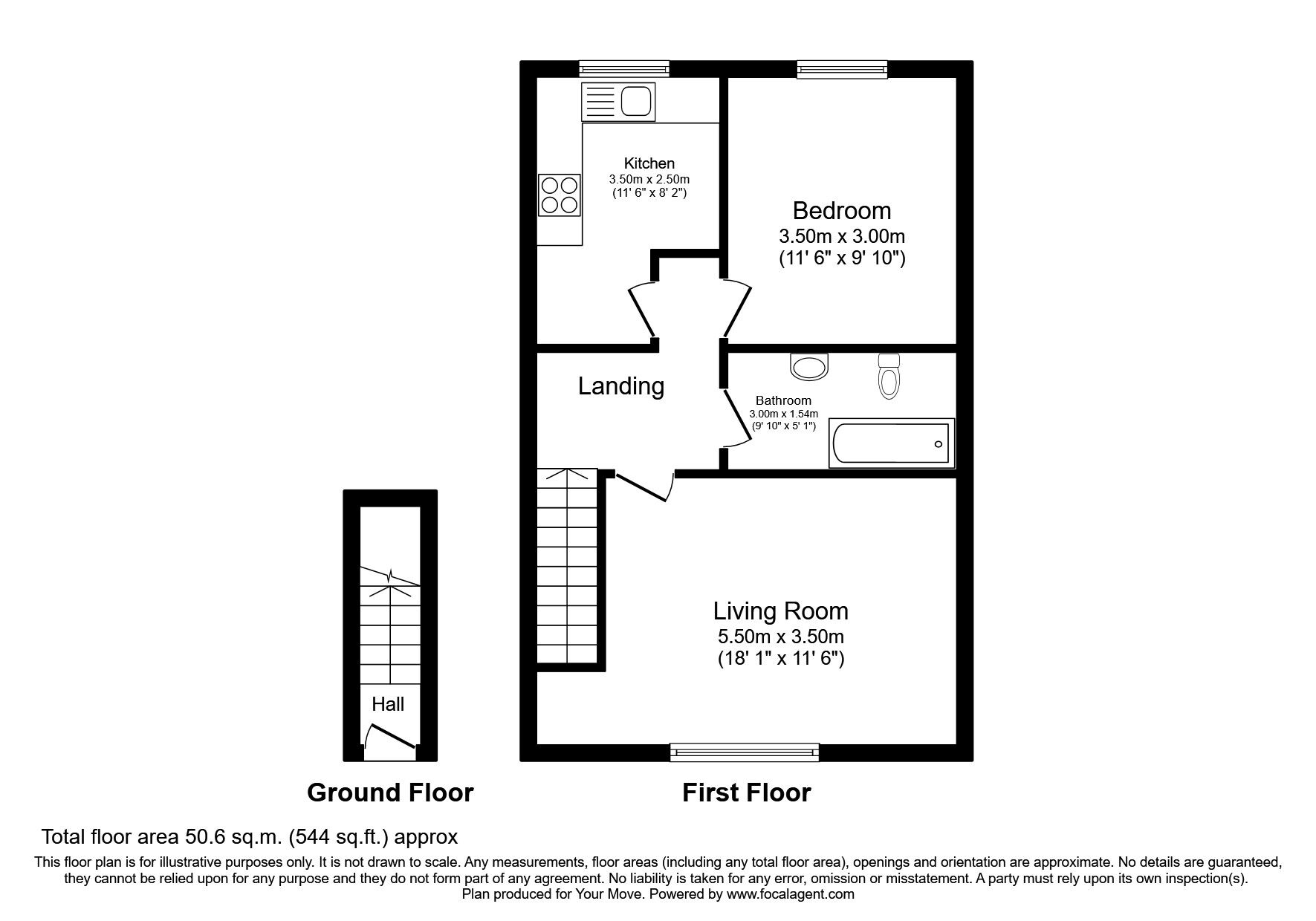
Features and Description
- One Bedroom Top Floor Maisonette
- EPC Grade B
- Council Tax Band B
- Allocated Parking
*Zero Deposit Guarantee available at Your Move*
This attractive one bedroom flat offers stylish and comfortable living within a modern, well-maintained development. Finished in a neutral colour palette throughout, the property provides a bright and welcoming atmosphere, ideal for professionals or couples seeking a low-maintenance home.
The accommodation comprises a spacious open-plan living and dining area, benefitting from ample natural light and offering plenty of space for both relaxation and entertaining. The contemporary fitted kitchen is seamlessly integrated into the living space and features modern units, quality work surfaces, and a range of integrated appliances, providing a practical yet sleek cooking environment.
The double bedroom is generously proportioned and tastefully decorated in neutral tones, offering a calm and comfortable retreat. The modern bathroom is finished to a high standard and includes a stylish suite with contemporary fittings.
Additional benefits include allocated parking, secure access, and well-kept communal areas, further enhancing the appeal of this property. Conveniently located close to local amenities and transport links, this flat combines modern living with everyday practicality and would make an excellent home for a single occupant or couple. EPC Grade B. Council Tax Band B.
Location
The historic town of Gillingham benefits from national railway links to London Bridge, Victoria, Waterloo and high-speed to St. Pancras International train station which is under 1 hour commute. You can also catch a train to many Kent coastal towns such as Margate. The High Street has a selection of convenience stores, restaurants as well as a Costa Coffee.
IMPORTANT NOTE TO POTENTIAL RENTERS:
We endeavour to make our particulars accurate and reliable, however, they do not constitute or form part of an offer or any contract and none is to be relied upon as statements of representation or fact. The services, systems and appliances listed in this specification have not been tested by us and no guarantee as to their operating ability or efficiency is given. All photographs and measurements have been taken as a guide only and are not precise. Floor plans where included are not to scale and accuracy is not guaranteed. If you require clarification or further information on any points, please contact us, especially if you are travelling some distance to view.
All properties are available for a minimum length of time, with the exception of short term accommodation. Please contact the branch for details. A security deposit of at least one month’s rent is required. Rent is to be paid one month in advance. It is the tenant’s responsibility to insure any personal possessions. Payment of all utilities including water rates or metered supply and Council Tax is the responsibility of the tenant in every case.
Westerham Close, Gillingham, Kent, ME8
The pin shows the exact address of the property
Energy Efficiency Rating
Very energy efficient - lower running costs
Not energy efficient - higher running costs
Current
82Potential
82CO2 Rating
Very energy efficient - lower running costs
Not energy efficient - higher running costs
