This calculator provides a guide to the amount of residential stamp duty you may pay and does not guarantee this will be the actual cost. This calculation is based on the Stamp Duty Land Tax Rates for residential properties purchased from 23rd September 2022 and second homes from 31st October 2024. For more information on Stamp Duty Land Tax, click here.
Land/Plot for sale, Bower Street, Maidstone, Kent, ME16
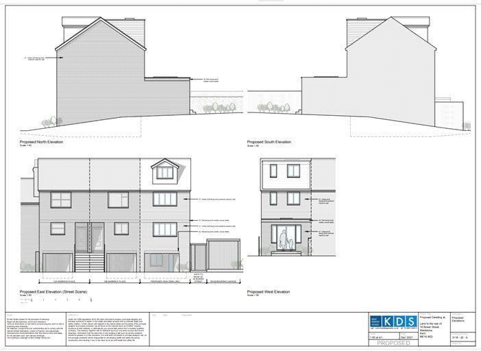
Features and Description
- Planning Approved For:
- 2-bedroom end-terrace house
- Private parking provision
- Associated landscaping
- Well-designed residential layout
- The proposed dwelling offers strong resale and rental appeal, with two-bedroom homes consistently in high demand.
Land with Full Planning Permission – 2 Bed End-Terrace Dwelling
An excellent opportunity to acquire a development plot with full planning permission granted for the construction of a 2-bedroom end-terrace dwelling, including associated parking and landscaping.
Ideal for small developers, investors or self-build buyers, this ready-to-go site removes the uncertainty and delay of the planning process.
Planning Approved For:
2-bedroom end-terrace house
Private parking provision
Associated landscaping
Well-designed residential layout
Further details, plans and supporting documentation available upon request - Early enquiry recommended.
This property is for sale by the Modern Method of Auction, meaning the buyer and seller are to Complete within 56 days (the "Reservation Period"). Interested parties personal data will be shared with the Auctioneer (iamsold).
If considering buying with a mortgage, inspect and consider the property carefully with your lender before bidding.
A Buyer Information Pack is provided. The winning bidder will pay £300.00 including VAT for this pack which you must view before bidding.
The buyer signs a Reservation Agreement and makes payment of a non-refundable Reservation Fee of 4.50% of the purchase price including VAT, subject to a minimum of £6,600.00 including VAT. This is paid to reserve the property to the buyer during the Reservation Period and is paid in addition to the purchase price. This is considered within calculations for Stamp Duty Land Tax.
Services may be recommended by the Agent or Auctioneer in which they will receive payment from the service provider if the service is taken. Payment varies but will be no more than £450.00. These services are optional.
Location
The site is prominently positioned on Bower Street at its junction with Warwick Place in Maidstone, offering a convenient and well-connected residential setting.
Located within easy reach of Maidstone town centre, the plot benefits from access to a wide range of shopping, leisure and everyday amenities. Excellent transport links are nearby, including Maidstone East and Maidstone West railway stations, providing regular services to London and surrounding areas, as well as good road connections via the M20.
The surrounding area is predominantly residential, making it an attractive and sustainable location for a 2-bedroom end-terrace dwelling with strong resale or rental appeal.
Auction Note
This property is for sale by the Modern Method of Auction, meaning the buyer and seller are to Complete within 56 days (the "Reservation Period"). Interested parties personal data will be shared with the Auctioneer (iamsold).If considering buying with a mortgage, inspect and consider the property carefully with your lender before bidding.A Buyer Information Pack is provided. The winning bidder will pay £300.00 including VAT for this pack which you must view before bidding.The buyer signs a Reservation Agreement and makes payment of a non-refundable Reservation Fee of 4.50% of the purchase price including VAT, subject to a minimum of £6,600.00 including VAT. This is paid to reserve the property to the buyer during the Reservation Period and is paid in addition to the purchase price. This is considered within calculations for Stamp Duty Land Tax.Services may be recommended by the Agent or Auctioneer in which they will receive payment from the service provider if the service is taken. Payment varies but will be no more than £450.00. These services are optional.
IMPORTANT NOTE TO POTENTIAL PURCHASERS:
We endeavour to make our particulars accurate and reliable, however, they do not constitute or form part of an offer or any contract and none is to be relied upon as statements of representation or fact. The services, systems and appliances listed in this specification have not been tested by us and no guarantee as to their operating ability or efficiency is given. All photographs and measurements have been taken as a guide only and are not precise. Floor plans where included are not to scale and accuracy is not guaranteed. If you require clarification or further information on any points, please contact us, especially if you are travelling some distance to view. Fixtures and fittings other than those mentioned are to be agreed with the seller.
Bower Street, Maidstone, Kent, ME16
Additional Information
-
Property refMAI260132
-
TenureFreehold
-
Local authorityMaidstone Borough Council
Similar properties for sale by Your Move Maidstone
The pin shows the exact address of the property
Energy Efficiency Rating
Very energy efficient - lower running costs
Not energy efficient - higher running costs
Current
N/APotential
N/ACO2 Rating
Very energy efficient - lower running costs
Not energy efficient - higher running costs
