2 bedroom Mid Terrace Flat to rent, Whitley Road, Whitley Bay, Tyne and Wear, NE26
Available Unfurnished, from 23/08/2025
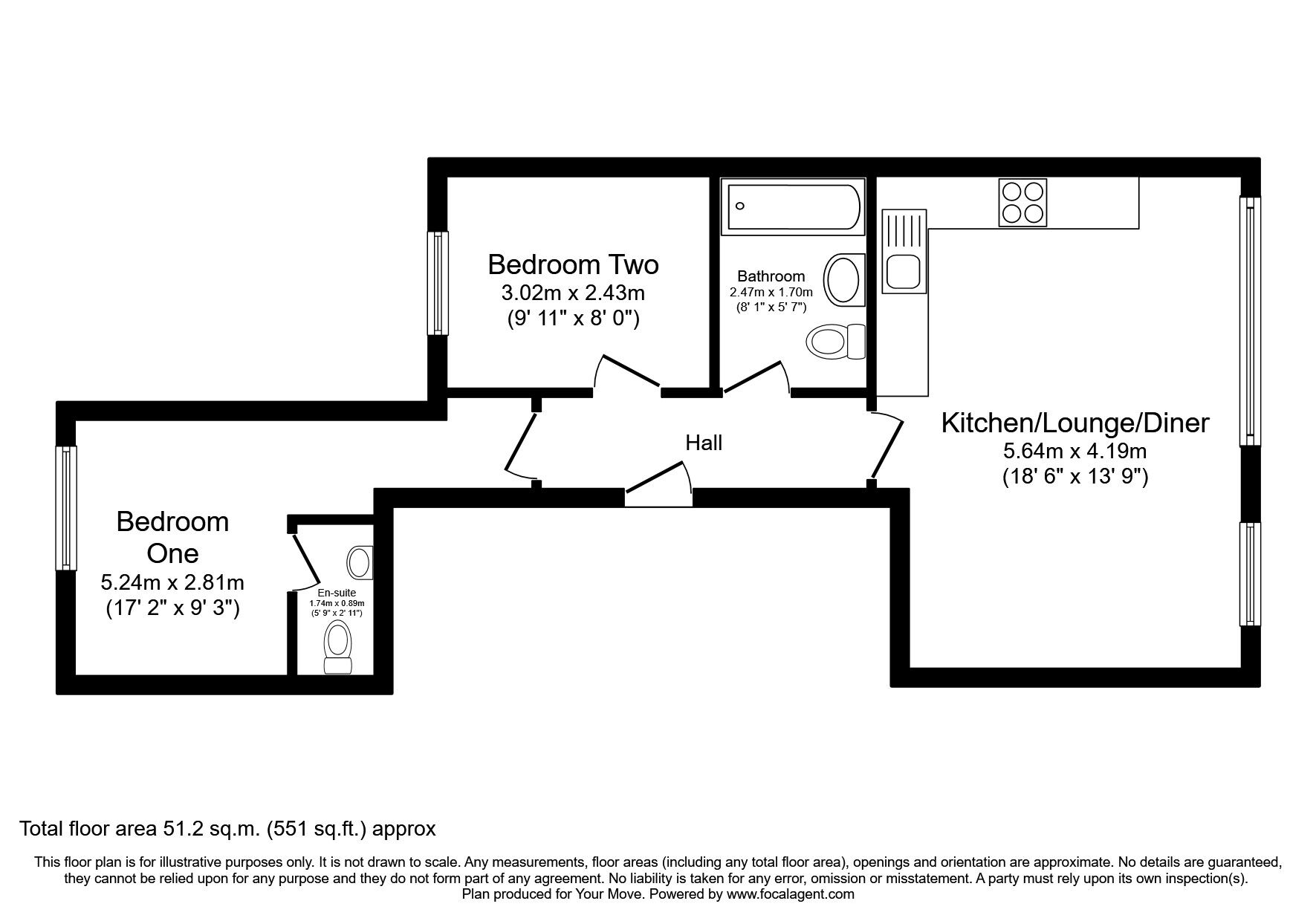
Features and Description
- 2 Bedrooms
- Kitchen/Lounge
- En Suite
- Bathroom
- EPC rating D
- Council tax band A
- Available immediately
We are pleased to market this fabulous two bedroom apartment . Finished to a high standard throughout . This must be viewed!! Property briefly comprises Kitchen/Lounge with integrated appliances , a modern bathroom , Bedroom one with an ensuite shower room and also a second bedroom. This property is immaculate and is situated in the town centre and close to metro. EPC rating Council Tax Band . Do not miss out!! Call 0191 2534117 to book a viewing .
Location
This apartment is situated in the heart of Whitley Bay . Immediate vicinity to shops, restaurants, coffee shops.. The metro is a short walk away and several bus stops providing great transport links .
IMPORTANT NOTE TO POTENTIAL RENTERS:
We endeavour to make our particulars accurate and reliable, however, they do not constitute or form part of an offer or any contract and none is to be relied upon as statements of representation or fact. The services, systems and appliances listed in this specification have not been tested by us and no guarantee as to their operating ability or efficiency is given. All photographs and measurements have been taken as a guide only and are not precise. Floor plans where included are not to scale and accuracy is not guaranteed. If you require clarification or further information on any points, please contact us, especially if you are travelling some distance to view.
All properties are available for a minimum length of time, with the exception of short term accommodation. Please contact the branch for details. A security deposit of at least one month’s rent is required. Rent is to be paid one month in advance. It is the tenant’s responsibility to insure any personal possessions. Payment of all utilities including water rates or metered supply and Council Tax is the responsibility of the tenant in every case.
Whitley Road, Whitley Bay, Tyne and Wear, NE26
The pin shows the exact address of the property
Energy Efficiency Rating
Very energy efficient - lower running costs
Not energy efficient - higher running costs
Current
59Potential
73CO2 Rating
Very energy efficient - lower running costs
Not energy efficient - higher running costs
