This calculator provides a guide to the amount of residential stamp duty you may pay and does not guarantee this will be the actual cost. This calculation is based on the Stamp Duty Land Tax Rates for residential properties purchased from 23rd September 2022 and second homes from 31st October 2024. For more information on Stamp Duty Land Tax, click here.
3 bedroom Mid Terrace House for sale, Ash Grove, Worsley, Greater Manchester, M28
Features and Description
- No Onward Chain
- Three double bedrooms
- Generous size rear garden with paved patio, lawn and mature borders
- Direct access on to the Worsley Loopline, perfect for walks
- Off street parking and garden area to the front
- Excellent family home with loads of potential
- Four piece family bathroom
- Added sun room overlooking the garden
- Popular location close to amenities and transport links
- Perfect Buy To Let investment and once modernised would let in the region of £1000 pcm with a yield of 5.4%
***No Chain*** This spacious, three double bedroom mid terraced property is centrally located. Within easy walking distance of schools and Walkden Train Station. Properties in this location are rarely available for long!
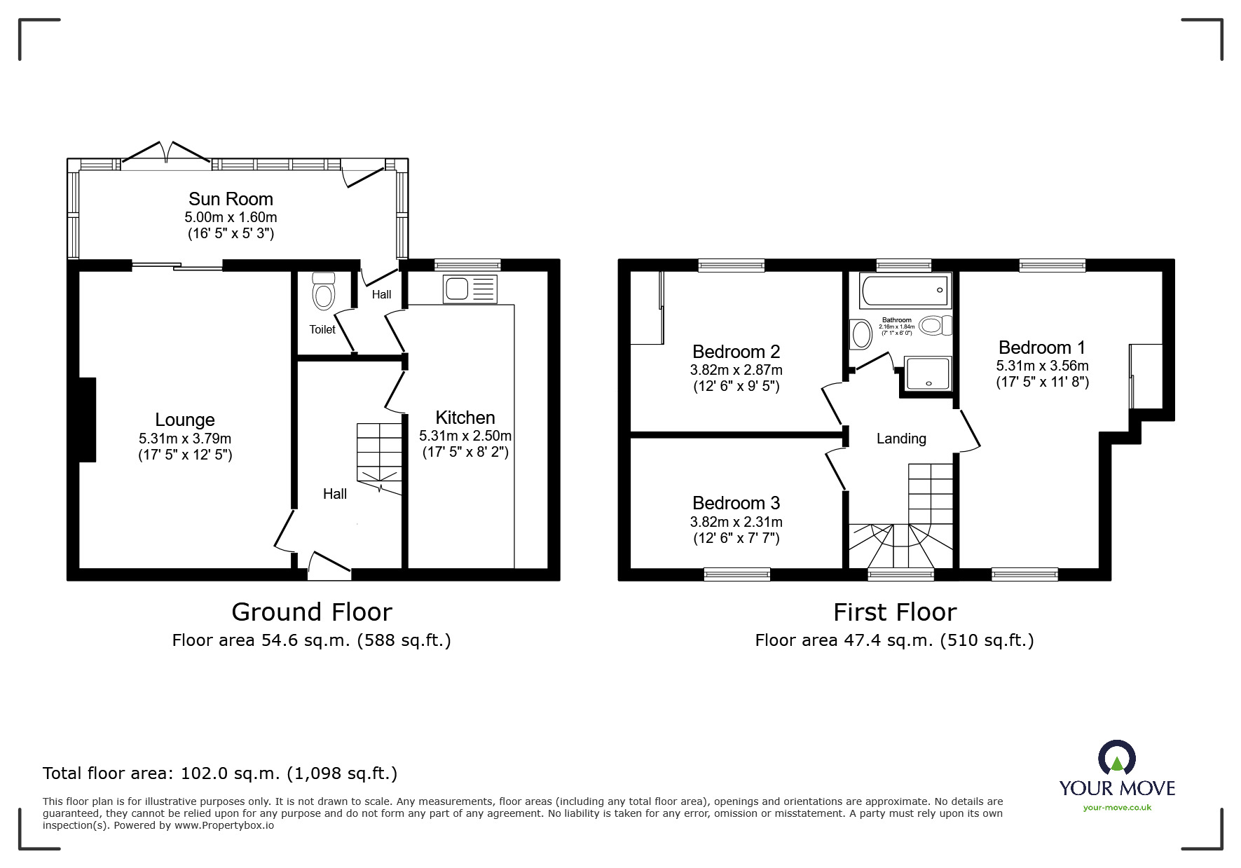
On the ground floor, the lounge features a fireplace that forms a natural focal point for the space, and leads into an added sun room over looking the fabulous rear garden. There is a separate kitchen with dining space and a cloakroom WC. Upstairs, you’ll find three double bedrooms, providing generous sleeping accommodation, plus a four piece family bathroom.
Externally there is off street parking and garden area to the front. The rear garden is a great size and features a paved patio, lawned area and mature planted borders and direct access to the Worsley loopline, perfect for woodland walks!
Local shops, cafés and everyday services are available in Worsley and nearby Walkden, including supermarkets and a high street with a range of independent and national retailers. A choice of nearby schools adds to the practicality of the location for those seeking a home in an established residential area.
This terraced house represents an opportunity to update and personalise a well-positioned three-bedroom home in a sought-after part of Worsley.
Attention Landlords:
This is a perfect Buy To Let investment and once modernised would let in the region of £1000 pcm with a yield of 5.4%
Contact our lettings team for any further information.
Lounge
17'5" x 12'5" (5.31m x 3.79m)
Kitchen Diner
17'5" x 8'2" (5.30m x 2.50m)
Sun Room
16'5" x 5'3" (5.00m x 1.60m)
Cloakroom WC
2'9" x 5'6" (0.85m x 1.68m)
Bedroom
17'5" x 11'8" (5.31m x 3.56m)
Bedroom
12'6" x 9'5" (3.82m x 2.87m)
Bedroom
12'6" x 7'7" (3.82m x 2.31m)
Bathroom
6'0" x 7'1" (1.84m x 2.16m)
Tenure
Freehold
EPC
D
IMPORTANT NOTE TO POTENTIAL PURCHASERS:
We endeavour to make our particulars accurate and reliable, however, they do not constitute or form part of an offer or any contract and none is to be relied upon as statements of representation or fact. The services, systems and appliances listed in this specification have not been tested by us and no guarantee as to their operating ability or efficiency is given. All photographs and measurements have been taken as a guide only and are not precise. Floor plans where included are not to scale and accuracy is not guaranteed. If you require clarification or further information on any points, please contact us, especially if you are travelling some distance to view. Fixtures and fittings other than those mentioned are to be agreed with the seller.
Ash Grove, Worsley, Greater Manchester, M28
Additional Information
-
Property refWAK250365
-
EPCD
-
TenureFreehold
-
Council TaxA
-
Local authoritySalford Council
The pin shows the exact address of the property
Energy Efficiency Rating
Very energy efficient - lower running costs
Not energy efficient - higher running costs
Current
64Potential
83CO2 Rating
Very energy efficient - lower running costs
Not energy efficient - higher running costs
