This calculator provides a guide to the amount of residential stamp duty you may pay and does not guarantee this will be the actual cost. This calculation is based on the Stamp Duty Land Tax Rates for residential properties purchased from 23rd September 2022 and second homes from 31st October 2024. For more information on Land and Buildings Transaction Tax, click here.




















4 bedroom Mid Terrace House for sale, Main Street, Carnwath, South Lanarkshire, ML11
Features and Description
- EPC Rating - F
- Terraced Townhouse
- Four Bedrooms
- Two Reception Rooms
- Village Location
- Local Primary School
- Excellent Golf Club & Bowling Club
- Good Commuter Area for Edinburgh
Spacious, traditional townhouse, in the rural village of Carnwath. ,Your Move First, Lanark, is delighted to bring this lovely period property to the open market, one that will suit a whole range of buyer, in particular families, but also those with an eye for a good opportunity. Was formerly used as the village shop and previous to that was part of a larger B&B. A very flexible property full of character, with high ceilings and many traditional features, with three double bedrooms all with en suite shower rooms, lounge, sitting room (bedrooms four), kitchen, dining room and wc. On street parking available to both the front and rear of the property, also a small courtyard garden area access via patio doors from the kitchen.
The property is located in the village of Carnwath, South Lanarkshire. Here you'll find all the amenities and recreational facilities you'd expect to find in a lovely village like Carnwath. With a good range of local shops, cafes, bakery, the village also benefits from having a local primary school and also a doctors surgery. There is popular18 hole golf course and bowling club for those with a sporting outlook to life. The property also lies in close proximity to the popular towns of Biggar and Lanark, where a wide range of schools, shops, amenities, entertainment and recreational facilities can be found, good access to the Scottish Borders and the Clyde valley, providing excellent walks for the outdoor enthusiast including Tinto Hill and the Falls of Clyde. Edinburgh City Bypass is only a twenty-five minute drive away, providing access to East Central Scotland. The M74 is also only a twenty-five minute journey offering access to Glasgow and the West of Scotland. In all, this property is ideally situated for the commuter to either Edinburgh, Glasgow or Livingston.
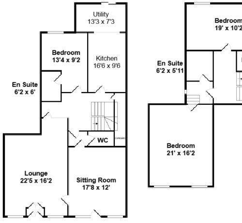
Lounge
22'5" x 16'2" (6.83m x 4.93m)
Sitting Room
17'8" x 12'0" (5.38m x 3.66m)
Kitchen
13'3" x 7'3" (4.04m x 2.20m)
Dining Room
16'6" x 9'8" (5.03m x 2.95m)
Bedroom
13'4" x 9'2" (4.06m x 2.80m)
En-Suite
6'2" x 6'0" (1.88m x 1.83m)
WC
7'3" x 3'11" (2.20m x 1.20m)
Bedroom
20'12" x 16'2" (6.40m x 4.93m)
En-Suite
6'2" x 5'11" (1.88m x 1.80m)
Bedroom
19'0" x 10'2" (5.80m x 3.10m)
En-Suite
8'9" x 6'1" (2.67m x 1.85m)
IMPORTANT NOTE TO POTENTIAL PURCHASERS:
We endeavour to make our particulars accurate and reliable, however, they do not constitute or form part of an offer or any contract and none is to be relied upon as statements of representation or fact. The services, systems and appliances listed in this specification have not been tested by us and no guarantee as to their operating ability or efficiency is given. All photographs and measurements have been taken as a guide only and are not precise. Floor plans where included are not to scale and accuracy is not guaranteed. If you require clarification or further information on any points, please contact us, especially if you are travelling some distance to view. Fixtures and fittings other than those mentioned are to be agreed with the seller.
Main Street, Carnwath, South Lanarkshire, ML11

Additional Information
-
Property refLAN230019
-
EPCF
-
TenureFreehold
-
Council TaxD
-
Local authoritySouth Lanarkshire Council





















The pin shows the exact address of the property
Energy Efficiency Rating
Very energy efficient - lower running costs
Not energy efficient - higher running costs
Current
34Potential
71CO2 Rating
Very energy efficient - lower running costs
Not energy efficient - higher running costs