This calculator provides a guide to the amount of residential stamp duty you may pay and does not guarantee this will be the actual cost. This calculation is based on the Stamp Duty Land Tax Rates for residential properties purchased from 23rd September 2022 and second homes from 31st October 2024. For more information on Stamp Duty Land Tax, click here.
3 bedroom Mid Terrace House for sale, Norman Terrace, Wallsend, Tyne and Wear, NE28
Features and Description
- Three Bedroom Mid Terrace House
- Modernisation Required
- Fantastic Potential
- Approx. SQ M
- North Tyneside Council Tax Band
- EPC Awaited.
Auction Commencing on Monday 16th February at 1pm and ending 24 hours later on Tuesday 17th February from 1pm with Auction House North East
Please register to bid via our website - auctionhouse.co.uk/northeast
Spacious three bed terraced house, located in Willington Quay in Wallsend.
Please contact Your Move Wallsend on to arrange a viewing!
This well-proportioned property offers generous living accommodation arranged over two floors and provides excellent potential for owner-occupiers and investors alike. Situated on a popular residential road, the property benefits from a private rear yard and is conveniently located close to local amenities, schools, and transport links.
This property presents an ideal opportunity for those seeking a spacious family home or a renovation project with good resale or rental potential.
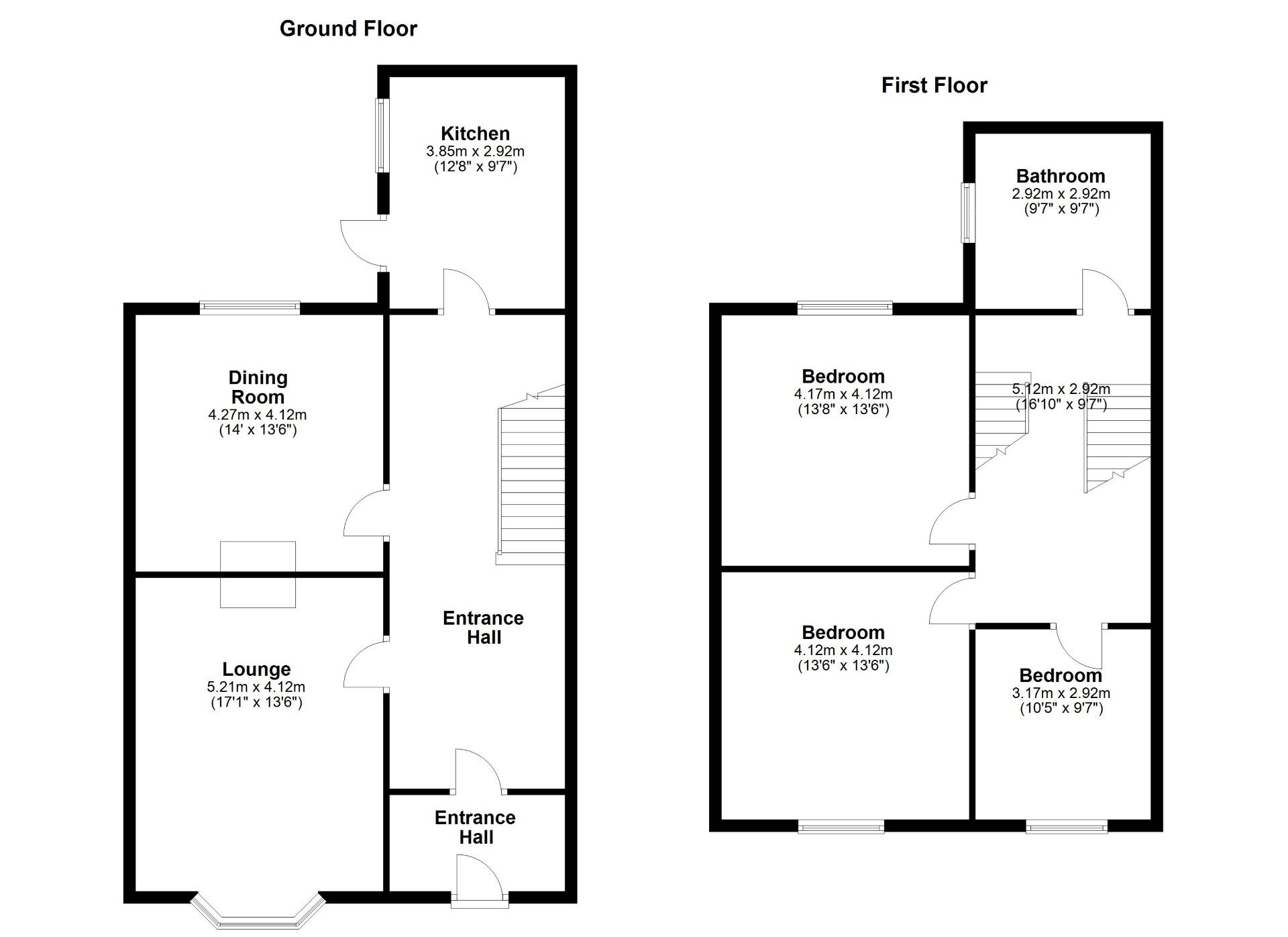
To the ground floor, the accommodation comprises an entrance hallway with staircase to the first floor, a spacious lounge to the front, a separate dining room, and a fitted kitchen to the rear with access to the rear yard.
The first floor offers three well-sized bedrooms and a family bathroom.
Externally, the property benefits from a private rear yard, offering outdoor space with low maintenance requirements.
Tenure: Freehold
Administration Fee: £3600 inc VAT payable on exchange of contracts.
Disbursements: Please see the legal pack for any disbursements listed that may become payable by the purchaser on completion.
Lounge
17'1" x 13'7" (5.21m x 4.13m)
Dining Room
13'12" x 13'6" (4.26m x 4.12m)
Kitchen
12'8" x 9'7" (3.85m x 2.92m)
Bathroom
9'7" x 9'7" (2.92m x 2.91m)
Master Bedroom
13'6" x 13'9" (4.11m x 4.18m)
Bedroom 2
13'7" x 12'2" (4.15m x 3.72m)
Bedroom 3
10'4" x 8'12" (3.16m x 2.74m)
IMPORTANT NOTE TO POTENTIAL PURCHASERS:
We endeavour to make our particulars accurate and reliable, however, they do not constitute or form part of an offer or any contract and none is to be relied upon as statements of representation or fact. The services, systems and appliances listed in this specification have not been tested by us and no guarantee as to their operating ability or efficiency is given. All photographs and measurements have been taken as a guide only and are not precise. Floor plans where included are not to scale and accuracy is not guaranteed. If you require clarification or further information on any points, please contact us, especially if you are travelling some distance to view. Fixtures and fittings other than those mentioned are to be agreed with the seller.
Norman Terrace, Wallsend, Tyne and Wear, NE28
Additional Information
-
Property refWSD260049
-
TenureFreehold
-
Local authorityNorth Tyneside Council
The pin shows the exact address of the property
Energy Efficiency Rating
Very energy efficient - lower running costs
Not energy efficient - higher running costs
Current
N/APotential
N/ACO2 Rating
Very energy efficient - lower running costs
Not energy efficient - higher running costs
