3 bedroom Mid Terrace House to rent, Greenmoor Road, Nuneaton, Warwickshire, CV10
Features and Description
- Unfurnished
- Mid town house
- Three Good Size Bedrooms
- Refitted Kitchen
- Good Size Lounge / diner
- Refitted ground floor bathroom
- Driveway Providing Off Road Parking
- Garden
- EPC D AND COUNCIL TAX BAND A
Description
Immaculate presented and unfurnished mid town house located in Nuneaton, lounge/dining room, refitted kitchen, ground floor bathroom with shower over the bath, three bedrooms to the first floor, driveway to the front of the property providing off road parking and an enclosed garden to the rear, viewing essential. Landlord prefers long term. NUNEATON AND BEDWORTH BOROUGH COUNCIL AND COUNCIL TAX BAND A AND EPC D
Location
Greenmoor Road is located within walking distance to George Eliot Hospital and in a popular area of Nuneaton
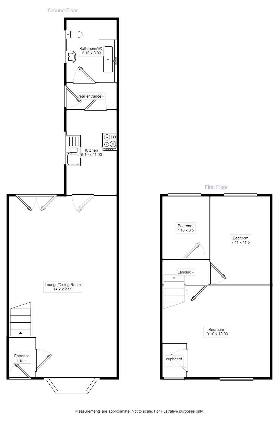
Entrance Hall
Lounge/dining room 23.5 x 14.2
Kitchen 11,00 x 6.10
Bathroom 8,3 x 6,10
First floor landing
Bedroom 10,00 x 10,03
Bedroom 11,5 x 7,11
Bedroom 8,5 x 7,10
Outside
Driveway to the front and garden to the rear
Lounge / dining room
23.5 x 14.2
Kitchen
11,00 x 6.10
Bathroom
8,3 x 6,10
Bedroom
10,00 x 10,03
Bedroom
11,5 x 7,11
Bedroom
8,5 x 7,10
Outside
Driveway to the front and garden to the rear
IMPORTANT NOTE TO POTENTIAL RENTERS:
We endeavour to make our particulars accurate and reliable, however, they do not constitute or form part of an offer or any contract and none is to be relied upon as statements of representation or fact. The services, systems and appliances listed in this specification have not been tested by us and no guarantee as to their operating ability or efficiency is given. All photographs and measurements have been taken as a guide only and are not precise. Floor plans where included are not to scale and accuracy is not guaranteed. If you require clarification or further information on any points, please contact us, especially if you are travelling some distance to view.
All properties are available for a minimum length of time, with the exception of short term accommodation. Please contact the branch for details. A security deposit of at least one month’s rent is required. Rent is to be paid one month in advance. It is the tenant’s responsibility to insure any personal possessions. Payment of all utilities including water rates or metered supply and Council Tax is the responsibility of the tenant in every case.
Greenmoor Road, Nuneaton, Warwickshire, CV10
Additional Information
-
Property refNUN190491
-
EPCD
-
Council TaxA
-
Local authorityNuneaton & Bedworth Borough Council
Your Move Letting Agents Nuneaton
Rental Tools
The pin shows the exact address of the property
Energy Efficiency Rating
Very energy efficient - lower running costs
Not energy efficient - higher running costs
Current
65Potential
86CO2 Rating
Very energy efficient - lower running costs
Not energy efficient - higher running costs
