3 bedroom Mid Terrace House to rent, Snaefell Terrace, Whitehaven, CA28
Available Unfurnished, from 22/01/2026
Features and Description
- EPC Rating D
- Council Tax Band A
- Security Deposit £770
- Three Bedrooms
- Available Now
- Unfurnished
- Popular Location
We are pleased to present this terraced property, located in a desirable area close to nearby schools and local amenities. This neutrally decorated home offers a comfortable and inviting living space, perfect for families.
Upon entering the property, you will find a spacious reception room, providing ample space for relaxation and entertainment. The property also features a well-appointed kitchen, which is perfect for those who love to cook and entertain.
The property boasts three bedrooms, offering plenty of space for a growing family. Each bedroom provides a blank canvas for you to make it your own, with neutral decor throughout.
Completing the accommodation is a modern family bathroom, allowing you to unwind and relax after a long day.
One of the standout features of this property is the garden, providing an outdoor space for you to enjoy. Whether it's dining al fresco or simply basking in the sunshine, this garden is sure to be a hit with all members of the family.
Additional benefits of this property include its unfurnished condition, allowing you to add your personal touch. EPC Rating D and Council Tax Band A.
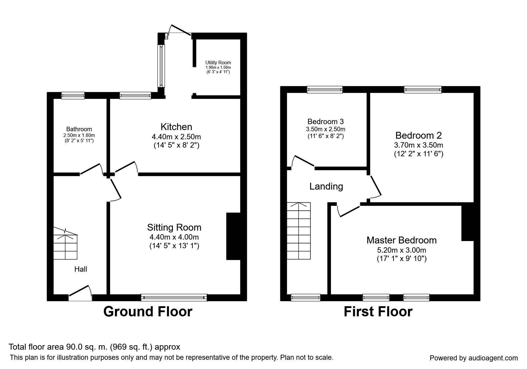
Entrance Hall
With grey wood effect flooring, radiator and stairs to the first floor.
Sitting Room
14'5" x 13'1" (4.40m x 4.00m)
With new grey carpet, gas fire, radiator and double glazed window.
Kitchen
14'5" x 8'2" (4.40m x 2.50m)
Fitted with modern white wall and base units with black worksurfaces, incorporating a sink unit, built in oven and hob, integral fridge/freezer and integral dishwasher.
Rear Hall
With tile effect flooring and rear access door.
Utility Area
With plumbing for a washing machine.
Bathroom
8'2" x 5'11" (2.50m x 1.80m)
Fitted with a new white suite comprising wc, wash basin and bath with shower over.
Bedroom
11'6" x 8'2" (3.50m x 2.50m)
With radiator and double glazed window.
Bedroom
12'2" x 11'6" (3.70m x 3.50m)
With radiator and double glazed window.
Bedroom
17'1" x 9'10" (5.20m x 3.00m)
With radiator and double glazed window.
Outside
To the rear of the property is a large lawned garden with raised decked area.
IMPORTANT NOTE TO POTENTIAL RENTERS:
We endeavour to make our particulars accurate and reliable, however, they do not constitute or form part of an offer or any contract and none is to be relied upon as statements of representation or fact. The services, systems and appliances listed in this specification have not been tested by us and no guarantee as to their operating ability or efficiency is given. All photographs and measurements have been taken as a guide only and are not precise. Floor plans where included are not to scale and accuracy is not guaranteed. If you require clarification or further information on any points, please contact us, especially if you are travelling some distance to view.
All properties are available for a minimum length of time, with the exception of short term accommodation. Please contact the branch for details. A security deposit of at least one month’s rent is required. Rent is to be paid one month in advance. It is the tenant’s responsibility to insure any personal possessions. Payment of all utilities including water rates or metered supply and Council Tax is the responsibility of the tenant in every case.
Snaefell Terrace, Whitehaven, CA28
Additional Information
-
Property refWHV240006
-
EPCD
-
Council TaxA
-
Local authorityCumberland Council
Your Move Letting Agents Whitehaven
Rental Tools
Fitted with modern white wall and base units with black worksurfaces, incorporating a sink unit, built in oven and hob, integral fridge/freezer and integral dishwasher.
Fitted with a new white suite comprising wc, wash basin and bath with shower over.
With radiator and double glazed window.
The pin shows the exact address of the property
Energy Efficiency Rating
Very energy efficient - lower running costs
Not energy efficient - higher running costs
Current
68Potential
86CO2 Rating
Very energy efficient - lower running costs
Not energy efficient - higher running costs
