This calculator provides a guide to the amount of residential stamp duty you may pay and does not guarantee this will be the actual cost. This calculation is based on the Stamp Duty Land Tax Rates for residential properties purchased from 23rd September 2022 and second homes from 31st October 2024. For more information on Stamp Duty Land Tax, click here.
3 bedroom Semi Detached House for sale, Haugh Lane, Newhey, Greater Manchester, OL16
Features and Description
- New roof installed approximately 4 months ago, providing added peace of mind and long term durability
- Windows and external doors replaced around 1 year ago, improving energy efficiency and modernising the exterior finish
- Stunning newly fitted kitchen diner installed in the summer of last year, creating a contemporary and sociable heart of the home
- Cosy log burner added approximately 18 months ago to the lounge, enhancing warmth and character during the colder months
- Spacious south facing rear garden, enjoying sunlight throughout the day with a combination of paved patio and lawn
- Children’s park and playground located very nearby, making the area particularly attractive for young families
- Newhey Metrolink tram stop within walking distance, providing direct and convenient access into Manchester and surrounding areas
- Close proximity to local reservoir and surrounding countryside walks, offering scenic outdoor leisure opportunities
- Ground floor office space providing an ideal home working setup or additional flexible living area
- Newhey Community Primary School nearby, with Moorhouse Primary and Hollingworth Academy all within a short drive, providing strong local primary and secondary education options for families.
Stylish three bedroom home with stunning kitchen/diner and sun filled south facing garden
A beautifully presented three-bedroom semi-detached home, offering spacious and well-balanced accommodation ideally suited to modern family living. With generous room sizes throughout, a recently refurbished kitchen/diner and a large south facing rear garden, this property effortlessly combines comfort, practicality and versatility in a highly desirable residential setting.
The property is entered via a welcoming entrance hallway, creating an immediate sense of space and providing access to the principal ground floor rooms. The lounge is positioned at the front of the home, forming a bright and inviting living space with ample room for furnishings and a pleasant outlook, making it ideal for both relaxing and entertaining.
To the rear, the kitchen/diner serves as the heart of the home and has been recently refurbished to a modern standard. Offering a generous and versatile layout, there is ample worktop and storage space alongside room for a family dining table, making it perfectly suited to both everyday living and social occasions. Direct access to the rear garden further enhances the space, allowing for easy indoor outdoor living during the warmer months.
The ground floor also benefits from a useful office area, ideal for home working, study or flexible use depending on individual needs. A family bathroom is conveniently located on this level, completing the ground floor accommodation.
To the first floor, there are three well proportioned bedrooms, all of which are comfortable doubles, a rare and highly desirable feature. Each room offers ample space for furnishings and enjoys good natural light, making them ideal for family living or guest accommodation. A separate family toilet is also located on this floor, adding further practicality for busy households.
Externally, the property continues to impress with a large south facing rear garden, thoughtfully arranged to include both a paved patio area and a lawn, allowing for sunlight throughout the day and offering an excellent space for outdoor dining, entertaining or relaxation. To the front, there is a neatly presented garden along with a driveway providing off road parking for one vehicle.
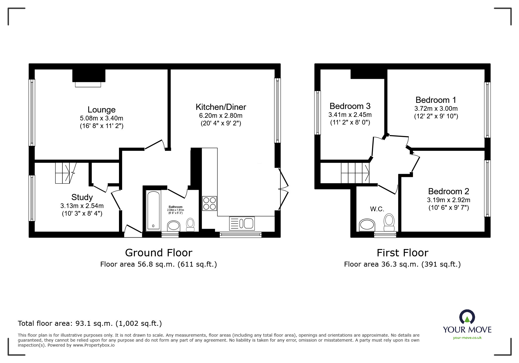
Entrance Hallway
A welcoming entrance hallway that provides a practical and inviting introduction to the home. Offering access to the main ground floor rooms, it also creates a useful space for coats and shoes while setting the tone for the spacious accommodation throughout.
Living Room
16'8" x 11'2" (5.08m x 3.40m)
Positioned at the front of the property, the lounge is a bright and comfortable living space, enhanced by a large front aspect window allowing plenty of natural light. There is ample room for a range of seating and furnishings, making it an ideal space for relaxing with family or entertaining guests.
Kitchen / Diner
20'4" x 9'2" (6.20m x 2.80m)
Recently refurbished to a modern standard, the kitchen diner forms the true heart of the home. It offers a stylish range of fitted units, generous worktop space and excellent storage. There is ample room for a family dining table, creating a sociable space for both everyday meals and entertaining. Double doors provide direct access to the rear garden, seamlessly connecting indoor and outdoor living.
Office / study
10'3" x 8'4" (3.12m x 2.54m)
A highly useful and versatile additional space located on the ground floor. Ideal for those working from home, it can also serve as a study area, playroom or hobby space, offering flexibility to suit a range of lifestyle needs.
Ground floor family bathroom
5'8" x 6'3" (1.73m x 1.90m)
A well presented family bathroom located on the ground floor for added convenience. Designed to serve the household effectively, it is ideally positioned for both residents and visiting guests.
Bedroom 1
12'2" x 9'10" (3.70m x 3.00m)
A spacious and well proportioned double bedroom, offering a calm and comfortable retreat. The room benefits from excellent natural light and provides ample space for wardrobes, drawers and additional furnishings.
Bedroom 2
10'6" x 9'7" (3.20m x 2.92m)
Another generously sized double bedroom, well suited for family members or guests. It offers flexibility for a variety of uses while maintaining a bright and comfortable feel.
Bedroom 3
11'2" x 8'0" (3.40m x 2.44m)
A third well sized double bedroom, making this property particularly appealing for families. It could also be used as a home office, dressing room or guest space depending on requirements.
Upstairs WC
A convenient additional WC located on the first floor, enhancing practicality for busy family living and reducing pressure on the ground floor bathroom.
Rear garden
A standout feature of the property, the large south facing rear garden enjoys sunlight throughout the day. It is thoughtfully arranged with a paved patio area ideal for outdoor dining and entertaining, along with a well maintained lawn offering plenty of space for relaxation or children’s play.
Front exterior
To the front, the property benefits from a neatly presented garden area alongside a driveway providing off road parking for one vehicle. This adds both convenience and curb appeal, completing this attractive family home.
Area and local amenities
The property is located in the popular residential area of Newhey, Rochdale, a well regarded village setting that offers a strong sense of community while still being highly convenient for commuters. The area provides easy access to Rochdale town centre, which is around a 10 minute drive away, offering a wide range of shops, supermarkets, restaurants and everyday amenities. Newhey also benefits from excellent transport links, with Newhey Metrolink Station approximately 4 minutes away by car, providing direct tram services into Manchester city centre.Families are well served by a selection of well regarded local schools within close proximity. Newhey Community Primary School is located approximately 3 minutes away by car, making it highly convenient for young families. Moorhouse Primary School is around 6 minutes away, while Hollingworth Academy, a popular secondary school, is reachable in approximately 8 minutes. These schooling options make the area particularly attractive for families looking to settle in a well connected yet peaceful residential setting.For leisure and outdoor enjoyment, the area is ideally positioned close to some of the region’s most scenic green spaces. Ogden Reservoir and surrounding countryside walks are around 10 minutes away by car, offering beautiful walking routes and open landscapes. Healey Dell Nature Reserve is also approximately 12 minutes away, providing waterfalls, woodland trails and a popular café. In addition, the nearby village centre of Newhey offers local pubs, takeaways and convenience stores, ensuring everyday needs are well catered for within easy reach.
IMPORTANT NOTE TO POTENTIAL PURCHASERS:
We endeavour to make our particulars accurate and reliable, however, they do not constitute or form part of an offer or any contract and none is to be relied upon as statements of representation or fact. The services, systems and appliances listed in this specification have not been tested by us and no guarantee as to their operating ability or efficiency is given. All photographs and measurements have been taken as a guide only and are not precise. Floor plans where included are not to scale and accuracy is not guaranteed. If you require clarification or further information on any points, please contact us, especially if you are travelling some distance to view. Fixtures and fittings other than those mentioned are to be agreed with the seller.
Haugh Lane, Newhey, Greater Manchester, OL16
Additional Information
-
Property refSHA260479
-
EPCD
-
TenureLeasehold
-
Council TaxC
-
Local authorityRochdale Borough Council
-
Ground RentContact the branch
-
Ground Rent ReviewContact the branch
-
Service ChargeContact the branch
The pin shows the exact address of the property
Energy Efficiency Rating
Very energy efficient - lower running costs
Not energy efficient - higher running costs
Current
60Potential
83CO2 Rating
Very energy efficient - lower running costs
Not energy efficient - higher running costs
