This calculator provides a guide to the amount of residential stamp duty you may pay and does not guarantee this will be the actual cost. This calculation is based on the Stamp Duty Land Tax Rates for residential properties purchased from 23rd September 2022 and second homes from 31st October 2024. For more information on Stamp Duty Land Tax, click here.
3 bedroom Semi Detached House for sale, Goudhurst Road, Lamberhurst, Kent, TN3
Features and Description
- Beautiful semi detached period property
- Countryside views
- Planning permission for a two storey extension
- 3 Bedrooms
- Off road parking for 2 cars
- Accommodation over 3 floors
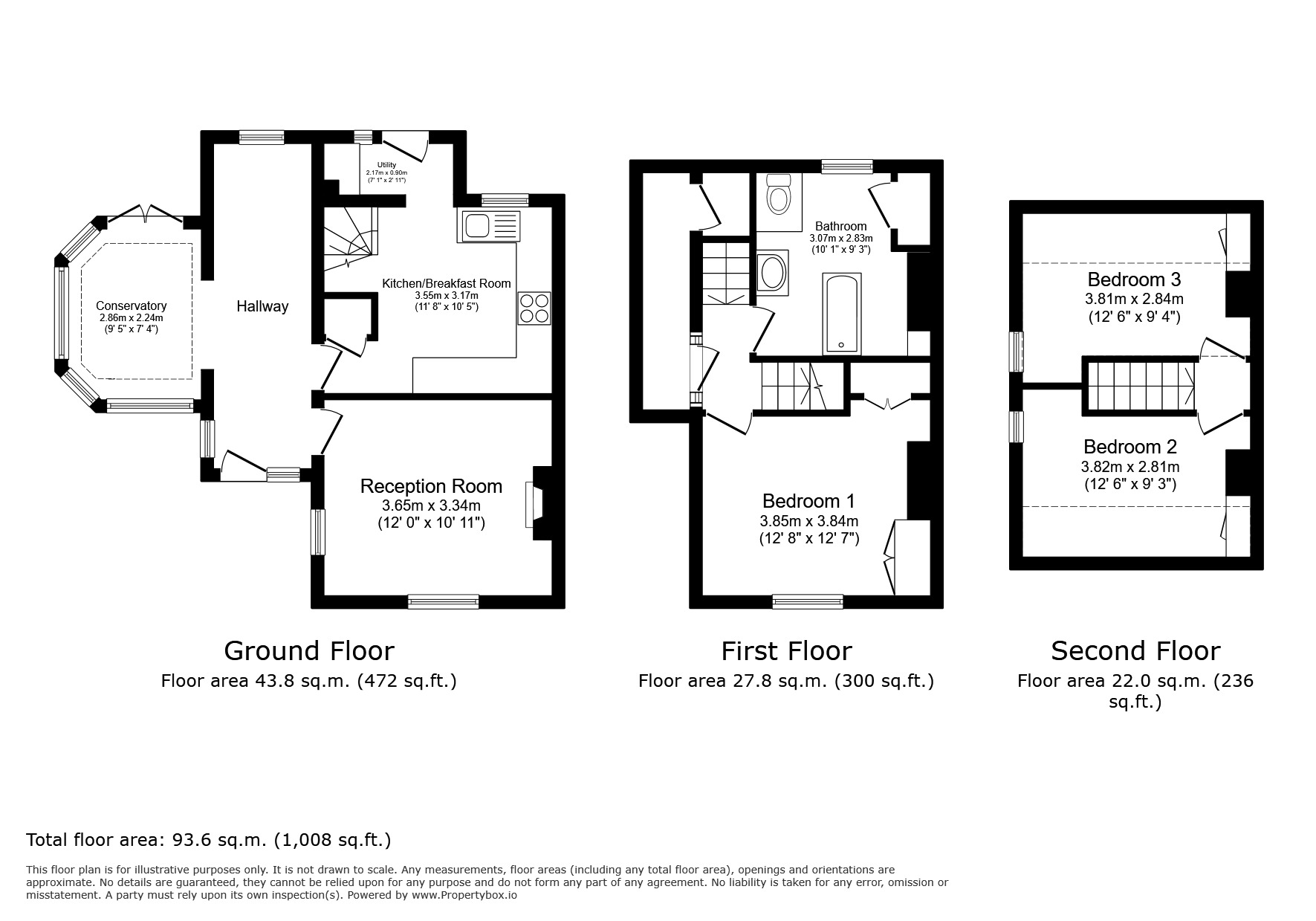
Located in the sought-after village of Lamberhurst, this charming three-bedroom semi-detached home was formerly a farm worker’s cottage and beautifully retains its character and warmth, while offering practical living space arranged over three floors.
Upon entering the property, you are welcomed into a hallway to the right, the cosy living room is secluded from the rest of the house, creating a peaceful retreat complete with a log burner — perfect for relaxing evenings. To the left of the hallway, a bright conservatory overlooks the garden, providing an additional reception space ideal for dining or enjoying the surrounding greenery.
The kitchen offers ample storage and worktop space, along with a useful area that lends itself well to a small utility space.
On the first floor, the spacious family bathroom enjoys delightful views across open fields. The principal bedroom is also located on this floor and benefits from built-in wardrobes and beautiful countryside views.
The second floor provides two further bedrooms, both versatile in use — ideal as children’s rooms, guest accommodation, or a home office.
Externally, the property boasts a generous wrap-around garden to the side, offering plenty of outdoor space to enjoy. There is also a greenhouse and garden shed, perfect for keen gardeners. Two parking spaces are conveniently located in close proximity to the property.
Planning permission has been granted for a two-storey extension (Ref: 25/01232/FULL)
Location
The property is situated on Goudhurst Road on the rural edge of the sought-after village of Lamberhurst, a picturesque Kentish village set within the High Weald countryside. Surrounded by rolling farmland and scenic landscapes, the area offers an idyllic rural lifestyle with numerous public footpaths, bridleways and country walks available directly from the village.
Lamberhurst provides a charming village centre with a range of everyday amenities including a village shop and post office, traditional pubs, cafés, a primary school, medical facilities and community spaces, creating a strong village atmosphere.
For a wider selection of shopping, dining and leisure facilities, the historic spa town of Royal Tunbridge Wells is a short drive away. The town offers extensive retail opportunities, restaurants, cafés and mainline rail connections to London.
The surrounding area is particularly popular with outdoor enthusiasts. Nearby attractions include Bewl Water, one of the largest reservoirs in the South East, offering sailing, cycling, fishing and lakeside walks, and Bedgebury National Pinetum and Forest, which provides extensive woodland trails and mountain-biking routes.
For commuters, mainline rail services can be accessed from nearby stations including Wadhurst, Frant and Royal Tunbridge Wells, while the nearby A21 offers convenient road links towards the M25, London and the South Coast.
Overall, the location combines peaceful countryside living with convenient access to nearby towns, making it ideal for those seeking a village setting within reach of excellent amenities and transport links.
Living Room
3.66mx3.33m
Kitchen
3.56mx3.18m
Utility
2.16mx0.9m
Conservatory
2.87mx2.24m
Family Bathroom
3.07mx2.82m
Bedroom 1
3.86mx3.84m
Bedroom 2
3.8mx2.82m
Bedroom 3
3.8mx2.84m
IMPORTANT NOTE TO POTENTIAL PURCHASERS:
We endeavour to make our particulars accurate and reliable, however, they do not constitute or form part of an offer or any contract and none is to be relied upon as statements of representation or fact. The services, systems and appliances listed in this specification have not been tested by us and no guarantee as to their operating ability or efficiency is given. All photographs and measurements have been taken as a guide only and are not precise. Floor plans where included are not to scale and accuracy is not guaranteed. If you require clarification or further information on any points, please contact us, especially if you are travelling some distance to view. Fixtures and fittings other than those mentioned are to be agreed with the seller.
Goudhurst Road, Lamberhurst, Kent, TN3
Additional Information
-
Property refTUN260036
-
EPCG
-
TenureFreehold
-
Council TaxD
-
Local authorityTunbridge Wells Borough Council
Similar properties for sale by Your Move Tunbridge Wells
The pin shows the exact address of the property
Energy Efficiency Rating
Very energy efficient - lower running costs
Not energy efficient - higher running costs
Current
18Potential
54CO2 Rating
Very energy efficient - lower running costs
Not energy efficient - higher running costs
