This calculator provides a guide to the amount of residential stamp duty you may pay and does not guarantee this will be the actual cost. This calculation is based on the Stamp Duty Land Tax Rates for residential properties purchased from 23rd September 2022 and second homes from 31st October 2024. For more information on Stamp Duty Land Tax, click here.
3 bedroom Semi Detached House for sale, Greenside, Maidstone, Kent, ME15
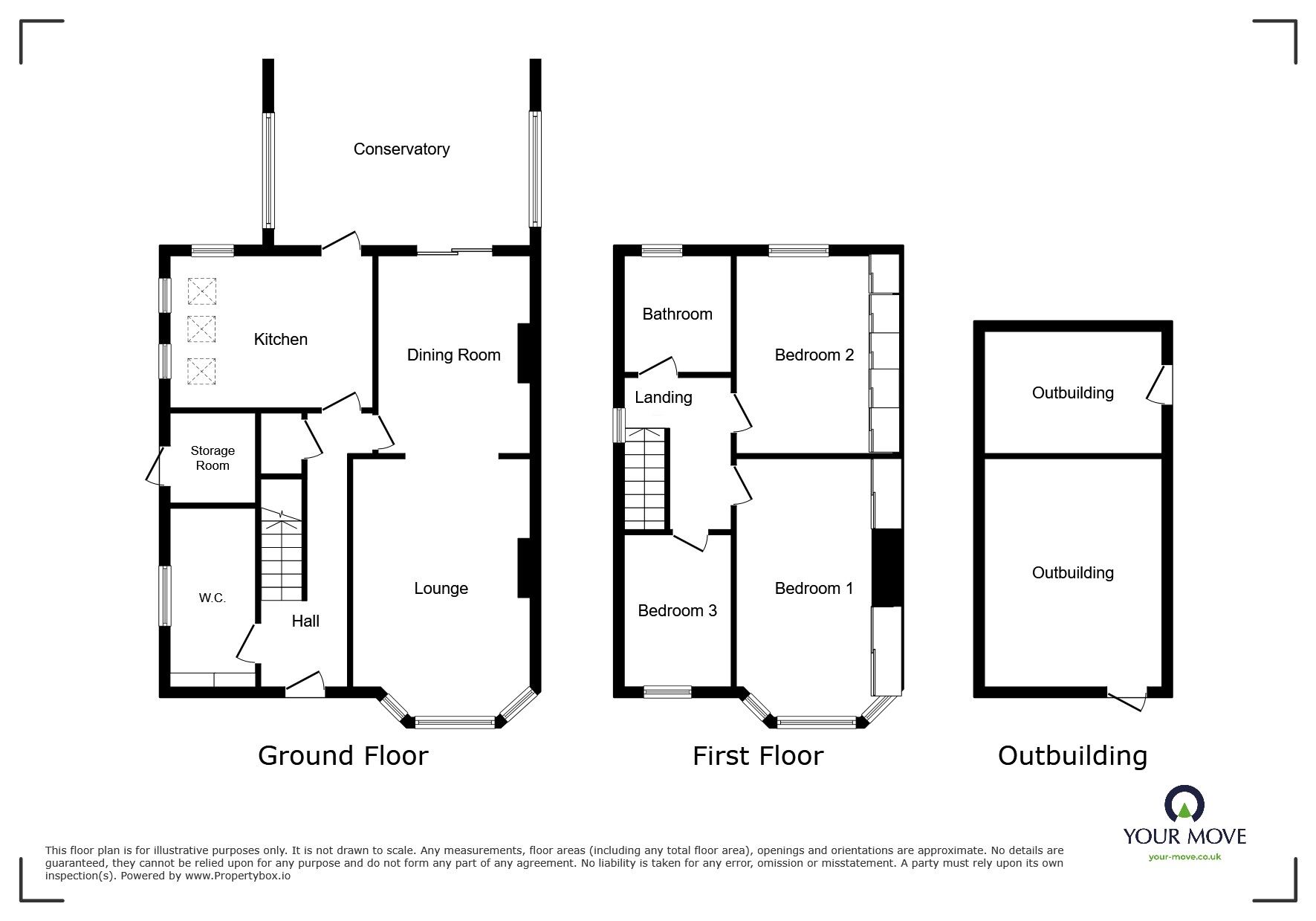
Features and Description
- Extended 1930s three-bedroom semi-detached on sought-after Greenside
- Large entrance hallway with downstairs cloakroom and built-in storage
- Open-plan lounge/diner with character bay window
- Spacious conservatory accessed via sliding doors
- Extended kitchen with skylights
- Two double bedrooms with fitted wardrobes, plus a third bedroom
- Modern family bathroom
- Large private rear garden with patio and lawn
- Outbuilding: front used as office, rear as storage
- Side access
- Driveway to the front for off-road parking
Situated on the ever-popular Greenside, this charming and tastefully extended 1930s semi-detached home offers a wonderful blend of period character and modern living.
Upon entering, you are welcomed by a large, inviting hallway, where you will find a modern downstairs cloakroom featuring elegant finishes and the added benefit of built-in storage.
The ground floor boasts a generous open-plan lounge and dining room. The lounge is rich in character, complete with a classic bay window that floods the room with natural light. The spacious dining area flows beautifully through sliding doors into a large, bright conservatory, providing the perfect additional living space for relaxing or entertaining.
The home also enjoys a beautiful kitchen, thoughtfully extended to create a light and airy space. It features sleek cabinetry, generous worktop areas and skylights that flood the room with natural light, giving the kitchen a contemporary and uplifting feel.
Upstairs, a large landing leads the way to a modern family bathroom and three well-proportioned bedrooms. There are two generous double bedrooms—one featuring a bay window and sliding fitted wardrobes, the other overlooking the garden and complete with fitted wardrobes—along with a well-sized third bedroom.
Externally, the home boasts a large, private rear garden, beginning with a patio space ideal for outdoor dining and leading onto a well-kept lawn. At the rear of the garden, the garage has been converted, with the front currently used as an office and the rear section providing valuable storage. The property also benefits from side access. To the front, a private driveway offers convenient off-road parking.
This impressive 1930s home provides generous space, character features and modern upgrades throughout—perfect for families seeking a home ready to move straight into.
Location
Greenside is a highly sought-after residential area in Maidstone, offering a peaceful and family-friendly setting while remaining close to the town’s excellent amenities. Residents enjoy convenient access to Maidstone town centre, which offers a wide selection of shops, cafés, restaurants, and leisure facilities.<br /> <br /> The area is particularly appealing to families and outdoor enthusiasts due to its proximity to several beautiful parks and green spaces. Local favourites include Mote Park—a large historic park with lakes, playgrounds, sports facilities, and walking trails—and the scenic riverside walks along the River Medway. These spaces provide excellent opportunities for leisure, recreation, and community events throughout the year.<br /> <br /> Greenside also benefits from excellent transport links, including nearby mainline railway stations with services into London and easy access to major road networks such as the M20 and A229, making commuting straightforward. The area is served by a selection of well-regarded schools and local amenities, making it ideal for families.<br /> <br /> With its combination of green surroundings, convenient location, and strong community feel, Greenside offers an attractive setting for those seeking a balanced lifestyle in Maidstone.
Hallway
13'1" x 5'11" (4.00m x 1.80m)
Cloakroom
7'3" x 2'11" (2.20m x 0.90m)
Kitchen
10'10" x 10'10" (3.30m x 3.30m)
Lounge
11'10" x 12'10" (3.60m x 3.90m)
Dining Room
12'2" x 10'10" (3.70m x 3.30m)
Conservatory
16'5" x 12'10" (5.00m x 3.90m)
Storage Room
4'7" x 2'11" (1.40m x 0.90m)
Landing
9'6" x 7'3" (2.90m x 2.20m)
Bedroom 1
10'10" x 13'1" (3.30m x 4.00m)
Bedroom 2
12'6" x 10'10" (3.80m x 3.30m)
Bedroom 3
7'3" x 7'3" (2.20m x 2.20m)
Bathroom
5'3" x 7'3" (1.60m x 2.20m)
Outbuilding (Office)
8'10" x 9'10" (2.70m x 3.00m)
Outbuilding (Storage)
6'3" x 7'3" (1.90m x 2.20m)
IMPORTANT NOTE TO POTENTIAL PURCHASERS:
We endeavour to make our particulars accurate and reliable, however, they do not constitute or form part of an offer or any contract and none is to be relied upon as statements of representation or fact. The services, systems and appliances listed in this specification have not been tested by us and no guarantee as to their operating ability or efficiency is given. All photographs and measurements have been taken as a guide only and are not precise. Floor plans where included are not to scale and accuracy is not guaranteed. If you require clarification or further information on any points, please contact us, especially if you are travelling some distance to view. Fixtures and fittings other than those mentioned are to be agreed with the seller.
Greenside, Maidstone, Kent, ME15
Additional Information
-
Property refMAI250812
-
EPCD
-
TenureFreehold
-
Council TaxD
-
Local authorityMaidstone Borough Council
Similar properties for sale by Your Move Maidstone
The pin shows the exact address of the property
Energy Efficiency Rating
Very energy efficient - lower running costs
Not energy efficient - higher running costs
Current
64Potential
85CO2 Rating
Very energy efficient - lower running costs
Not energy efficient - higher running costs
