This calculator provides a guide to the amount of residential stamp duty you may pay and does not guarantee this will be the actual cost. This calculation is based on the Stamp Duty Land Tax Rates for residential properties purchased from 23rd September 2022 and second homes from 31st October 2024. For more information on Stamp Duty Land Tax, click here.
3 bedroom Semi Detached House for sale, Laxford, Birtley, Tyne and Wear, DH3
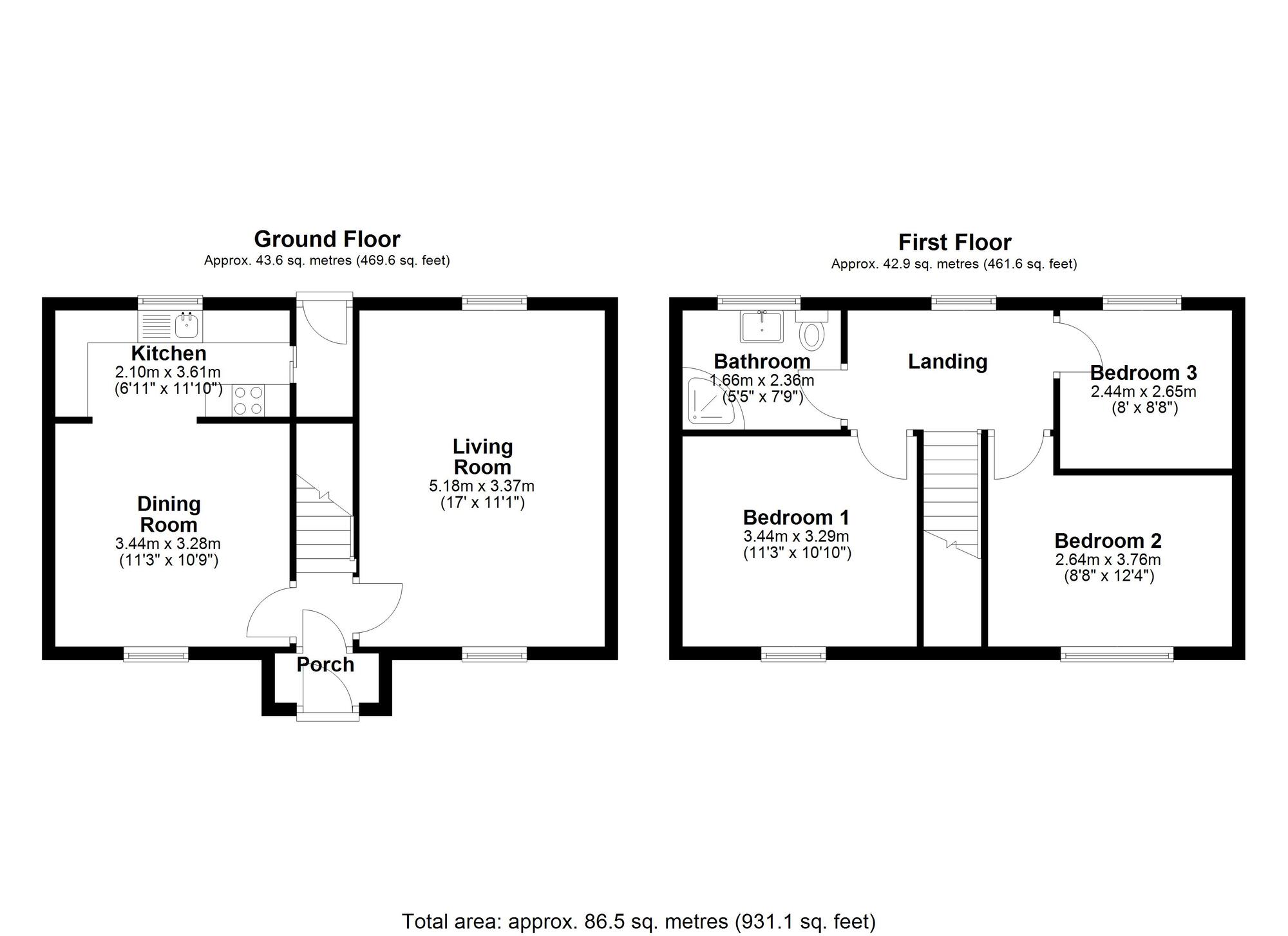
Features and Description
- Three Bedroom Semi-Detached
- Large Living Room
- Great Rear Garden Space
- EPC Rating Awaited
- Council Tax Band A
- Approx. 79sqm/850sqft Accommodation
Welcome to the market: this charming three-bedroom semi-detached home. Located in a popular and well-served residential area, the property is close to local shops, schools, healthcare, and leisure facilities. It is an ideal opportunity for first-time buyers or investors.
Stepping through the front door, to the right is a spacious and bright living room, featuring windows at either end that allow plenty of natural light. To the left, you’ll find a convenient dining room, which leads through to a kitchen with ample bench space and access to the rear garden.
On the first floor, there are three bedrooms. The master bedroom is generous in size with plenty of storage, as is the second bedroom. The third bedroom is versatile and would make an excellent office or guest room. The floor is finished off with a family bathroom.
Externally, the property benefits from a large rear garden, with a patio area flowing onto a well-maintained lawn. At the front, there is potential to create a driveway, while ample on-street parking is readily available.
IMPORTANT NOTE TO POTENTIAL PURCHASERS:
We endeavour to make our particulars accurate and reliable, however, they do not constitute or form part of an offer or any contract and none is to be relied upon as statements of representation or fact. The services, systems and appliances listed in this specification have not been tested by us and no guarantee as to their operating ability or efficiency is given. All photographs and measurements have been taken as a guide only and are not precise. Floor plans where included are not to scale and accuracy is not guaranteed. If you require clarification or further information on any points, please contact us, especially if you are travelling some distance to view. Fixtures and fittings other than those mentioned are to be agreed with the seller.
Laxford, Birtley, Tyne and Wear, DH3
Additional Information
-
Property refQCT260021
-
EPCC
-
TenureFreehold
-
Council TaxA
-
Local authorityGateshead Council
Similar properties for sale by Your Move Chester-le-Street
The pin shows the exact address of the property
Energy Efficiency Rating
Very energy efficient - lower running costs
Not energy efficient - higher running costs
Current
70Potential
76CO2 Rating
Very energy efficient - lower running costs
Not energy efficient - higher running costs
