This calculator provides a guide to the amount of residential stamp duty you may pay and does not guarantee this will be the actual cost. This calculation is based on the Stamp Duty Land Tax Rates for residential properties purchased from 23rd September 2022 and second homes from 31st October 2024. For more information on Stamp Duty Land Tax, click here.
3 bedroom Semi Detached House for sale, Moor Lane, Chessington, Surrey, KT9
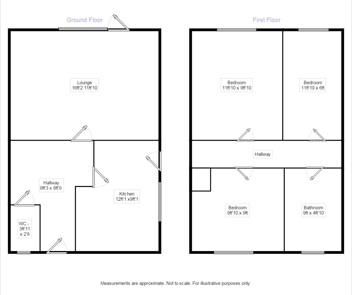
Features and Description
- Three Bedroom Semi Detached House
- Generous Size Lounge/Diner
- Good Size Rear Garden
- EPC Grade D
- Modern Kitchen
- Recently Refurbished
- Detached Garage
- Moments Walk To Mainline Station
This well-presented three-bedroom semi-detached home offers generous accommodation, practical features, and excellent scope for future improvement. The property is chain free, making it an ideal option for buyers seeking a straightforward purchase.
The accommodation comprises three good-sized bedrooms, a family bathroom, a spacious kitchen, and a convenient downstairs cloakroom. The layout is well balanced and suited to modern family living.
Externally, the property benefits from a garage and off-street parking, providing secure and convenient vehicle storage. A key highlight is the extension potential (subject to the usual planning consents), offering buyers the opportunity to add value and tailor the home to their needs.
This is a solid, versatile home with strong fundamentals, ideal for families, upsizers, or buyers looking for a property with future development potential.
Location
The local vicinity has good transport links for the local and major areas in South London and Surrey. There is access to the M25 and A3 providing links to a number of major routes into the City of London and London Airports.
Lounge
0 x 0
Kitchen
0 x 0
Bedroom 1
0 x 0
Bedroom 2
0 x 0
Bedroom 3
0 x 0
Bathroom
0 x 0
Entrance Hall
0 x 0
First Floor Landing
0 x 0
Separate WC
0 x 0
Frontage
0 x 0
Rear Garden
0 x 0
Garage
0 x 0
IMPORTANT NOTE TO POTENTIAL PURCHASERS:
We endeavour to make our particulars accurate and reliable, however, they do not constitute or form part of an offer or any contract and none is to be relied upon as statements of representation or fact. The services, systems and appliances listed in this specification have not been tested by us and no guarantee as to their operating ability or efficiency is given. All photographs and measurements have been taken as a guide only and are not precise. Floor plans where included are not to scale and accuracy is not guaranteed. If you require clarification or further information on any points, please contact us, especially if you are travelling some distance to view. Fixtures and fittings other than those mentioned are to be agreed with the seller.
Moor Lane, Chessington, Surrey, KT9
Additional Information
-
Property refSUR260004
-
EPCC
-
TenureFreehold
-
Council TaxD
-
Local authorityKingston Borough Council
The pin shows the exact address of the property
Energy Efficiency Rating
Very energy efficient - lower running costs
Not energy efficient - higher running costs
Current
72Potential
86CO2 Rating
Very energy efficient - lower running costs
Not energy efficient - higher running costs
